春和府(售楼处地址)首页网站|售楼中心|备案价_户型_坪山春和府

搜狐焦点永州站

2025-07-21 09:12:00

购房群

买房如何避坑,加入购房群,看看他们怎么说

立即进群

在深圳这个充满无限可能的城市,买房一直是大家热议的话题。今天,要给各位准备买房的朋友带来一个超重磅消息——位于坪山的 「春和府」春和府四月份左右就要面市啦!

项目营销中心及示范空间已璀璨开放,预计2025年4月盛大开盘,首推建面约 81-89㎡三房精筑美宅,单价2.5万/㎡起,总价180万起带精装交付。

作为坪山少有的不限购住宅项目,其价格优势与产品力备受市场关注。是不是光听着就已经心动了?下面,咱们就全方位深入了解一下这个楼盘,看看它到底有多“宝藏”

如需了解更多详情,欢迎咨询春和府售楼处电话400-992-0669,过来我们营销中心看房提前来电预约价格还能更优惠。

坪山春和府售楼处400免费咨询/预约电话:400-992-0669,中介勿扰

温馨提示:过来营销中心参观样板间请记得提前拨打售楼处400热线预约,感谢您的配合!

春和府占位坪山 “智能车、创新药、中国芯” 三大产业集群核心,享东部创新总部基地与宝龙科技城双区利好,2023 年坪山区 GDP 增速达 18%,产业势能强劲。作为国企安居建业与万科、特区建工联合打造的标杆项目,其品质保障与区域发展红利叠加,自住投资皆宜。

春和府以“儿童友好社区”为特色,融合国企匠心与城市发展脉搏,为深圳青年家庭提供理想人居选择。现营销中心已开放,恭迎品鉴!

营销中心已开放,首推81-89㎡精装三房,单价2.5万/㎡起、

预约解锁专属购房福利!

春和府售楼处热线:400-992-0669(直联开发商,中介勿扰)

到访福利:提前预约享专车接送 + 折上98折 + 家电礼包,限量房源先到先得!

注意:本项目不收任何费用,售楼中心〢欢迎来电咨询〢安全通话隐藏真实号码

春和府,由国企安居建业集团打造,总占地面积约2.28万㎡,总建筑面积约24.69万㎡,计容建筑面积约17.13万㎡,容积率7.25,绿化率30%,共由7栋40-45层高住宅组成,都是设计的空中花园,配建有1所9班制幼儿园。

总规划1456户,全部都是商品房,地下室有4层,规划1679个车位,车位比1:1.15。

01地块:总占地面积约0.51万㎡,总建筑面积约5万㎡,计容建筑面积约3.42万㎡,容积率6.32,绿化率30%,共由2栋40层住宅组成,分别是1栋1/2单元,商业面积3100㎡。

总规划340套房源,全部为套内建筑面积<90㎡的户型,地下4层,停车位339个。

02地块:总占地面积约1.78万㎡,总建筑面积约19.7万㎡,计容建筑面积约13.7万㎡,容积率7.71,绿化率30%,共由5栋42-45层高住宅组成,分别是2栋1/2单元住宅43层,2栋3单元住宅42层,3栋1/2单元住宅45层,4栋配建1所9班幼儿园。

总规划1116户,包含回迁房,其中套内建筑面积<90㎡的有1079户;停车位1340个,车位比1:1.2,商业面积约2.27万㎡。

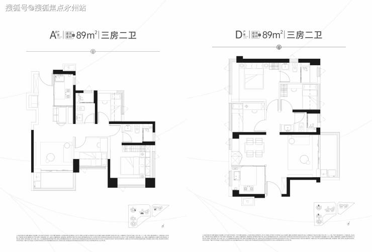
户型亮点 智能舒居典范

项目主力户型为建面约 81-106㎡二至四房,均采用南北通透设计,空间利用率高,首批推售主力户型约81-89㎡3房(01、02地块)

81㎡全能三房:动静分区,客厅与阳台连通,营造开阔聚场空间;

89㎡舒适三房两卫:主卧套房设计,独立卫浴 + 观景飘窗,兼顾私密与采光;

社区引入智能科技系统,打造四点半学堂、星球地表乐园、全龄泳池等配套,细节处彰显儿童友好理念。

如需了解更多详情,欢迎咨询春和府售楼处电话400-992-0669,过来我们营销中心看房提前来电预约价格还能更优惠。

坪山春和府售楼处400免费咨询/预约电话:400-992-0669,中介勿扰

温馨提示:过来营销中心参观样板间请记得提前拨打售楼处400热线预约,感谢您的配合!

建面约81㎡全能三房:科学布局,动静分区,功能区分布清晰各享其所

建面约89㎡舒适三房二卫:超宽阳台紧连客厅,全屋明亮通透,空间运用更自由

设计亮点:全屋精装交付,涵盖基础硬装、厨房设备(油烟机、燃气灶等)、卫浴设施及部分智能化系统,空间利用率高。

全屋精装交付,涵盖基础硬装(如墙面、地面、天花板)、厨房设备(含橱柜、油烟机、燃气灶等)、卫浴设施(含马桶、淋浴、洗手台等),以及部分智能化系统(如智能家居控制)。具体品牌及配置需以开发商合同约定为准。

小区信息:项目致力于打造深圳儿童友好社区的典范,社区内设“多重体感英式奇趣花园”,营造轻氧森系生活,社区内的“四点半学堂”和图书馆,是孩子们学习与成长的乐园。

建面约540㎡“星球地表乐园”、建面约770㎡“全龄泳池区”和建面约1500㎡“康体健身区”,满足各年龄层的休闲需求。

儿童友好设计,如户外洗手台、婴儿车停放区等,细节之处尽显关怀,为家庭带来幸福与质感的居住体验

如需了解更多详情,欢迎咨询春和府售楼处电话400-992-0669,过来我们营销中心看房提前来电预约价格还能更优惠。

坪山春和府售楼处400免费咨询/预约电话:400-992-0669,中介勿扰

温馨提示:过来营销中心参观样板间请记得提前拨打售楼处400热线预约,感谢您的配合!

深圳坪山春和府开发商为深圳市安和三号房地产开发有限公司,其母公司为安居建业集团。安居建业由深圳市人才安居集团、深圳市特区建工集团、深业集团和万科企业股份有限公司共同成立,其中前三家均为深圳市属国企,万科的第一大股东为深圳国企深铁集团,整体具备国企背景。

开发商曾参与多个城市更新项目,例如接手恒大深圳湾总部地块、南山旧改项目等,具备处理复杂项目的经验。

春和府项目位于坪山区坪山街道六联社区,总建筑面积约 25.13 万㎡,规划有住宅、幼儿园及商业配套,容积率为 7.7,总户数 1460 户,预计 2025 年入市。

自带1所9班制幼儿园,旁边规划有1所九年制公办学校,根据坪山2024年最新的学区划分,小学学区划分在六联小学,东北师范大学深圳坪山实验学校组成的大学区,初中学区划分在坪山实验学校,东北师范大学深圳坪山实验学校组成的大学区。

东北师范大学深圳坪山实验学校,该校占地面积3.2万平方米,在2021年9月1日正式开学,目前已经开学1-6年级44个教学班,初中7-9年18班个教学班,共计2800名学生。

而坪山实验学校更是坪山数一数二的名校。

多维交通 速享城市繁华

春和府紧邻地铁 14 号线锦龙站(直线距离约 1.3 公里),12 站直达福田中心区,通勤时间仅需 43 分钟;规划中的深大城际(预计 2026 年开通)与东部过境高速(近金钱坳立交)双轨加持,快速串联深圳核心区。周边 1 公里范围内覆盖沙湖路口、坪山澳子头村等多个公交站点,多维路网畅达全城。

全优教育 护航成长未来

项目自带9班制幼儿园,周边 3 公里范围内汇聚多所优质学校。根据坪山区 2024 年最新学区划分,小学纳入六联小学、东北师范大学深圳坪山实验学校大学区;初中归属坪山实验学校、中山中学等五校大学区,实现 “家门口的优质教育”。步行 1.6 公里可达中山小学,直线距离约 1.2 公里为科源实验学校,教育资源丰富。

醇熟配套 悦享品质生活

商业方面,5 公里范围内涵盖天虹商场、沙湖广场(在建)、华侨城坪山之眼(在建)等超 40 万㎡商业集群,满足一站式购物需求。

生态资源优越,毗邻坪山儿童公园、温尼公园及马峦山郊野公园,日常休闲与自然亲近触手可及。

医疗配套完善,近享坪山区人民医院、深圳平乐骨伤科医院等医疗资源,为健康保驾护航。

营销中心已开放,首推 81-89㎡精装三房,单价2.5万/㎡起、

预约解锁专属购房福利!

春和府售楼处热线:400-992-0669(直联开发商,中介勿扰)

到访福利:提前预约享专车接送 + 折上98折 + 家电礼包,限量房源先到先得!

注意:本项目不收任何费用,售楼中心〢欢迎来电咨询〢安全通话隐藏真实号码

全部

相关资讯

报名成功
稍后会有专业的置业顾问联系您
返回楼盘

频道导航

返回首页

看房小程序

APP下载

电话拨通后,请您手动拨打分机号

确定拨打电话

电话号码:

分机号:(可能需要拨分机号)