—华侨城华南集团四海华亭— 曾经四海为家 如今家在四海
三地铁·学府旁·大城综合体 建面约87-121㎡公园美宅
华侨城四海华亭_Vip Tel:400-992-0669 中介勿扰
最新消息:项目将推出少量工抵房,单价4.5万起带装修,三房总价400万出头,在售约87-95-105-112-120三房与四房!
华侨城龙华城市更新大作,约56万㎡生态大城综合体---四海华亭,推出建面约87-121㎡公园美宅今年买今年住,带精装修交付,项目中小学学区为高峰学校,距离龙华地铁站约700米
【项目名称】华侨城·四海华亭·龙胜云坊
【占地面积】约54465㎡ 【建筑面积】约56万㎡
【推售产品】建面约87-96-106-112-121㎡3-4房
【交房时间】2024年12月 【交付标准】精装交付
【售楼热线】400-992-0669 【产权年限】70年
【房产性质】住宅 【可售套数】约1044套
【楼层高】一、二单元51层、三、四单元52层
【车位比】约1290个 【容积率】6.87
【绿化率】30% 【梯户比】3梯5户/4梯6户
【管理费】5.4元/平 【开发商】深圳市协跃房地产开发有限公司
【物业公司】深圳市盛世嘉物业管理有限公司
【项目地址】位于龙华区大浪街道龙胜社区龙胜路与和平路交汇处北侧
华侨城·四海华亭全新展厅&美学样板,现已华美绽放,恭迎悦赏,建面约87-121㎡公园美宅,建面约24-55㎡精装公寓,全城热销中。
24-55㎡精装公寓

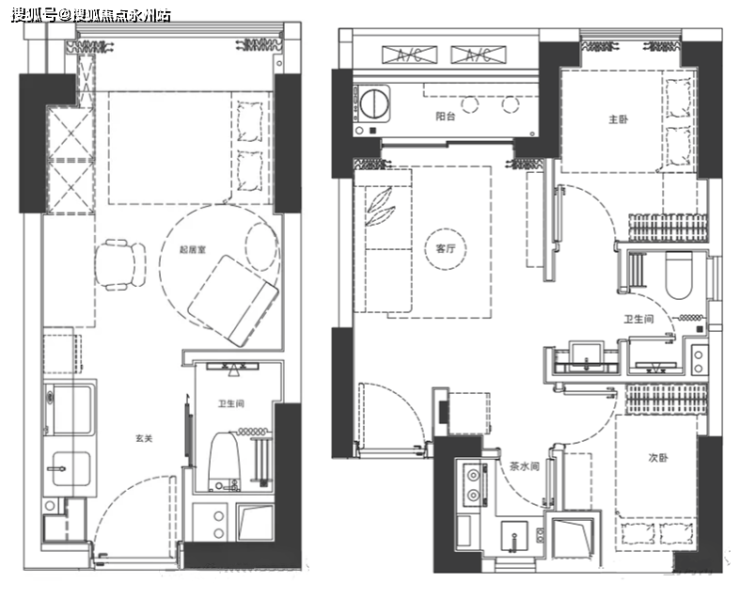
【建面约87㎡】 客餐厅一体化空间,动静分离式布局,超长玄关收纳柜体

【建面约96㎡】 家政阳台定位,6人位餐厅满足多人就餐,主卧独立卫生间

【建面约112㎡】 大横厅布局,超长观景阳台,卧室满面窗户,超强采光通风

【建面约121㎡】 大横厅布局,超长观景阳台,玄关柜餐边柜一体化设置,独立衣帽间,满足超强收纳需求
交通方面:项目距离4号线龙华站与龙胜站约700米,步行大约需要10分钟。
从该站出发,3站到达深圳北站,可在深圳北站换乘5/6号线,或搭乘高铁。
另外,未来还规划有地铁18、21、25、27号线,还有6号线支南线、17号线西延在规划建设中,未来可直通罗湖、福田、南山、前海。
教育方面:项目自带9班幼儿园,自身配建有九年一贯制弘毅学校、幼儿园,周边有龙华中心中小学、高峰学校等,且2km范围有和平实验小学、未来小学。
学校为规划开设36个班、提供1680个学位
项目自带约5万㎡欢乐情景商业,联动周边百万商业旗舰,构筑“超级活力中心”,拥享约200万㎡超级商圈,周边还有壹方天地、华南首个Costco、红山6979、天虹商场等超百万商业配套,咫尺之间,左右皆繁华。
双公园环绕,零距离享超20万㎡鲜氧吧龙胜公园:距离100m,是龙华群众文化活动公园,一年四季都是休闲放松好地方龙华公园:距离850m,占地20万㎡,登塔龙华全景尽收眼底2km范围内还有三联公园、上芬社区公园、龙塘公园、阳台山森林公园,组成城市生态圈
华侨城·四海华亭 工抵房,三房400万出头
三地铁 | 学府旁 | 大城综合体 建面约87-96-106-112-121㎡3-4房
如需了解更多本项目信息,请拨打售楼处电话,现场销售会为您详细介绍楼盘。
华侨城·四海华亭_营销中心_Vip Tel:400-992-0669 中介勿扰
(更多项目动态| 欢迎来电咨询 | 请提前预约登记看房 | 1:1销售专业讲解)置业顾问一对一对接,来电尊享受额外优惠