宝安【 拾悦城楠园】售楼处24小时电话:400 992 0669(官方电话)现场详细解答丨项目介绍丨户型图丨在售房源丨特价房丨学校丨交通位置丨样板房丨小区图片丨交房时间丨周边配套丨
深圳拾悦城二期楠园为什么价格相对较低?深圳市宝安区的拾悦城楠园是一个备受关注的楼盘,其以低总价、优质学区和优越的地理位置吸引了众多购房者的目光。然而,许多人对于【拾悦城二期】的低价感到疑惑,究竟是什么原因导致了它的价格相对较低呢?本文将为您解析拾悦城楠园的优缺点,并探讨其未来的发展潜力
优势:
1、项目户型可供选择较多,最小的86平,如果按照以前拾悦城一期价格或网传5万/㎡的吹风价作为参考,400多万的总价起步,首付100多万就可以上车西部,对于在南山、宝中工作的购房者还是比较吸引的;
2、项目规划了一所九年一贯制学校,据传将会和宝中集团合办学校;宝中作为深圳的八大名校之一,其合办的学校相信教学质量无需担心,未来该校如果能落地也将会成为拾悦城二期溢价的优质资本;
3、拾悦城二期楠园靠近地铁11号线沙井站约700米,出行方便;旁边还有定岗湖公园,建面约9.5万平,平时下班后放松散步锻炼很方便,生态环境蛮好,对周边居住环境有要求的人是个不错的选择;加上1:1.15的车位比,在停车这方面还是有一定的优势。
拾悦城楠园采用的是开发商直接在售楼处进行销售,并且通过网络平台进行推广。
宝安拾悦城楠园开发商售楼处咨询/营销中心预约热线:400-992-0669(中介勿扰)
劣势:
1、沙井城建等规划确实很丰富,但目前还处于发展中阶段,给人的第一感觉完全就是城乡结合部,周边拥有许多工业区和农民房,环境比较糟糕,附近要靠旧改改变城市面貌,也是一个漫长的过程;
2、项目只带了4000平左右的底商,周边没有商业和娱乐配套,距离到达京基百纳和天虹较远约2.7公里,近一点有1.5公里的万丰海岸城(年底开业),走路需要十来分钟才能到,商业资源并没有很丰富;
3、另外小区占地很大但是密度很高,而且户型得房率不高,绿化面积同样也不是很足;且二期的回迁房占比大,超过总房源的一半,影响项目的整体品质,有意买入的网友需要关注这一方面。

宝安拾悦城二期楠园时隔六年时间!终于要来了!户数约:2000套,可售约:1307套车位约:2300个,户型详细户型段:约86平(三房两厅一卫)约90平-107平(三房两厅两卫)约115平-125平(四房两厅两卫)约140平(五房两厅两卫)项目整体占地约3.54万㎡,总建面约17万㎡,共规划了14栋30-48层超高层住宅、4栋26-33F高端写字楼及部分商业配套组成,还规划了一所36班九年一贯制学校、一所18班幼儿园。
拾悦城楠园_开发商售楼处_Vip Tel:400 992 0669 (中介勿扰)
(更多项目动态| 欢迎来电咨询 | 请提前预约登记看房 | 1:1销售专业讲解)置业顾问一对一对接,来电尊享受额外优惠

拾悦城楠园价值点
2021年,前海扩容,将从宝安中心、到涵盖会展海洋城的沙井区域囊括其中,勾勒出一条黄金发展脉络。
扩容后的“大前海”,既坐拥高附加值、前沿发展产业,又享受着史无前例的政策利好,绝对是湾区时代的“新特区”
而沙井片区更独特的地方在于,它是深圳西部的发展重点。
早在宝安“十四五”规划中,就将沙井定位为“深圳西部城市中心”,与宝安中心并肩,成为发展核心区域。
未来,这里将成为集海洋、会展、文旅、休闲、购物一体化的深圳西部中心核心区。
而拾悦城楠园,正处于这一范围内。
两大重磅规划加持,沙井将在经济产业、居住配套、城市界面等层面,实现全方位的升级发展。
比如,仅会展海洋城就带来多个重磅项目:
全球最大会展中心、全球最大室内冰雪中心、海洋新城、4A级的海上田园等等

拾悦城二期占地约3.54万㎡,总建面约17万㎡,共规划了14栋30-48层超高层住宅、4栋26-33F高端写字楼及部分商业配套组成,还规划了一所36班九年一贯制学校、一所18班幼儿园。
楠园由8栋建筑主体组成,分为1栋、2栋,其中1栋由A-G座组成,总房源1682套,其中商品房有1202户,回迁房480户。楠园建设用地面积35412.81㎡,总建面322995.68㎡,计容建面235495.45㎡,其中住宅建面207970㎡,商业建面4500㎡,幼儿园建面5940㎡,容积率6.66,机动车位2396个。
作为拾悦城进阶归来的力作,楠园此次亮相的为建面约 86-140㎡全能3-5房,从对进阶生活方式的洞察出发,以 “舒居尺度” 为纽带,户型布局轻松适应不同家庭阶段及居家场景的变化,伴随着家庭成长的每一步,让生活一步到位。

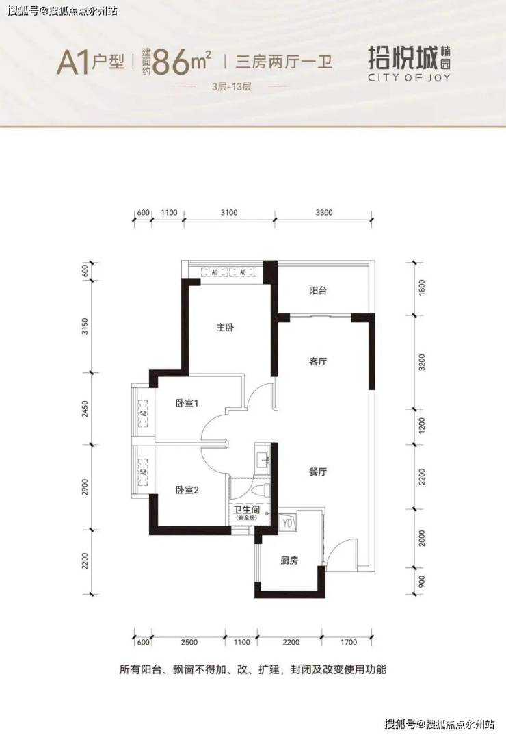
86㎡三房一卫,两种户型互为镜面,都是竖厅设计,套内面积66.26㎡,得房率77%左右。
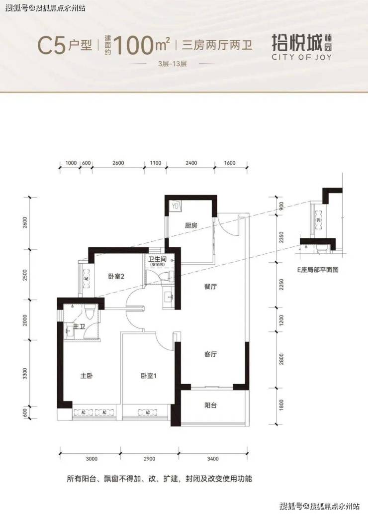
100㎡三房两卫,两种户型互为镜面,传统的竖厅设计,套内面积77.24㎡,得房率77.24%左右。
103㎡三房两卫,套内面积79.4㎡,得房率77.09%左右。
107㎡三房两卫,套内面积82.59㎡,得房率77.19%左右。
115㎡通透四房两卫,套内面积88.51㎡,得房率76.97%左右。
140㎡通透五房两卫,套内面积107.99㎡,得房率77.14%左右。
拾悦城二期楠园配套信息解析
交通出行:项目位于宝安沙井,步行约700米有11号线沙井站;距离宝安中心区约25公里,地出行铁前往南山、福田中心区通勤时长较久,接近1小时。
教育资源:项目自带一所18班的幼儿园,未来还将规划九年一贯制学校教育用地引进宝中集团合办分校;周边有壆岗小学、拾悦小学、万丰小学等学校,但对比宝安其余几个片区的教育资源,项目周边学校成色略显不足。
商业配套:项目自带部分商业,只能满足业主日常购物需求,直线距离1KM范围内有有百佳华MAX CITY(沙井店)、百佳华奥特莱斯、华润万家、西荟城购物广场等商业配套。
其它配套:在医疗和休闲娱乐上,项目周边有深圳市中西医结合医院、宝安区沙井坣岗医院、定岗湖湿地公园、大钟山公园、壆岗公园等配套。
拾悦城二期楠园分为“楠园”和“沁园”,两个全新的住宅社区。率先入市的为楠园,居住属性纯粹,占地面积约3.5万㎡,计容建面约23.5万㎡。楠园由8栋建筑主体组成,分为1栋、2栋,其中1栋由A-G座组成,总房源1682套,其中商品房有1202户,回迁房480户。
如需了解更多本项目信息,请拨打售楼处电话,现场销售会为您详细介绍楼盘。
拾悦城楠园_开发商售楼处_Vip Tel:400 992 0669 (中介勿扰)
(更多项目动态| 欢迎来电咨询 | 请提前预约登记看房 | 1:1销售专业讲解)置业顾问一对一对接,来电尊享受额外优惠