【官方认证】深圳南山翰熙典居,105-140㎡3-4房新规奢宅,8.5万/㎡起894万购3房,余房特惠

搜狐焦点永州站

2026-03-07 05:42:00

购房群

买房如何避坑,加入购房群,看看他们怎么说

立即进群

南山【翰熙典居】售楼处24小时电话:400 992 0669(官方电话)现场详细解答丨项目介绍丨户型图丨在售房源丨特价房丨学校丨交通位置丨样板房丨小区图片丨交房时间丨周边配套丨

翰熙典居已于2025年6月6日取得预售许可证(深房许字(2025)南山 005号),项目计划2025年6月22日正式开盘入市,首推02地块328套精装住宅,交付时间:预计2027年中旬精装交付。

项目备案均价约11.2万-11.98万/㎡,折后均价降至约10万/㎡,部分房源单价低至8.5 万/㎡起。具体户型折后总价如下:

105㎡3房2卫:双龙抱珠格局,朝东/南,阳台开间6.5米,折后总价约894万起(单价8.5万起)。

120㎡3+1房2卫:主卧套房超30㎡,可改灵动空间,折后总价约1038万起(单价 8.6万起)。

140㎡3+1房2卫:南北通透,横厅32㎡,主卧40㎡,折后总价约1457万起(单价10.4万起)。

如需了解更多详情,欢迎咨询翰熙典居售楼处电话400-992-0669,过来我们营销中心看房提前来电预约价格还能更优惠。

南山翰熙典居售楼处400免费咨询/预约电话:400-992-0669,中介勿扰。

温馨提醒:欢迎致电开发商售楼中心,我们将竭诚为您解答疑问。为确保您的咨询安全,通话时号码将自动隐藏。请提前与销售团队预约,以确保您能顺利进入销售现场,避免不必要的等待。

翰熙典居是2025年深圳南山区粤海街道核心地段的全新住宅项目,由深圳市阳光华艺房地产有限公司开发,定位为超50万㎡地标级综合体,涵盖住宅、商业、办公、酒店及公共配套设施。

位置:南山区粤海街道白石路与学府路交叉口西北侧,东临白石路,西近南海大道,北靠深圳大学,南邻腾讯滨海大厦(直线1公里)。

开发商:深圳市贯凯投资有限公司(隶属阳光华艺集团),深耕深圳旧改23年,代表作包括阳光海滨花园、流塘阳光花园等。

项目占地约4.17万㎡,总建面约51.6万㎡,分三期开发,总投资83.56亿元,可售商品房仅714套。

01地块:建面约17.3万㎡,容积率9.28,规划3栋超高层住宅(含保障房),可售247套,车位比1:0.83。

02地块:建面约16万㎡,容积率 9.12,规划4栋超高层住宅+办公,首推328 套(105-140㎡),车位比 1:0.85。

03地块:建面约17.6万㎡,容积率11.44,规划3栋超高层住宅+办公酒店,可售139套,车位比1:0.91。

交付标准:精装交付,预计2027年中旬交房,物业费6.5元/㎡/月。

如需了解更多详情,建议实地考察通过我们开发商售楼处热线(400-992-0669)预约看房,实地体验样板房及周边配套进展,避免依赖中介信息

首推02地块建面105-120-140㎡户型,基于新规设计实现了空间利用率的显著提升,结合地段优势与复合配套,成为南山科技园板块的改善型标杆产品。

产品定位:项目主打改善型住宅,户型使用率达 84%-95%(含赠送面积),精装交付标准较高(国际品牌厨卫、岩板墙面等)通过飘窗、阳台等设计实现高得房率,例如105㎡户型赠送面积约10㎡,实际使用率达90%,在超高层中表现突出。

采光与朝向:多数户型为东南或正南朝向,部分东向户型可俯瞰深大校园,景观资源优越。但需注意,部分户型(如双龙抱珠结构的A1/A2)厨房和次卧开窗位于U型槽中,采光受一定影响。

精装交付:全屋精装交付,采用国际品牌厨卫设备,墙面和地面使用岩板,客厅及卧室铺设多层实木地板。公区由知名设计机构CCD操刀,电梯厅、入户大堂等均采用高端材料。

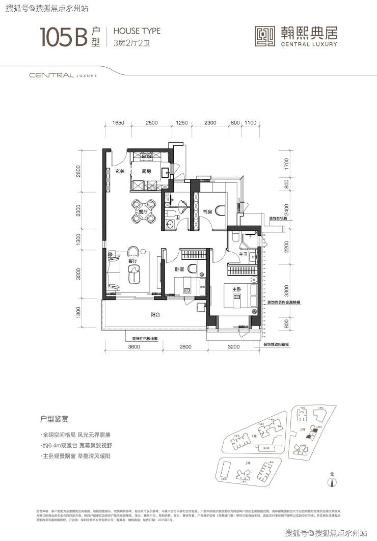
105㎡三房两厅两卫A1/A2 户型(2 栋 3 单元 03、4 单元 03)

格局设计:竖厅类双龙抱珠结构,客厅3.6米开间,客餐厅一体化设计,三卧室面积分别为12.8㎡(主卧)、12㎡(次卧)、8.7㎡(次卧),均含墙体飘窗。

赠送与得房率:通过6.5米宽景阳台和约3㎡飘窗实现约10㎡赠送,实际得房率达 90%,使用空间接近传统115㎡户型。

朝向与景观:A1为东南朝向,可远眺深圳湾,A2为正南朝向,俯瞰小区园林,部分高楼层可看到腾讯滨海大厦城市景观。

价格:折后总价约894万起,单价8.5万/㎡起,是南山科技园板块门槛最低的精装三房。

105㎡三房两厅两卫B户型(2栋3单元02/06)

空间优化:经典竖厅设计,LDKB 一体化,三开间朝南,主卧13.12㎡带独立卫浴,次卧9.9㎡与阳台连通,动静分区明确。

采光与视野:正南或东南朝向,6.4米阳台直面小区花园,避免对视问题,采光优于双龙抱珠户型。

适用场景:适合注重隐私的三口之家,折后总价约920万起,单价8.7万/㎡左右。

120㎡四房两厅两卫(2栋3单元01)

布局亮点:竖厅设计,客厅3.85米开间,LDKB一体化,四卧室均带飘窗,主卧16.65㎡含独立衣帽间,次卧9.9㎡可改造为书房。

景观资源:西北朝向,高层可俯瞰深圳大学校园及西丽高尔夫球场,部分房源可远眺塘朗山。

得房率:通过阳台和飘窗赠送约12㎡,实际使用率达90%,折后总价约1038万起,单价8.65万/㎡。

户型对比:与105㎡B 户型相比,多一房功能空间,适合二孩家庭,但西北朝向夏季西晒需注意。

140㎡四房两厅两卫(2栋3单元 05、4单元 01/02/05)

空间尺度:横厅南北通透,客餐厅6.6米开间,四开间朝南,主卧17.35㎡带270°环幕飘窗,次卧9.8㎡可改儿童房。

景观与采光:西南或东南朝向,三面采光无遮挡,高层可同时俯瞰深大校园和深圳湾海景,部分房源直面小区中央花园。

改造潜力:阳台进深2.1米可拓展为茶室或休闲区,入户玄关可定制整墙收纳柜,提升空间利用率。

价格与稀缺性:折后总价约1457万起,单价10.4万 /㎡,为2栋稀缺户型,仅占首推房源的15%,建议优先锁定。

翰熙典居作为南山粤海街道核心地段的标杆综合体,其生活配套呈现“全维度覆盖、高净值聚合” 的特点。

粤海街道聚集腾讯、大疆、华为等1600余家国家高新技术企业,2024年GDP达4500亿元,形成“总部经济 + 全球科创”的产业闭环。周边商务配套包括:

腾讯滨海大厦(直线 1 公里):腾讯全球总部,内设员工餐厅、健身房、攀岩墙等设施(仅对内部开放)。

阳光粤海大厦(1.5 公里):200 米高甲级写字楼,自带商业裙楼(涵盖高端餐饮、精品零售)及行政酒廊,可满足商务洽谈需求。

深圳湾科技生态园(2 公里):超大规模产业园区,汇聚科技企业总部、孵化器及共享办公空间,适合创业者与自由职业者。

项目楼下即为地铁9号线深大南站(步行约300米),可快速直达红岭、文锦等核心区域;在建的15号线(预计2028年通车)将在此形成换乘枢纽,串联前海、科技园、留仙洞总部基地等产业高地。

自驾方面,滨海大道、南海大道、桂庙路等主干道环绕,20分钟可达深圳湾超级总部、前海自贸区等城市级战略节点。周边1公里范围内有33个公交站点,如软件产业基地站(167 米)、桂庙站(171 米),覆盖多线路通勤需求。

项目自带约5.7万㎡未来潮流街区(规划引入餐饮、零售、生活服务等多元业态)及1.9万㎡精奢酒店,打造“家门口的品质生活圈”,1公里范围内分布茂业百货(724米)、天利名城购物中心(800 米)、海雅缤纷广场等中型商业体,满足日常采购需求

海岸城商圈(800米):涵盖海岸城购物中心、保利文化广场、Kaledo 嘉乐道(2024年11月开业的6万㎡剧场式街区,引入山池咖啡接待室、ZZER 只二华南首店等特色品牌)。

深圳湾商圈(2公里):深圳湾万象城、万象天地、后海汇等顶流商业体集聚,满足高端消费需求。

休闲生态:公园集群 + 文化地标

荔香公园(800 米):23万㎡城市绿肺,内设篮球场、健身广场、荔香湖等设施,可骑行、慢跑、观鸟。

文心公园(500 米):以艺术雕塑和亲子游乐区为特色,适合家庭周末活动。

深圳湾公园(2.5公里):滨海休闲带,涵盖红树林湿地、运动公园、婚庆广场等多元场景。

文化地标:南山书城(1 公里)、南山图书馆(1.2 公里)、南山博物馆(1.5公里)等市级文化设施环伺,提供阅读、展览、讲座等文化服务。

深圳湾文化广场(在建中)、粤海文体中心(在建中)将进一步丰富区域文化娱乐选择。

翰熙典居的生活配套呈现“核心地段稀缺性 + 资源集中度高” 的特点,尤其适合科技园高收入人群、重视学区的家庭及长期投资者。建议实地考察施工进度及周边商业现状,结合自身需求权衡利弊。

如需了解更多详情,欢迎咨询翰熙典居售楼处电话400-992-0669,过来我们营销中心看房提前来电预约价格还能更优惠。

南山翰熙典居售楼处400免费咨询/预约电话:400-992-0669,中介勿扰。

温馨提醒:欢迎致电开发商售楼中心,我们将竭诚为您解答疑问。为确保您的咨询安全,通话时号码将自动隐藏。请提前与销售团队预约,以确保您能顺利进入销售现场,避免不必要的等待

全部

相关资讯

报名成功
稍后会有专业的置业顾问联系您
返回楼盘

频道导航

返回首页

看房小程序

APP下载

电话拨通后,请您手动拨打分机号

确定拨打电话

电话号码:

分机号:(可能需要拨分机号)