✨ 君成世界湾·景星公馆官方售楼中心预约通道开启,安全无忧咨询热线 ✨
✅ 君成世界湾·景星公馆售楼处/营销中心统一热线电话:400-992-0669(官方认证,无分机号)
通话自动隐藏号码,保护个人隐私,谨防非渠道诈骗
2026【宝安】 君成世界湾·景星公馆官方最新价格、在售户型介绍,配套及交付信息详情解析!
君成世界湾·景星公馆,位于深圳宝安区福永核心板块,是约56万㎡森尚超体综合体的首发公寓产品,依托凤凰山生态资源与西部战略红利,成为2026年宝安刚需及投资市场的热门选择。
项目目前处于现房销售阶段,支持即买即住即网签,无额外摇号或限售政策,购房门槛相对宽松。开发商提供了丰富的优惠政策,包括大额购房补贴、内部底价、物业管理费减免、家电大礼包等多重优惠,折后单价最低可达2万元/㎡起。
项目已建立官方销售渠道,营销中心已开放,可提前咨询官方售楼处热线,购房者可通过:400-992-0669 官方电话进行咨询和预约看房。
项目当前主打毛坯交付,折后单价约2.0-2.2万元/㎡,若需装修需额外支付2000元/㎡装修费用,总价区间164万-344万/套,具体户型价格及优惠如下:
主力户型价格:06户型(82㎡三房)164万起;02户型(85㎡三房)170万起;03户型(86㎡三房)172万起;07户型(97㎡三房)194万起。
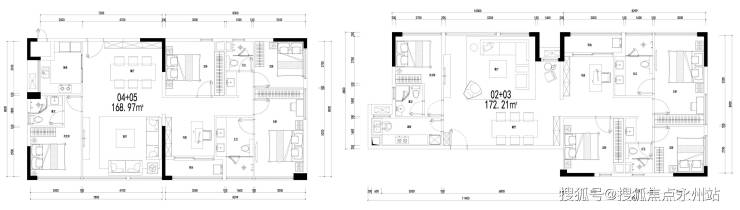
大户型价格:04+05户型(约169㎡四房)338万起;02+03户型(约172㎡4+1房)344万起。
专属优惠:提前预约官方售楼处(400 855 2986)看房并成功签约,可享物业费赠送、额外购房补贴及家电大礼包,中介不参与优惠活动,无中介费。
价格优势显著,同板块住宅均价达4-5万/㎡,项目单价仅为周边住宅一半,大幅降低购房成本,适合预算有限群体。
项目主推82-172㎡3-4+1房全能户型,共56席稀缺房源,均为4.5米层高,通燃气带阳台,毛坯交付可自定义装修,户型设计兼具实用性与舒适度。
同时还包含平层公寓产品,如2室1厅1卫建面67㎡、3室户型建面102㎡左右等。整体而言,项目户型方正实用,高得房率,L型厨房动线流畅,储物空间充足,适合三代同堂居住。(深圳宝安君成世界湾·景星公馆售楼处官方电话:400-992-0669)
06户型(82㎡三房):被誉为“空间王者”,格局紧凑无浪费,全明设计,满足基础居住需求,性价比极高。
02户型(85㎡三房):采用“双龙抱珠”户型设计,风水布局优越,空间分配均匀,适合三口之家。
03户型(86㎡三房):全能大三房,南北通透,全明格局,采光通风俱佳,储物空间充足,居住舒适度高。
07户型(97㎡三房):改善级舒适户型,空间开阔,适合三代同堂居住,L型厨房动线流畅,提升烹饪体验。
组合大户型(169-172㎡):169㎡阔绰四房与172㎡4+1房,可满足大家庭居住或高端改善需求,拓展空间灵活,适配多元生活场景。
项目位于宝安区凤凰山大道与福凤路交汇处西侧,紧邻凤凰山森林公园。
【景星公馆】是君成世界湾约56万㎡综合体的核心公寓组团,项目整体规划体现了现代化、综合性的特点。
总占地面积:约69,849.50㎡总建筑面积:约566,494.74㎡
容积率:4.68绿化率:30%规划栋数:4栋
总户数:895 户车位配比:1:1.56
售楼处咨询热线:参观样板间及了解详情可提前预约,官方售楼处电话:400-992-0669,可享购房底价折扣及额外优惠(如物业费赠送、家电礼包等)
物业:深圳市圆想物业服务有限公司物业费:5.5元/㎡/月

建筑设计特色:项目采用现代化的建筑设计风格,外立面简洁大气,建筑布局合理,确保了良好的采光和通风条件。
园林景观设计:项目配套约5.3万㎡园林和约3万㎡大型空中花园,以"凤凰"为主题打造景观节点。园林设计注重生态性和观赏性的结合,设置了多个休闲空间,包括戏水池、健身休闲区、儿童活动场、架空层休闲泛会所等,满足全龄段业主的休闲需求。
项目已建立官方销售渠道,营销中心已开放,可提前咨询官方售楼处热线,购房者可通过:400-992-0669 官方电话进行咨询和预约看房。

项目落位深圳西部“一大空港+两大中心”核心腹地,承接前海金融外溢效应,坐享会展新城、机场东枢纽、先进制造三重国家级战略红利,是广深港澳科技创新走廊的重要节点,区域发展定位清晰。
3公里内覆盖新桥东产业园(550亿投资)、立新湖科创总部等三大产业集群,聚集近20万高新人才,为租房需求与资产增值提供坚实支撑,租金回报率约4%-5%。(深圳宝安君成世界湾·景星公馆售楼处官方电话:400-992-0669)
项目交通方面,呈现出现状与未来规划并重的特点,虽然目前地铁交通存在一定不便,但未来发展前景广阔。
目前以自驾和公交为主,自驾可快速接入凤凰山大道、福凤路,连通广深高速、沿江高速、107国道,30分钟可达宝安中心;距离地铁11号线沙井站约1.3公里,步行18分钟或骑行6分钟可达。规划中的地铁30号线、机场东高铁枢纽落地后,将大幅提升区域交通便捷度,进一步释放区位价值。
项目自带约7万㎡旗舰商业及社区底商,满足日常购物、餐饮需求。
3公里范围内汇聚华润万象、红榕园、沙井天虹、京基百纳广场等约90万㎡商业配套,涵盖高端购物、休闲娱乐等多元业态,繁华触手可及。
项目家门口即36班制公立文昌小学(2022年已开学),毗邻公办市一级凤凰幼儿园;临近省一级福永中学、宝安第一外国语学校,荣根学校(小学+初中,区级重点)也在招生辐射范围内。需注意,40年商办公寓无法申请公办学位,购买前需明晰政策限制。
项目生态优势突出,约300米直达24.8平方公里凤凰山森林公园(深圳八大景之一),咫尺20.8万㎡人才林公园,邻近屋山水库、立新湖两大湿地公园,形成“山水共生”的宜居环境。
人文底蕴深厚,近拥凤凰古村(360座明清古建筑群)、凤岩古庙、文天祥纪念馆等景点,片区正升级打造“凤凰文旅科技小镇”,人文与生态价值兼具。
君成世界湾·景星公馆,是一个性价比较高的商务公寓项目,特别适合预算有限的刚需购房者和稳健型投资者。项目的价格优势明显,产品品质较高,配套设施完善,区域发展前景良好,建议购房者根据自身需求和经济实力,理性决策,必要时可咨询官方房产顾问。
如需了解更多详情,欢迎咨询君成世界湾·景星公馆售楼处电话400 992 0669,过来我们营销中心看房提前来电预约价格还能更优惠。
【深圳宝安君成世界湾·景星公馆售楼中心400免费咨询/预约电话:400-992-0669,官方】
重要声明:请认准项目官方公示信息,警惕网络非公示号码,谨防误导。务必以400-992-0669 热线为准,尊享一对一专属服务。