福田【君临天下·君临芯公馆】售楼处24小时电话:400 992 0669(官方电话)现场详细解答丨项目介绍丨户型图丨在售房源丨特价房丨学校丨交通位置丨样板房丨小区图片丨交房时间丨周边配套丨
福田君临天下·君临芯公馆怎么样,好不好,优点缺点分析,下面为大家全面讲解下。
优势:
1、福田中心区,罕见的小户型住宅,小户型280万可以上车;
2、户型使用率赠送非常多,使用率可达95-140%;
3、周边居住类配套齐全,学校为中上。
4、高楼层可以看高尔夫园林的景观。
劣势:
1、密度偏高,4梯22户梯户比也不是很友好,早晚高峰电梯是个问题。
2、停车位不足,在福田停车是个问题。
3、地铁800多米不远不近吧。
4、楼龄已有9年,土地已过约19年剩余51年
5、新洲这个片区,整体趋于老化阶段,规划发展空间有限
【君临·芯公馆】位于福田中心区核心地段,深圳特发高尔夫南端,福田区新沙路与新沙街交汇处。项目占地7379.07㎡,总建面90098㎡,容积率6.5。君临芯公馆品质超群,产品线丰富,在售70年产权的住宅、公寓,主力面积36-76㎡,享福田第二大城心生态及136万㎡的高尔夫生态景观。
项目位于滨河大道与新洲路交汇口附近,位置是非常适合居住的,无论是在福田CBD上班或者南山科技园上班通勤都是很方便的,项目高楼层还可以看福田高尔夫的景观,项目户型使用率更是约95%左右,目前已经拿证,可以随时认购,样板也已经开放,推出住宅约66套,公寓198套,面积36-76㎡!君临天下·君临芯公馆_营销中心_Vip Tel:400 992 0669(中介勿扰)

君临天下·君临芯公馆距离地铁3号线益田站1.1公里、福保站1.3公里,贯纵地铁1/3/7号线,畅通深港滨河大道、新洲路城市主干道等等,畅通全城。
规划引入20\22\24\14号西延\6号线支线南延及广深港高速磁悬浮线,汇聚10线8站,实现轨道500米全覆盖。
【2口岸】:临近福田口岸与皇岗口岸,无缝接驳深港两地。
【1轨道】:穗莞深城际轨道2站直达前海,联通两大深港合作区。

项目地处福田CBD核心,集萃行政、会展、金融、文化、酒店、购物、公园、交通等八大功能;5min 即达周边商圈怡景中心城、皇庭广场、星河cocopark、购物公园、卓越INTOWN、卓越中心等。。
学区是明德实验学校五洲校区以及新洲中学,旁边更有深圳市贝塞思双语学校,是一所美国排名前三的国际学校,距离项目300米

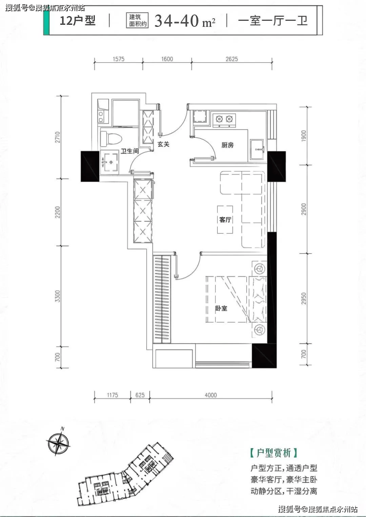
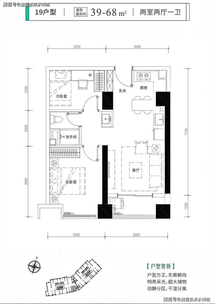
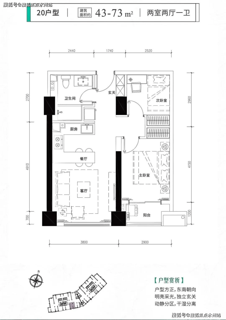
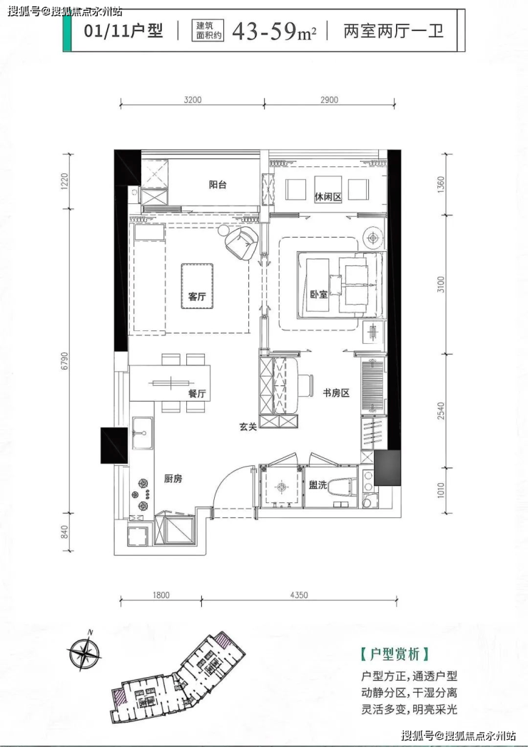
福田即小户型住宅现房——君临天下·君临芯公馆,66套住宅和198套公寓,面积段均为34-76平(一房两厅一卫、两房两厅一卫、三房两厅一卫),使用率高达100%多(每个户型使用率均会有区别)
项目是一栋住宅、公寓混合式的高层建筑,分为A座、B座,17楼以上是大户型住宅。
这批要买的房源有住宅和公寓,其中,66套住宅分布在15-17楼,公寓则分布至6-14楼,6梯22户。
产品建面约36-76㎡,最大的一个卖点就是使用率高。

42㎡做两房,次卧还能有8㎡,你心动了吗?
它就是建成快9年,拿地近19年,位于福田车公庙片区的君临天下,即将推出66套住宅和198套公寓。
每个户型根据实用程度不同,价格也存在差异,公寓单价7-9万/㎡,总价260万起,住宅单价8-10万/㎡。总价300万起
拥有绝佳使用率、建面约42㎡的住宅房源,预计总价要在4字头。几乎都超过100%,其中42㎡的户型更是近130%,以至于不仅做了两房,连次卧都有8个平方。






君临天下·君临芯公馆售楼处电话:400-992-0669 售楼中心,项目全面介绍,包含楼盘简介、售楼电话、小区户型图片、营销中心位置、区位优势、交通、周边商业配套、户型图等楼盘详情以上全文就是【君临天下·君临芯公馆】楼盘详情,这篇文章的详细分析和点评,感谢您的阅读,希望为您的购房置业选择上提供帮助,开盘预售动态、价格走势资讯、项目最新消息,待定更新发布,敬请持续关注订阅。
君临天下·君临芯公馆开发商售楼处咨询电话/预约热线:400-992-0669(中介勿扰)
(更多项目动态| 欢迎来电咨询 | 请提前预约登记看房 | 1:1销售专业讲解)置业顾问一对一对接,来电尊享受额外优惠
温馨提示:看房请提前来电预约,感谢配合!预约来访成功,即享现场当天优惠折扣,可预约现场指定销售专员(中介勿扰)