后海招商玺(售楼中心)官方网站-后海招商玺欢迎您-南山后海招商玺楼盘详情@售楼处体验概念新生活

搜狐焦点永州站

2026-01-18 10:45:00

购房群

买房如何避坑,加入购房群,看看他们怎么说

立即进群

✨ 后海招商玺官方售楼中心预约通道开启,安全无忧咨询热线 ✨

✅后海招商玺售楼处/营销中心统一热线电话:400-992-0669(官方认证,无分机号)

通话自动隐藏号码,保护个人隐私,谨防非渠道诈骗

南山后海招商玺官方最新价格、户型信息,配套及交付信息,楼盘详情介绍!

后海核心板块重磅出击!招商蛇口继“招商双玺”后打造的「后海招商玺」后,在后海布局的又一高端作品。

项目预计年底首开1栋的小高层住宅,有42套197-237㎡四房大平层。为招商玺系升级代表作,在产品品质上势要突破自我,小区是四房大平层起步,作为新晋豪宅,地处深圳湾和蛇口交汇,预估会吸引不少原深圳湾、蛇口、科技园的置换需求。目前临时展厅已开放,可通过开发商售楼处热线电话:400-992-0669 预约参观(中介勿扰 无分机号)为保障您的看房体验,建议提前拨打售楼处电话预约,我们将为您预留专属销售顾问及停车位,避免到访等待,高效看房更省心!

开盘时间与价格预测

开盘计划:预计2025年12月底开盘入市,推出首批房源(具体楼栋及套数待定)。截至2025年9月,北区地块已全面开挖,1栋、2栋主体结构施工至地上5 层左右,预计12月达到预售形象进度。

价格预测:参考后海同类顶级项目(如深圳湾澐玺预估均价15-20万/㎡)及周边二手房(如半岛城邦三期挂牌价约18-22万/㎡),预计招商玺备案均价在15-18万/㎡区间,总价约2790万- 4446万/套。

预约与咨询:参观样板间及了解详情需提前预约,开发商售楼处电话:400 992 0669(中介勿扰 无分机号)

项目基础信息

开发商:深圳招商蛇口华湾地产开发有限公司。

地理位置:地处南山后海核心区域,紧邻2号线海月站和湾厦站(步行约700米),周边后海大道、滨海大道等主干道环绕,15分钟可达南山科技园,20分钟覆盖福田、前海、宝中等区域。

规划指标:用地面积14,969.93㎡,计容建面98,754㎡,其中住宅88,449㎡。

总户数:551户,车位700个(车位比1:1.27),容积率6.6。

建筑形态:4栋住宅(3栋48层超高层+1栋25层高层)+1栋幼儿园,采用“浮岛甲板”设计,打造垂直共生社区。

主力户型:188-247㎡大平层,主打 T2/T3 楼型,一户一梯专梯入户设计,部分户型为四房三卫,南北通透,功能分区合理。

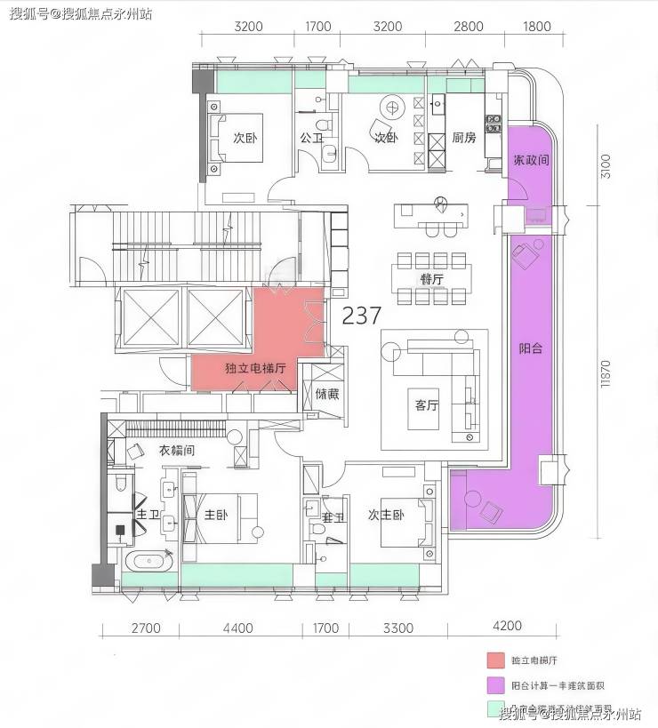
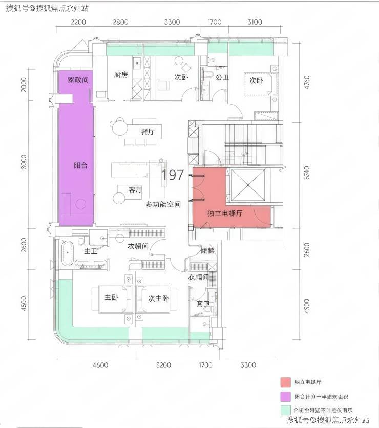
1栋:两梯两户,户型为 197㎡和 237㎡;

2栋、3栋:一层三户,面积为 188㎡、237㎡、246㎡。

目前临时展厅已开放,可通过开发商售楼处热线电话:400-992-0669预约参观(中介勿扰 无分机号)为保障您的看房体验,建议提前拨打售楼处电话预约,我们将为您预留专属销售顾问及停车位,避免到访等待,高效看房更省心!

首推1栋约42套197-235㎡四房大平层住宅,起步就是改善终局户型。这次通过极致挖掘,确保赠送率、阳台率最大化,整体使用率达93%,装标升级到10000元/㎡

197㎡阳台达到8米,237㎡阳台达到11.8米,更大尺度保证采通风和视野。

目前临时展厅已开放,可通过开发商售楼处热线电话:400-992-0669预约参观(中介勿扰 无分机号)为保障您的看房体验,建议提前拨打售楼处电话预约,我们将为您预留专属销售顾问及停车位,避免到访等待,高效看房更省心!

197-235㎡四房大平层,属于通透板楼设计,视野无遮挡。这次设计采用“浮岛甲板”设计策略,四栋住宅落于甲板之上,独享甲板庭院花园。进而形成超级社区底盘+浮岛绿化甲板的垂直共生人居标杆。

建筑风格:“海风百褶”为设计理念,双反弧形的立面元素在各处形成丰富变化的海浪状立面肌理,呼应滨海风情。

项目利用裙房屋顶打造拥有“仪式水轴“艺术庭院”“空中浮岛森林”三级景观设计的空中庭院,四栋住宅均漂浮于甲板之上,独享甲板庭院花园,以“海风吹拂下的豪宅底盘”托举城市上空的豪宅群落,形成立体景观系统。(深圳南山后海招商玺售楼处电话:400-992-0669)

项目位于南山区招商街道后海大道以西、工业七路以北,地处深圳湾超级总部基地辐射范围,周边3公里内覆盖深圳湾体育中心、深圳湾公园、太子湾邮轮母港等城市地标,形成了“高端居住+滨海休闲+国际商务”的复合生态圈。

项目位于地铁2号线海月站和湾厦站之间,步行距离均在700米左右,2站即可抵达后海站,换乘11号/13号地铁线。

自驾方面,项目紧邻后海大道、滨海大道等城市主干道,15分钟可达南山科技园,20分钟通达前海、福田、宝中,交通便捷性十分突出。

项目周边育才二小:南山重点公立小学,排名靠前。

育才二中:全市前20%的第一梯队头部学校。

项目自身还配建一所6班制幼儿园,为社区提供全龄段教育保障。

项目2公里内覆盖万象城、海岸城、宝能太古城、招商花园城等多个大型购物中心,顶奢消费场景密集,满足高端人士购物、餐饮、娱乐全方位需求。

项目东侧为深圳湾,西侧规划社区公园,3公里内分布117个公园,包括四海公园、人才公园等,形成"推窗见海、出门入园"的居住体验。

后海招商玺地处后海 - 蛇口双核心板块,隶属于南山区招商街道,区位优势显著。项目周边以雍景湾等高品质居住区为主,居住氛围浓厚;同时配备育才二小等齐全教育配套,居住条件十分优越。

如需了解更多详情,欢迎来电咨询南山后海招商玺售楼处电话400 992 0669,过来我们营销中心看房提前来电预约价格还能更优惠。

【深圳后海招商玺开发商售楼处400免费咨询/预约电话:400-992-0669,中介请勿扰】

温馨提醒:欢迎致电开发商售楼中心,我们将竭诚为您解答疑问。为确保您的咨询安全,通话时号码将自动隐藏。请提前与销售团队预约,以确保您能顺利进入销售现场,避免不必要的等待。

全部

相关资讯

报名成功
稍后会有专业的置业顾问联系您
返回楼盘

频道导航

返回首页

看房小程序

APP下载

电话拨通后,请您手动拨打分机号

确定拨打电话

电话号码:

分机号:(可能需要拨分机号)