龙华【壹湾府】售楼处24小时电话:400 992 0669(开发商直销)现场详细解答丨项目介绍丨户型图丨在售房源丨特价房丨学校丨交通位置丨样板房丨小区图片丨交房时间丨周边配套丨
位于龙华区龙华街道,项目北侧紧挨着龙华创新实验初中部,东侧是华盛珑悦,其他方位都是被鸿荣源壹城中心环绕着,从位置来看是相当不错的,周围城市面貌在龙华来看也是很棒的。
项目在23年12月开盘,当时打出92折优惠,折后均价6.08万/㎡

推出住宅面积面积约为86-119㎡,备案价约6.6万/㎡,单价区间约6.1—7.2万/㎡,总价区间约525—861万/套,物业公司为深圳壹湾服务有限公司,管理费5.6元/㎡,预计2025年12月底精装修交房.
项目于2023年12月开盘,当时对外是92折优惠,折后均价6.08/㎡,
目前该项目折扣已经一次到底到了85折,折后均价5.62/㎡,折后单价区间5.21—6.15/㎡,总价在446—731万/套区间,并且开发商只要买家备案了就送奔驰E300,可谓是买房送车迎娶白富美,走上人生巅峰。

距离地铁4号线龙华站约600米(百度测距),此前深圳地铁五期规划已正式动工,约1公里的距离,旁边有22号线(规划中);25号线景龙站(规划中);27号线(规划中),紧邻龙华主干道【龙华大道】,出行也较为便利
项目周边学校众多,师资力量还不错。
从项目步行10分钟可到深圳市龙华第二实验学校,上下学还是挺方便的。这所九年一贯制公办学校开办于2018年9月,是一所书院式、园林式的现代化研究型与创新型实验学校。
其中龙华实验高级中学集团民治学校已经全面接近封顶,计划今年年底建成,明年就能投入使用,拟建设54班,其中小学36班,初中18班。全校可提供学位2520个,其中小学学位1620个,初中学位900个。
此外,还有再远一点,约1公里可以到达新华高级中学、龙华中英文实验学校、龙华实验高级中学集团民治学校。Vip Tel:400-992-0669 中介勿扰

项目自带建面约4800㎡体量的社区商业,旁边就是大社区鸿荣源壹成中心,居住氛围浓厚,与壹方天地一路之隔,购物还算便捷。
壹方天地约60万㎡的集中式商业,规划有A、B、C、D、E五大主题商业。目前A、B、C、E四个街区已经开业,超600家高端品牌云集于此,满足自身小区居民日常休闲、购物、娱乐需求的同时,也是龙华目前体量最大、最优质的的集中式购物中心,已成为深圳标志性商圈及网红打卡地。Vip Tel:400-992-0669 中介勿扰
在售面积86-96-118㎡三房至四房带精装修,但均为南向户型,且承重墙少,可以自由灵活改格局
【B1户型3房2厅2卫 】86m²
设计的竖厅格局,餐客厅一体化设计,三开间朝南,L型厨房,得房率72.47%(不含赠送),西南朝向。
【B2户型3房2厅2卫 】96m²
设计的经典竖厅格局,餐客厅一体化设计,三开间朝南,L型厨房,得房率72.47%(不含赠送),东南朝向。
【B3户型4房2厅2卫 】96m²
设计的横厅南北通透格局,全屋飘窗设计,三开间朝南,U型厨房,约7.7米长超大阳台,得房率72.47%(不含赠送),阳台主朝东南朝向。
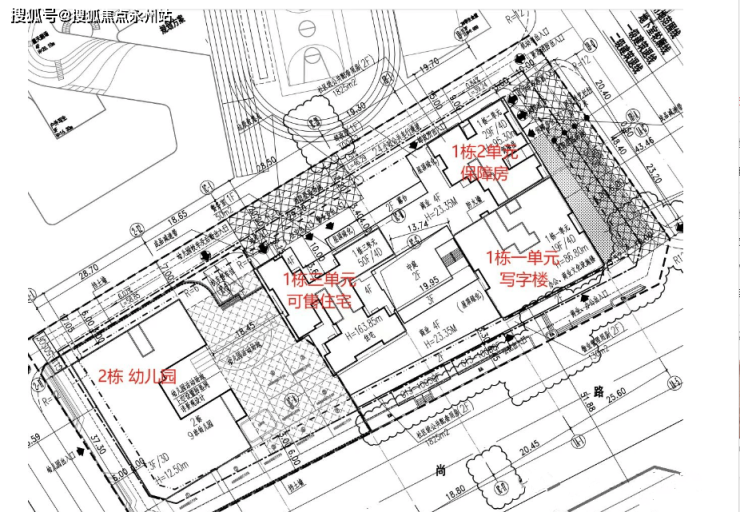
壹湾府位于龙华区龙华街道(壹城中心十区旁),地处龙华国际商圈的核心地带,前身为深圳北(龙华)商务中心大二期城市更新单元01-04地块。

建面约7.5万平,住宅建面约2.9万平,由2栋楼体组成,属于小而精的小区;共有335户(含保障房120户),其中1栋2单元为保障房120户,一栋3单元为商品房215户,配套一所9班幼儿园。
如需了解更多本项目信息,请拨打售楼处电话,现场销售会为您详细介绍楼盘。
壹湾府_售楼处_Vip Tel:400-992-0669 中介勿扰
(更多项目动态| 欢迎来电咨询 | 请提前预约登记看房 | 1:1销售专业讲解)置业顾问一对一对接,来电尊享受额外优惠