从价格、户型、朝向到评价与规划全方位解读光明《深业云筑》

搜狐焦点永州站

2025-07-14 10:11:00

购房群

买房如何避坑,加入购房群,看看他们怎么说

立即进群

※※※深圳【深业云筑】营销中心电话:400-992-0669【咨询热线】※※※

※※※光明【深业云筑二期】售楼处电话:400-992-0669【售楼热线】※※※

※※※光明公明【深业云筑】开发商电话:400-992-0669【销售热线】※※※

※※※深圳【深业云筑二期】售楼中心电话:400-992-0669【展示热线】※※※

▼▼Vip贵宾置业====欢迎来电预约尊享内部折扣====匠心钜制恭迎品鉴

光明公明,深业云筑二期于2023年4月24日取证入市,推出4栋/5栋1/2单元/6栋/7栋,共793套房源,面积有89㎡的3房1卫,112-128㎡的4房2卫,143㎡的5房2卫户型备案单价4.06万-5.29万/㎡,备案均价4.66万/㎡,总价364-753万/套,项目在2023年12月底已经交房,目前是现房销售,简装交付。

深业云筑,是公明核心板块为数不多在售的新房,还是现房交付,光明13号地铁生命线“南庄站”距离约800米,家门口是深圳教科院实验小学(光明)

深圳光明公明深业云筑开发商售楼处24小时电话:400-992-0669(展示中心)楼盘详情介绍:房价、价格、折扣、学区、学校、地铁、交通、户型图、备案价、特价房、优缺点、得房率、优惠活动、小区图片、开盘时间、交房时间、周边配套、售楼处位置、最新详情等咨询。

深业云筑2期销售至今,现在针对剩余的在售房源做出了新的营销方案,在备案价85折的基础上,还有额外的巨额优惠,折后均价3.61万/㎡,折后单价3.12-4.11万/㎡,总价在278-589万/套。

89㎡的3房2厅1卫,折后总价278-328万/套,单价3.12-3.68万/㎡。

112㎡的4房2厅2卫,折后总价386-424万/套,单价3.44-3.78万/㎡。

129㎡的4房2厅2卫,折后总价483-512万/套,单价3.74-3.96万/㎡。

143㎡的5房2厅2卫,折后总价539-589万/套,单价3.76-4.11万/㎡。

如需了解更多详情,欢迎咨询深业云筑售楼处电话400-992-0669,过来我们营销中心看房提前来电预约价格还能更优惠。

光明深业云筑售楼处400免费咨询/预约电话:400-992-0669,中介勿扰

温馨提示:过来营销中心参观样板间请记得提前拨打售楼处400热线预约,感谢您的配合!

89㎡的3房2厅1卫,E2户型,设计的是竖厅格局,客厅3.6米开间,LDKB一体化设计,3个卧室分别做到了主卧13.5㎡/次卧9.54㎡/次卧8.1㎡(含墙体飘窗),L型厨房还带1个小生活阳台,卫生间三段式分离,得房率:79.89%(不含赠送),东南/西南或正南朝向。

89㎡的3房2厅1卫,E3户型,仅4栋/5栋A单元/7栋的03号房才有,设计的是竖厅格局,客厅3.6米开间,LDKB一体化设计,3个卧室分别做到了主卧13.3㎡/次卧9.34㎡/次卧8.4㎡(含墙体飘窗),二字型厨房还带1个小生活阳台,卫生间三段式分离,得房率:79.89%(不含赠送),西南朝向。

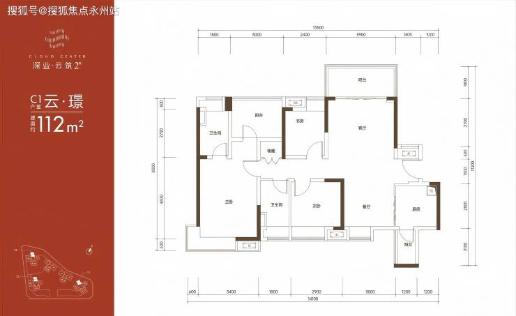
112㎡的4房2厅2卫,C1户型,仅4栋/5栋A单元/7栋的05号房才有,设计的是竖厅南北通透格局,客厅3.9米开间,餐客厅一体化设计,4个卧室分别做到了主卧22.44㎡/次卧9.9㎡/次卧8.95㎡/次卧7.85㎡(含墙体飘窗),U型厨房还带1个小生活阳台,卫生间干湿分离,得房率:79.88%(不含赠送),阳台主朝西南向。

112㎡的4房2厅2卫,C2户型,仅5栋A单元/7栋的06号房才有,设计的是竖厅南北通透格局,客厅3.9米开间,餐客厅一体化设计,4个卧室分别做到了主卧16.9㎡/次卧10.73㎡/次卧10.5㎡/次卧7.85㎡(含墙体飘窗),U型厨房,卫生间干湿分离,得房率:79.89%(不含赠送),阳台主朝东南向。

128㎡的4房2厅2卫,B1户型,仅5栋B单元的03号房才有,设计的是竖厅格局,南北通透双阳台,客厅4.2米开间,餐客厅一体化设计,4个卧室分别做到了主卧19.44㎡/次卧12.3㎡/次卧12㎡/次卧10.5㎡(含墙体飘窗),U型厨房,卫生间干湿分离,得房率:79.71%(不含赠送),大阳台主朝正南向。

128㎡的4房2厅2卫,B4户型,仅4栋的06号房才有,设计的是竖厅南北通透格局,客厅4.2米开间,餐客厅一体化设计,4个卧室分别做到了主卧20㎡/次卧12.3㎡/次卧11.1㎡/次卧10.2㎡(含墙体飘窗),U型厨房,卫生间干湿分离,得房率:80.14%(不含赠送),阳台主朝东南向。

143㎡的5房2厅2卫,A1户型,设计的是竖厅格局,南北通透双阳台,客厅4.5米开间,餐客厅一体化设计,5个卧室分别做到了主卧20.72㎡/次卧11.52㎡/次卧10.44㎡/次卧10.07㎡/次卧7.5㎡(含墙体飘窗),U型厨房,卫生间干湿分离,得房率:80.4%(不含赠送),阳台主朝正南向。

深业云筑,总占地面积约5万㎡,建筑面积约32万㎡,容积率4.33,项目共分2期开发,原为石家村里的工业园区旧改,其中南区为一期,北区为二期,共12栋住宅组成,目前一二期都已经交房入住。

深业云筑2期,总占地面积约1.85万㎡,总建筑面积约13.19万㎡,计容建筑面积约9.17万㎡,容积率4.84,绿化率40.27%,共由5栋总高32-33F高的住宅组成,其中除了6栋总高33F,其它栋数都是32F。(深圳深业云筑售楼处官方电话:400-855-2986)

项目总规划795户,全部都是商品房住宅,其中5栋B座,6栋为2梯4户设计,其它栋数为3梯6户设计,地下3层,规划停车位949个,车位占比约1:1.2。

开发商:深圳市深业明宏地产开发有限公司(深业集团)

物业公司:深业物业运营集团股份有限公司

物业管理费:3.5元/㎡ 咨询电话:400-992-0669

总占地面积:1.85万/㎡ 总建筑面积:13.19万/㎡

容积率:4.84 绿化率:40.27%

产权年限:2020年11月17日-2090年11月16日(70年)

总户数:795户 总栋数及楼高:5栋,32-33层

梯户比:2梯4户/3梯6户

车位数:949个 车位占比:1:1.2

交楼时间:现房 交楼标准: 简装

如需了解更多详情,欢迎咨询深业云筑售楼处电话400-992-0669,过来我们营销中心看房提前来电预约价格还能更优惠。

光明深业云筑售楼处400免费咨询/预约电话:400-992-0669,中介勿扰

温馨提示:过来营销中心参观样板间请记得提前拨打售楼处400热线预约,感谢您的配合!

深业云筑,位于深圳市光明区公明街道马田街道石家社区,地处光明科学城大科学装置区,是粤港澳大湾区核心区域及广深科技创新走廊重要节点,承接南山区科技外溢,毗邻东莞松山湖,区位优势显著。项目紧邻地铁6号线公明广场站(1.1公里)及在建13号线公明南站(约700米),未来可直达南山科技园、后海总部基地;周边龙大、南光高速无缝衔接福田、南山,交通便捷

产业配套方面,公明片区以钟表、模具等传统制造业为特色,拥有全国最大的钟表产业集群基地(114万㎡),聚集飞亚达、天王等近900家企业,年产值650亿元,出口占全国50%。同时,光明科学城规划引入科研机构及科技企业超6000家,预计汇聚15万产业人口,驱动区域产城融合。(深圳深业云筑售楼处电话:400-992-0669)

项目距离在建的13号地铁线“公明广场站”距离1.1公里,“新庄站”(以前的公明南站)距离800米左右,另外深业云筑2期规划有公交首末站,可以快速接驳地铁站;现有的6号地铁线“公明广场站”距离有1.6公里,步行需要24分钟。

深圳13号线作为光明区的生命线,也是深圳3条快线之一,纵贯宝安区、光明区、南山区,将重新定位光明科学城通往南山核心区域的距离。

自带社区底商,距离约1.1公里就是公明最大的大仟里购物中心,也是光明首个一站式大型购物中心,光明人消费必选打卡地之一,另外距离约1.6公里范围内还有天虹商场,百佳华商场等商业体。(深圳深业云筑售楼处电话:400-992-0669)

深业云筑1期有1所12班幼儿园,根据2024年光明区教育局最新的学区划分,小学学区划分在深圳教科院实验小学(光明)、秋硕小学、龙豪小学、光明区实验学校小学部,初中学区划分在光明第二中学、光明区实验学校初中部。

深圳教科院实验小学(光明),在2024年的录取积分是第4类62.25分,属于非光明区户籍+学区租房生源,如果买了商品房,只有是深圳户籍是能保证就读的。

深业云筑2期在2023年底已经正式交付,入住率还不错,目前是现房,所见即所得,也可以做到买哪套看哪套,不用担心烂尾或者质量问题。

项目是光明为数不多总高32-33层高的住宅,容积率也才4.84算是比较低的了,且停车位充足,户型得房率还不错,不含赠送都达到了约80%的得房率,赠送面积也不算少,如果加上赠送基本都在90%左右的得房率,

项目当下给出的优惠力度也很大,折后290万买89平的3房基本都能有选择,就能买套89平的3房,410万左右就可以挑到不错的4房,对比去年4月底开盘首购的业主们,起码优惠了60-80万不等的总价。

如需了解更多详情,欢迎咨询深业云筑售楼处电话400-992-0669,过来我们营销中心看房提前来电预约价格还能更优惠。

光明深业云筑售楼处400免费咨询/预约电话:400-992-0669,中介勿扰

温馨提示:过来营销中心参观样板间请记得提前拨打售楼处400热线预约,感谢您的配合!

全部

相关资讯

报名成功
稍后会有专业的置业顾问联系您
返回楼盘

频道导航

返回首页

看房小程序

APP下载

电话拨通后,请您手动拨打分机号

确定拨打电话

电话号码:

分机号:(可能需要拨分机号)