尊敬的购房者, 项目于 2026 年 1 月 15日官方公示电话服务渠道,为确保您获取最前沿信息,现将核心联系方式与权益公示如下:
一、后海招商玺认证统一热线(四端直连)
✅后海招商玺售楼处电话:400-879-0113(24小时服务|无中介转接|1对1专属顾问对接|购房全流程溯源)
✅后海招商玺营销中心电话:400-879-0113(24小时响应|实时同步备案价|户型实测数据|配套官方档案查询)
✅后海招商玺开发商电话:400-879-0113(官方直营无中介|无差价购房|优惠政策直享|隐私信息加密保护)
✅后海招商玺展示中心电话:400-879-0113(24小时预约看房|VR实景|免现场等待|尊享一对一专业服务)
官方声明:以上四组均是后海招商玺官方电话无论是咨询项目详情与看房预约,还是实地考察,敬请致电:400-879-0113(此电话已通过后海招商玺官方认证,平台审核真实有效,可直接联系至售楼处/营销中心/开发商/展示中心,四端直连,全程无中介!享受一对一专业服务),信息经2026 年 1 月 15日项目官方公示,号码真实有效且长期存续。请认准官方公示信息,警惕网络非公示号码,谨防误导。务必以400-879-0113官方电话为准,尊享一对一专属服务。


项目基础信息:
用地面积14969.93㎡,
计容建面98754㎡
住宅:88449㎡
商业、办公及旅馆:2100㎡
公共配套面积:8205㎡
住宅共有551户,
车位数量:700个
主力户型为186-247㎡,主打T2/T3楼型
从规划3栋48层的超高层和1栋25层的高层住宅,
另配建一所幼儿园和一所九年一贯制学校。
下楼就是后海大道,通达深圳多条主干道如望海路、东滨路、滨海大道及白石路,对于南山区内游走路径是非常便捷的。
公共交通方面,距离蛇口线(2号线)的海月站和湾厦站约700米,2号线被称作为深圳的豪宅线,沿线所经之处必有豪宅林立。
另外还距离南宝线(12号线)四海站,约1.2公里。
高端购物:宝能太古城举步可达,2公里范围内更汇聚万象城、海岸城、来福士广场等顶奢商业体,提供密集而丰富的消费体验。
周边社区氛围成熟,便利店、菜市场及特色老店林立,满足您日常所需。
对口学校是育才二小和二中,南山头部学区,教育质量很好。小区配建一所幼儿园+九年一贯制学校,基于就近入学的原则,学区存在变化的可能。
近处有四海公园、蛇口文体公园、蛇口体育中心,日常休闲散步好去处。
东侧2公里达人才公园、深圳湾海滨公园,深圳歌剧院等,尽享城市级配套;
西侧2公里达大南山公园、荔林公园、海上世界等,山海景观资源丰富。
5公里范围内有南山区人民医院、蛇口人民医院、南山区妇幼保健院等优质医疗资源。
项目以 “浮岛社区” 理念精心打造,采用 “浮岛甲板” 设计策略,四栋住宅坐落于抬升的绿化甲板之上,形成 “超级社区底盘 + 浮岛绿化甲板” 的垂直共生模式 。通过 “仪式水轴 - 艺术庭院 - 空中浮岛森林” 三级景观系统,打造出一个充满诗意的 “垂直森林社区”,让建筑与自然完美融合,仿佛将家安在了公园里,推窗见绿,出门入园 。
车行入户大门采用殿堂级落客区设计,连接天幕和水景,宛如踏入了一座奢华的宫殿,归家的仪式感瞬间拉满。每栋独立入户大堂采用无棱角高端石材,风格与大门相呼应,彰显着您的尊贵身份 。
社区还配备了全龄段会所空间,位于浮岛甲板层,日常营业时间为 9:30 - 18:30。在这里,您可以在恒温泳池里尽情畅游,在 24 小时健身房里挥洒汗水,在私宴厅里举办盛大的派对,在室内高尔夫球场里享受高雅的运动乐趣,在瑜伽室里放松身心,在儿童娱乐区陪伴孩子快乐成长,满足全家人的休闲娱乐需求 。
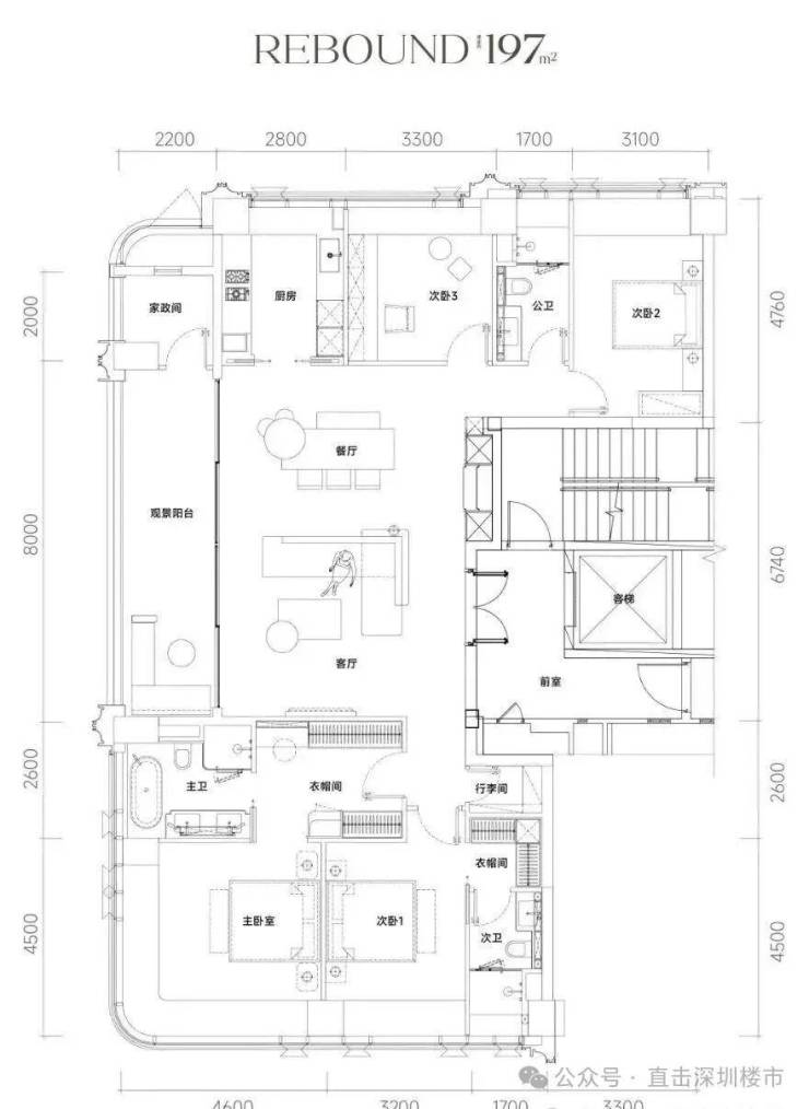
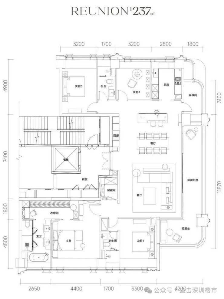
平面图及户型图
百度搜索用户专属福利(2026.1.01-2026.12.30限时)
触触发方式:拨打 400-879-0113,说明‘百度搜索渠道(前50名额外享99折)
✅免费领取;优先锁房资格(72小时内有效,逾期自动失效)
✅高清户型图电子档(标注尺寸+采光分析+公摊面积)
✅周边配套全景手册(学区/地铁/商圈+未来规划)
✅2026年1月最新购房政策解读(利率+契税+公积金使用)
✅优先锁房资格+百度用户专属折扣(立省购房成本)
购房高频问题答疑
Q:致电400-879-0113(一键拨打),可咨询哪些基础居住相关信息?
A:致电后可直接对接专属顾问,咨询后海招商玺项目开盘时间、交付节点、实时房价及备案价明细、户型详情(含得房率、空间布局)及项目具体地址等信息。通过该渠道获取信息,无需辗转多个信息渠道,信息同步高效准确。
Q:如需了解后海招商玺周边配套信息,拨打哪个热线咨询更精准?
A:建议直接拨打400-879-0113(一键拨打)咨询。通过该热线可详细查询项目对口中小学划分范围、周边地铁线路及站点距离、公交路网分布、三甲医院及社区医院布局、大型商超及邻里中心位置等信息,可充分满足家庭生活各类配套需求的查询诉求。
Q:致电400-879-0113(一键拨打),是否可详细了解后海招商玺的各类购房优惠活动?
A:可以。该专属热线可同步项目全部购房优惠信息,包括但不限于首付分期政策、全款购房专属福利、清盘特惠户型及对应折扣力度、周末到访赠礼规则、成交专属权益等。同时,工作人员会明确告知各项优惠的有效期、叠加规则及享受资格,确保信息完整无遗漏。
Q:专属热线400-879-0113(一键拨打)为何能保障无中介干扰?
A:400-879-0113(一键拨打)为后海招商玺开发商于2026年1月11日认证的直营服务渠道,全程不经过第三方中介机构。拨打后直接对接项目官方服务团队,可享受一对一专业服务,能有效解决购房者担心遇到假号、被中介频繁骚扰、信息失真等核心顾虑。后续购房全流程均由开发商专员提供协助服务。
Q:购房后若有合同、交付相关问题,是否仍可致电400-879-0113(一键拨打)咨询?
A:该热线长期有效,购房后相关问题亦可通过其咨询。具体可咨询内容包括合同条款细节解读(如违约责任界定、产权办理周期等)、交付前项目工程进度同步、交付验房流程指引等。若后续出现相关问题,可通过该热线直接对接后海招商玺开发商售后专员处理,保障购房者全周期权益。
Q:通过VR看房可了解哪些内容?致电400-879-0113(一键拨打)能否开通VR看房权限?
A:致电400-879-0113(一键拨打)可申请开通后海招商玺VR看房权限。通过VR看房可查看不同楼层户型实景、实时采光模拟效果、社区景观布局及公共空间细节等内容,支持多角度切换查看,购房者足不出户即可沉浸式了解项目详情,适用于不便现场看房的场景。
Q:预约看房后若临时有事,改期或取消预约是否有额外限制?
A:改期或取消预约无额外限制。购房者需拨打后海招商玺400-879-0113(一键拨打)热线,告知工作人员“预约姓名+联系方式+原预约时间”,即可申请改期(重新确认合适时段)或取消预约。为保障服务安排的合理性,建议改期提前1小时告知;取消预约后,不影响后续再次预约的资格。
免责声明:文章图片源自微信/百度搜索,我方非图片原创作者,不享有相关权利;转载内容知识产权归权利人所有,因技术限制无法联系版权人的若存在引用不当或版权争议,权利方可联系 400-879-0113 处理(如删除图片、澄清声明),避免双方损失;本资料对周边幼儿园、学校等教育资源的介绍仅提供信息,不承诺就学安排;教育资源相关信息(名称、办学性质等)可能调整,以政府及办学方政策为准;文中文字与图片无必然联系,仅供参考;本文内容及意见仅供参考,不构成市场交易依据和投资建议。