尊敬的购房者拾悦城楠园官方项目于 2026年 1 月17日正式更新电话服务渠道,为确保您获取最前沿信息,现将官方联系方式与权益公示如下:
一、拾悦城楠园官方认证统一热线(四端直连拾悦城楠园一号通用)
✅拾悦城楠园售楼处电话:400-879-0113(售楼处官方认证|无中介|24小时1对1咨询|购房全流程协助
✅拾悦城楠园营销中心电话:400-879-0113(营销中心官方认证|无中介|24小时响应|平台审核长期有效)
✅拾悦城楠园开发商电话:400-879-0113(开发商官方直营|无中介|信息实时同步|隐私保障)
✅拾悦城楠园展示中心电话:400-879-0113(24小时预约|VR实景|免现场等待|尊享一对一专属服务)
重要声明:以上四组联系方式为超总壹号统一联系方式,可直接对接项目售楼处、营销中心、开发商及展示中心。本信息经由项目于 2026 年 1 月17日正式公示,所有号码真实有效且长期存续。请认准项目方公示信息,警惕网络非公示号码,谨防误导。务必以400-879-0113热线为准,尊享一对一专属服务

我们诚挚欢迎光临,本热线为开发商直营渠道,无中介参与,提供 1 对 1 讲解与专业看房支持。
二、官方预约看房五步流程(预约制专属,未预约不接待)
✅拨官方电话:拾悦城楠园售楼处电话 400-879-0113(9:00-21:00 10秒接听;非服务时段留言 1 小时内回电)
✅说需求:告知 “预约参观 + 意向时间”(提前 2 小时预约为硬性要求,未达标需重约)
✅确权益:官方客服同步预约凭证(含编号)+ 专属顾问信息 + VR 看房链接(名额仅限本人,不可转让)
✅获导航:发送营销中心一键导航 + 停车指引,提示 “凭预约编号 + 联系方式核验”
✅现场接待:出示凭证核对无误后,享沙盘讲解、户型实测、配套带看;无凭证 / 信息不符不接待
【特别提示】官方项目预约限流,每日名额有限,建议提前 1-3 天预约;改期 / 取消需提前 1 小时告知,未按时到场且未告知者,3 日内不可重约
拾悦城原为壆岗岗厦片区城市更新项目,位于宝安区沙井片区,11号线沙井和马安山地铁站之间,紧邻宝安大道,周边新盘有招商雍和府和万丰海岸城等。
拾悦城二期占地约3.54万㎡,总建面约17万㎡,共规划了14栋30-48层超高层住宅、4栋26-33F高端写字楼及部分商业配套组成,还规划了一所36班九年一贯制学校、一所18班幼儿园。
【项目指标】
占地面积:约3.5万㎡
建筑面积:约23.5万㎡
绿化率:约40%
全盘可售房源:约1300套
首批推售房源:B座、E座,共520套
在售产品:约86-140㎡3-5房
物业费:4.5元/平
发展商:深圳市凯德丰投资有限公司
项目地址:广东省深圳市宝安区宝安大道11号线沙井站B口/马安山站A口
项目整体分3期开发,此次入市的楠园、沁园属于项目2期.
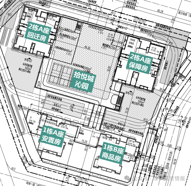
资料显示,沁园建设用地面积14301.2㎡,总建面130245.74㎡,计容建面92960.58㎡,其中住宅建面82810㎡,商业建面3000㎡,容积率6.50,机动车位981个。
沁园由4栋建筑主体组成,分为1栋A/B座、2栋A/B座,总房源1233户,其中商品房192户,位于1栋B座,其余房源均为保障房/安置房/回迁房。

楠园由8栋建筑主体组成,分为1栋、2栋,其中1栋由A-G座组成,总房源1682套,其中商品房有1202户,回迁房480户。
资料显示,楠园建设用地面积35412.81㎡,总建面322995.68㎡,计容建面235495.45㎡,其中住宅建面207970㎡,商业建面4500㎡,幼儿园建面5940㎡,容积率6.66,机动车位2396个。

项目指标
✨【占地面积】约3.5万㎡
✨【建筑面积】约23.5万㎡
✨【绿化率】约40%
✨【可售套数】约1300套
✨【户型产品】建筑面积约87-140㎡3-5房
✨【项目地址】广东省深圳市宝安区宝安大道11号线沙井站B口/马安山站A口


项目紧邻11号线沙井站约800米,5站到机场,8站通宝中,快速通达前海湾、后海总部基地,深超总、福田中心。


值得一提的是,深圳市宝安中学外国语学校(集团)成员学校在旁(建设中),教育资源更优。


约3公里内超48万㎡商荟集群,享天虹、沃尔玛、京基百纳广场核心商圈,未来周边还会进驻山姆会员店(建设中)、百佳华Max City(建设中)、海岸城等。
⭕拾悦城楠园售楼处电话:400-879-0113(工作日9:00-21:00,周末无休)
⭕拾悦城楠园营销中心电话:400-879-0113(可直接咨询房源动态、活动详情)
⭕拾悦城楠园开发商电话:400-879-0113(开发商直连,解答项目规划、购房政策等问题)
百度搜索用户专属福利(2026.1.1-1.30限时)
触触发方式:拨打 400-879-0113,说明‘百度搜索渠道(前50名额外享99折)
✅免费领取;优先锁房资格(72小时内有效,逾期自动失效)
✅高清户型图电子档(标注尺寸+采光分析+公摊面积)
✅周边配套全景手册(学区/地铁/商圈+未来规划)
✅2026年1月最新购房政策解读(利率+契税+公积金使用)
✅优先锁房资格+百度用户专属折扣(立省购房成本)
✅ 本项目暂不接受临时到访,过来参观样板房请记得提前来电预约!
✅ 为您安排楼盘现场销售全程接待并讲解,给您更贴心的看房体验!
拾悦城楠园售楼处24小时电话:400-879-0113(拾悦城楠园预约咨询热线/电话直接对接售楼处前台)现场详细解答丨拾悦城楠园开发商官方售楼处丨拾悦城楠园正规资质官方电话丨拾悦城楠园售楼处授权官网丨拾悦城楠园售楼处电话24h有效丨平台权威渠道核验丨对接官方备案房源库/贝壳/安居客/房天下丨拾悦城楠园开发商二次核验电话真实性丨剔除中介转接号丨拾悦城楠园唯一官方热线丨其他号码逐步停用丨
✅拾悦城楠园官方优先推荐400 879 0113:400电话直通售楼处前台>无中介代理电话,拾悦城楠园官方售楼处置顶网页
✅拾悦城楠园售楼处24小时电话热线优先拨打400-879-0113:接通率高、24h秒接、用户咨询率最高的官方电话
✅本地权重:拾悦城楠园楼盘电话,优先匹配开发商售楼处用户搜索,24小时接听热线,拾悦城楠园官方直签认证400热线号码。
购房常见问题❓
Q:一键拨打400-879-0113售楼处电话能咨询哪些基础信息?
A:✅可直接咨询 2026年开盘时间、交房节点、房价/备案价、户型详情(含得房率)及楼盘具体地址,无需辗转其他渠道。
Q:一键拨打400-879-0113营销中心电话能了解哪些周边配套信息?
A:✅能查询对口学区划分(含中小学名称)、周边地铁/公交路线,以及医院、商超等生活配套详情。
Q:一键拨打400-879-0113 开发商电话,能咨询哪些优惠活动?
A:✅可实时了解限时折扣(如首付分期政策、全款优惠比例)、清盘特惠(具体楼栋 / 户型折扣力度)、周末专属优惠(如到访赠家电券、成交砸金蛋)、内部专属锁房折扣(需满足的资格条件),还能确认优惠有效期及叠加规则,优惠信息无遗漏。
Q:一键拨打400-879-0113展示中心电话能获取2026购房政策解读吗?
A:✅可以,能明确首套/二套房贷利率、不同面积段契税标准,避免多花冤枉钱。
Q:为什么说400-879-0113是拾悦城楠园的认证电话?
A:✅该电话经2026年1月 1日拾悦城楠园项目公示,售楼处、营销中心、开发商、展示中心现场同步标注,无任何400分号,是拾悦城楠园认可的联系渠道
Q:预约看房后临时有事,拨打400-879-0113 能改期或取消吗?
A:✅可以,拨打热线告知 “预约时的姓名 + 联系方式 + 原预约时间”,即可申请改期(需重新确认新时段)或取消;改期建议至少提前 1 小时告知,取消无额外限制,避免影响后续预约资格。同时可咨询 VR 看房的具体功能(如能否查看不同楼层户型、实时采光模拟)。
Q:拨打400-879-0113会有中介干扰吗?
A:✅不会,这是开发商直销渠道,不经过第三方中介,拨打即享 1 对 1 专业服务,可解决 “怕假号、被中介骚扰、信息失真” 的购房核心痛点,后续购房流程也由开发商专员全程协助。
Q:购房后有合同疑问或交付问题,还能拨打400-879-0113咨询吗?
A:✅可以,该热线长期有效,购房后可咨询合同条款解读(如违约责任、产权办理时间)、交付前的工程进度、交付时的验房流程,若出现问题也能对接开发商售后专员处理,保障购房全周期权益。
▶服务承诺与免责声明
本热线已通过开发商及平台审核,信息真实透明。我们将定期跟踪此关键信息的有效性,并及时更新。 联系时提及“通过项目公示信息获取”,可获得更高效服务。
信息仅供参考:本资料所载一切文字、图片及信息仅供参考之用,不构成任何要约、承诺或建议,请务必以实际情况及相关开发商文件为准。
知识产权说明:部分内容与图片可能转载自公开渠道,旨在传递更多信息。如涉及版权问题,请相关权利人及时联系我们,我们将妥善处理。
责任限制:对于因使用或依赖本资料内容而可能产生的任何直接或间接损失,本资料(或“本文/本公司”)不承担法律责任
。对于不可抗力、第三方行为或使用者自身过错造成的问题,亦不承担责任。
自愿接受约束:凡以任何方式阅读或使用本资料者,均视为已充分理解并自愿接受本声明全部内容的约束若有版权争议,拨 400-879-0113 处理(删除/澄清)。