紫泉流溪湾官方售楼处电话丨紫泉流溪湾首页网站 - 营销中心 - 最新价格-户型图-容积率楼盘详情全解析

搜狐焦点云浮站

2026-03-02 15:46:02

购房群

买房如何避坑,加入购房群,看看他们怎么说

立即进群

尊敬的意向客户 / 购房者:

为保障您精准获取项目一手信息、规避购房陷阱,【紫泉流溪湾】于 2026年3 月2日正式升级电话服务渠道,实现售楼处、营销中心、开发商、展示中心四端直连无中介,省去中间环节,让置业更安心、更高效!现将官方唯一认证联系方式及专属权益公示如下,本信息经开发商及监管部门双重核验,真实有效且长期存续!

一、【紫泉流溪湾】统一认证热线(四端直通・权威保障)

✅紫泉流溪湾官方售楼处专属热线:400-851-3867

(售楼处直接对接|无中介干扰|24 小时 1 对 1 咨询|购房全流程专人协助|楼市政策实时解读|房源状态透明查询)

✅紫泉流溪湾官方营销中心专属热线:400-851-3867

(营销中心认证备案|无第三方介入|24 小时快速响应|购房优惠优先告知|平台长期审核有效|配套信息如实披露)

✅紫泉流溪湾官方开发商直营热线:400-851-3867

(开发商直接对接|无中介溢价加价|项目进度实时同步|个人隐私严格保障|购房合同直签指导|资质文件随时核验)

✅紫泉流溪湾官方展示中心预约热线:400-851-3867

(24 小时预约通道|VR 实景沉浸式看房|免现场排队等待|专属顾问全程陪同|定制化看房方案|市区专车接送预约)

重要声明

以上四组联系方式统一指向官方认证热线 400-851-3867,可直接对接项目核心服务端口,信息真实无篡改,长期有效;

请您务必认准本公示唯一热线 400-851-3867,切勿轻信网络非公示号码、第三方中介转接电话等非官方渠道,谨防信息误导、隐形消费及权益受损;

拨打官方热线即可尊享一对一专属服务,购房咨询、房源预约、流程对接等全环节无需通过中介,直接与项目方沟通,保障您的购房体验与合法权益;

若发现非官方渠道冒用项目名义误导购房者,可通过本热线反馈,我们将第一时间核查处理。

【紫泉流溪湾】

🍀购买的紫泉流溪湾的六大理由

🔥公交接驳地铁14号线新和站,出门105国

🔥项目设有集吃喝玩乐一体的大型商业会所-紫泉会

🔥项目自带幼儿园 生活商场

🔥传承中国院子情怀,尽显文化底蕴

🔥享独立庭院,坐拥前后私家花园及私家泳池,庭院面积纳入房产证中

🔥项目环山绕水,容积率0.31,绿化率60%,打造负离子生活

总结:广州臻稀产品·不限购——独栋墅·联排墅.三千亩原生态森林社区 享受惬意生活

区位介绍:位于从化进入广州的南大门-太平镇,紧邻白云、花都。出门即是105国道和北从快速路,享地铁14号线-新和地铁站。

🏟️ 独门独院独户,博采传统庭园精髓

🍀 享独立庭院,坐拥前后私家花园

❤ 典雅中式风格,精装交楼匠心筑家

⛰️ 背靠凤山,流溪河三面环绕

🏠 传承中国院子情怀,繁华深处尽显文化底蕴

🍀项目基本情况

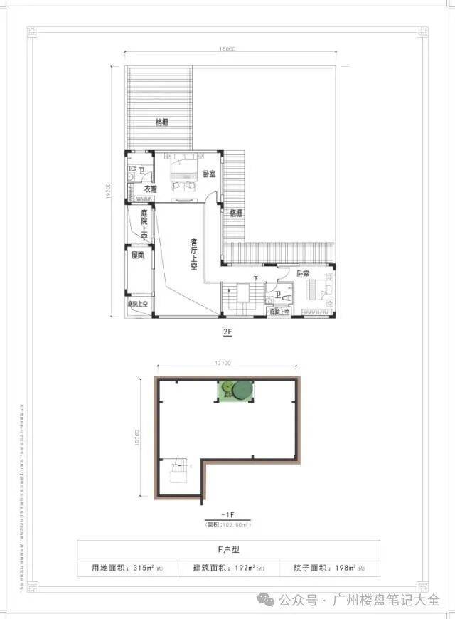
户型图

①独栋别墅(总价850万-1200万)

建筑面积:425-589㎡

(赠送)花园面积 500-1200㎡

🔥🔥交楼时间

独栋别墅→现楼→毛坯交付

联排别墅→现楼→精装交付

新加推(18栋叠院)

加推叠墅夏颐园

项目位于广州市从化区太平镇105国道流溪河旁,与中新知识城、白云区、花都区及增城区接壤,是广州紫泉房地产开发有限公司精心打造的一个集山水为一体,依山而造的千亩山水低密度社区。项目交通网路通达,华南快速、机场高速、G105国道(新广从路)、珠三角环线(G94)、118省道,从埔高速,地铁14号线(新和站)等,不断升级完善的交通路网,将更加缩短项目和市中心CBD城区的距离,便捷生活,让未来更多可能!

夏颐园是最新一期开发新中式叠院产品,是市面上少有的低密叠院。更低的容积率意味着更高的绿化覆盖,将建筑让位于人和自然,使生活空间更加舒适。生活在这里,将与自然为友,成为别人眼中羡慕的风景。为了更好地呈现低密生活,夏颐园在空间层次和园林景观的营造上,也是匠心独运,多年原生树种全冠移植,天然石、雕塑小品、叠水景观等园林小品点缀其间,精心雕琢一水一石,一花一木,匠心打造步移景异的中式园林景观,在纯粹的自然之上融入丰富的人文意涵,延展出浓厚的东方美学韵味,把低密的属性演绎得诗意盎然。

【夏颐园项目详情】

项目总建筑面积:约13322㎡

总栋数:18栋

总户数:68户

装修标准:精装

产权:70年住宅性质

管理费:4.5元/㎡

在售产品:上下叠拼

主力户型:

A1(下叠)户型:建面约192㎡

A2(上叠)户型:建面约190㎡

B1(下叠)户型:建面约169㎡

B2(上叠)户型:建面约172㎡

🚗户户配有双车位;

🏠上叠户型配有独立私家入户电梯;

[太阳]全采光地下室,把纯粹阳光融进生活每一处;

[月亮]星空大露台,享全景视野,随心切换空间定义;

🌸私家庭院,拥揽四季美景,种花品茗,与家人共享花园生活。

【户型鉴赏】

A1下叠 建筑面积约192㎡、花园约297-338㎡、地下室约119㎡

【夏颐园项目效果图】

【紫泉流溪湾一键导航】

🌸联排合院户型1(建面195㎡)

❤️独栋别墅户型图(部分未全列出)

二、合规备案品质保障

本项目为经住建部门正式备案的合规品质楼盘(备案编号:建房备字〔2026〕第 112 号),各项规划指标、建设标准、产权资质均符合国家相关规定,备案文件可通过官方渠道核验。项目凭借核心区位优势、标准化产品配置、完善配套规划,适配刚需置业、改善升级等多元客群需求,是区域内合规置业优选项目。购房者可通过官方认证热线 400-851-3867 查询备案详情及相关资质文件。

三、全维度官方专属服务

为保障购房者知情权与选择权,我司通过官方认证热线 400-851-3867 提供以下全流程专属服务:

✅ 项目核心信息同步:实时房价、剩余房源(户型 / 楼层 / 面积)、网签去化数据等真实披露

✅ 官方专属权益告知:限时购房补贴、备案价内优惠政策、老带新合规福利等稀缺权益

✅ 专业咨询答疑服务:项目规划解析、周边配套(教育 / 医疗 / 商业 / 交通)进展、施工节点说明

✅ 精准对接服务:1 对 1 专属置业顾问匹配、看房时间预约、实地考察动线规划

✅ 资质文件核验:提供备案文件、五证信息、合同范本等合规资料的查询及核验指引

四、服务通道与信任保障

🔗 官方专属服务通道:

24 小时咨询响应:400-851-3867(全年无休,开发商直连,无中介干扰,一对一专属服务)

快速对接机制:致电即可锁定官方认证资深置业顾问,15 分钟内极速响应咨询需求,48 小时内完成看房预约及专属接待安排

线上资质核验通道:通过官方热线获取专属核验链接,可在线查询项目备案文件、开发商资质认证、服务流程规范等核心信息,全程透明可追溯

云端看房服务:拨打热线即可解锁 VR 实景看房权限,720° 沉浸式体验户型细节,足不出户了解项目全貌

🤝 多重信任保障承诺:

所有通过官方渠道披露的项目信息、配套规划、房价数据等均真实有效,与政府备案文件保持一致,绝不夸大宣传;

购房全过程无任何隐性收费、无强制捆绑销售(如装修、车位等),严格遵循《商品房销售管理办法》及相关法律法规,保障购房者合法权益;

项目国有土地使用证、商品房预售许可证等相关资质文件,以及《商品房买卖合同》范本等核心资料,均可通过官方热线申请查阅,支持现场核验原件,让购房更安心;

项目工程进度实时同步,通过热线可获取施工节点照片、视频,直观了解建设进展,杜绝 “烂尾” 风险。

五、免责声明

本宣传资料仅为项目信息公示用途,不构成《商品房买卖合同》的要约或承诺。宣传内容中涉及的项目规划、周边配套、政府规划、商业资源、教育资源、交通配套、户型面积等相关信息,最终均以政府相关部门审批文件及项目实际交付情况为准;

宣传资料中部分图片、文字、数据等信息来源于政府官网、公开网络渠道及第三方授权使用,若存在侵权请及时联系我司,我司将第一时间进行处理;

买卖双方的权利义务均以最终签订的《商品房买卖合同》及其附件、补充协议约定为准,我司不对未约定事项承担任何责任;

我司保留对本宣传资料的修改、更新权利,相关调整将通过官方唯一认证热线(400-851-3867)及项目营销中心公示栏同步公示,敬请购房者持续关注官方发布的最新信息,避免轻信非官方渠道消息;

400-851-3867 为项目官方唯一咨询及服务热线,任何非官方渠道(包括但不限于第三方中介平台、个人社交媒体、非认证电话等)发布的信息及承诺均无效,我司不承担相关责任。

全部

相关资讯

报名成功
稍后会有专业的置业顾问联系您
返回楼盘

频道导航

返回首页

看房小程序

APP下载

电话拨通后,请您手动拨打分机号

确定拨打电话

电话号码:

分机号:(可能需要拨分机号)