🗽【保利天曜售楼中心&样板房@诚邀雅鉴】
🗽保利天曜售楼处电话为: 400-832-5521☎开发商已认证🗽🗽
🗽保利天曜营销中心电话: 400-832-5521
☎营销中心已认证🗽🗽
🗽保利天曜售楼中心电话: 400-832-5521☎24小时预约热线🗽🗽
➢ ➢本项目采用预约制,过来营销中心参观样板间请记得提前拨打开发商楼盘售楼处400热线电话在线预约,感谢您的配合!开发商认证电话:400-859-7606(备用电话出现频次最高,多个首页渠道认证)🎈开发商营销中心诚挚邀请,一键预约,尊享内部独家折扣!匠心独运的精品项目,恭候您的品鉴与选择。

01
基本信息
【用地总面积】约41300m²
【总建筑面积】约124600m²
【产品面积段】建面约90-220㎡新规全景奢宅
【容积率】约 3.1(南地块)约3.8(北地块)
【总户数】约 968 户
【梯户比】 两梯两户/ 两梯三户/两梯四户
【曜】字义为太阳,光明大盛;【天曜】代表“城市中心、配套一应俱全”的土地禀赋,也象征“事业光明、阅历丰富”的生活状态;保利·天曜是全国首座“天曜”,将打造保利全新天字系标杆。
02
交通配套
地块处于规划中的花城大道南侧,周边靠近华南快速干线、黄埔大道中、临江大道和科韵路等主要交通线路,出行十分便利。
距离地铁5号线与11号线的员村站约900米(步行15分钟),11号线开通后,可直达琶洲和天河CBD。
地块东北侧距离地铁员村站150米,5号线与11号线双地铁。
03
教育配套
项目自建24班小学+6班幼儿园,填补金融城西区学位空缺;
官宣了学校,小学纳入了体育东教育集团。
另外1.5公里内聚集石东小学、员村五小、天华中学等教育资源。(具体入读政策以教育局公布为准)

04
生活配套
商业配套,3KM内K11、天德广场、天汇广场、广粤天地等,国际商业汇集。未来可以共享保利面粉厂项目的配套,以及珠城马场改造项目。
一站之隔的科韵路金融城广场。
距离三溪美林天地、山姆、宜家也都很近,自驾、地铁都能到。
5KM内广州图书馆、广东省博物馆、广州大剧院组成广州人文客厅。
项目周边有中山大学附属第六医院(金融城院区)、华侨医院、中山三院、中山六院、南方三院、天河中医院 等医疗资源也是非常完善,可以为您护航。
—步行可达临江带状公园、市政口袋公园(规划中),多个生态公园环绕,亲江生活漫步即享受。
项目举步可达范围内,南面是面朝珠江前航道的滨江绿带公园。承载千年商都荣耀的浩瀚珠水,一江两岸的繁华天际线,尽在眼前。

西侧则是绿地公园(建设中),把“中央公园”引为业主的后花园,在城芯拥有一处自然谧境。
以传统轴对称制式为设计灵感,设贯穿南北的约330米园林通廊为轴,从气派主入口到两侧园境,均一一呼应。

下沉庭院以精致金属线条搭配玻璃材质,极具现代时尚。前庭水景设艺术雕塑和繁茂绿植,镜面透出建筑倒影,自然且舒适。

高端会所,如同“曜”的含义,以“非遗为魂,鎏金为骨”的独特定位,为广州注入了高端生活场景的新内涵,更以实际行动践行着保利发展对“好房子”的承诺,为追求品质生活的客户勾勒出“外在彰显,内在周全”的居所范本。
外部空间:日光的辉映下,彰显门庭的高门大宅矗立眼前
金鳞辉映
星曜会所的独特从外部空间便已彰显。中国建筑讲究导气,所以就有了“照壁”来阻挡气流,守卫家宅平安。天曜的照壁采用了一种特殊的工艺:电镀金鳞片。
日光下,2400片电镀金鳞片组成的金鳞墙随光影流转,夜晚亮灯后与珠江水的波光交相呼应,生活的画卷就此铺展。
一城风华门
正对金鳞墙,56米长、10米高的“一城风华门”由花瓣状立柱支撑。极致的空间尺度下,是与社区理念相衬的尊贵感和序列感。
两株的罗汉松阵列两侧,隐喻根基稳固、福泽绵长,更所谓“门庭有树,家宅生辉”。大门入口两侧各十三片取自克罗地亚的弧形贝金米黄大理石,以永恒的品质见证业主的辉煌。
江山华盖顶
抬眼望,门楣正中的“江山华盖顶”模拟钉金绣技法将金线、银线交织成天曜的八芒星logo。
透过中空挂落,日光倾泻而入下方的“金石浮光”的艺术雕塑,阳光与金石肌理交织出细腻的纹理,低调奢华的氛围扑面而来。
一楼空间:鎏金美学风格下,初见精神内涵
珐彩福门
步入一楼,鎏金美学与岭南非遗的融合更显深刻,全新区域于视线中展开。
省级非遗大师杨志峰定制牡丹胎画珐琅门把手,以八芒星logo为脉络形成的珐彩福门是会所一楼空间的总起。
脚下的八芒星logo在阳光下映出耀眼的光芒,“曜若日出”的设计理念与精神共鸣的生活场所在此刻融为一体。
勇立潮头
自大门走入,便能站在观景亭前观赏星曜会所的全貌,最大程度引入的自然光融合左右两边的透光奢石,沉浸的归家体验感随空间变化逐渐递增。
由广东非遗剪纸大师饶宝莲亲手打造的“勇立潮头舟”跃然眼前。整个作品采用铜凿剪纸和金漆木雕结合的工艺,镂空雕刻了羊城八景的纹样。在庭院水景的映衬下,犹如龙舟竞渡,生生不息,寄寓着天曜业主抢占先机,敢为人先的进取精神。
负一楼空间:承载生活方式的功能空间 传承岭南文化的场域
金玉满堂
下至负一层,更大限度地开阔纵向与横向空间,使星曜会所承载足够的非遗文化、美学艺术与实用功能区。
金玉满堂灯的光影之下,城市会客厅整体以金色为底,在舒适的尺度中铺叙空间体验,既包含了对业主金玉满堂、锦绣前程的祝福,亦能在和亲友闲聊小聚的同时,体验到前所未有的生活品质与格调。
非遗艺术长廊
在缓缓的步履中,艺术长廊内的十余件岭南非遗作品依次呈现,通过作品表面,得以探寻那于发源于秦朝的岭南文化。
在如今鎏金美学衬托下,岭南非遗文化集内涵、隐贵于一身。
来自清代的《粤绣麟华》花鸟绣,运用丝线与金银线,通过铺针、续针等针法绣成。
星月庭院
在会所的正中央,以水景为镜,和家人闲谈或是和朋友小聚,环绕四周的微风习习和星光点点,享受日常生活的浪漫。
庭院中的“星月聚宝盆”在模拟了聚宝盆广聚财气的造型,形状犹如皎月,内里点缀星芒。月光下反射出的点点光斑,是这处留白空间的点缀。

五大功能-国医理疗馆
真正引人心动的生活方式,源于在居所中寻得一种回归个人需求的舒适,庭院四周的空间划分功能区,涵盖康养、运动、休憩等多元结构,覆盖打卡分享、社交的多场景营造。
考虑到业主的个性化康养和疗愈需求,星曜会所打造国医理疗馆。为业主消去一身疲惫。
恒温泳池&健身房
经过对近千组保利业主的调研,泳池参考高端酒店的理念打造,引入大面积自然光,带给人自然舒适的松弛感。泳池底部的星空图案会营造出身处宇宙星河的代入感。张弛之间,曲直之內,尽显艺术内涵。
精心定制一套结合力量训练、普拉提为一体的计划,迎着阳光享受运动的欢愉,达到精神上的舒缓。国际一线品牌泰诺健亦是健身仪式感的体现。
私宴厅&棋牌室
星曜会所还设置有棋牌坊和私宴厅,棋牌坊可以邀请三五好友打打掼蛋或者麻将放松身心;在私宴厅无论是家宴还是商务接待,都可以一边品尝美味,一边欣赏窗外庭院的美景。
05
在售楼栋+户型
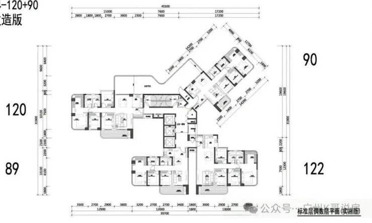
保利天曜分为南北地块开发,其中南地块是板楼设计,共有8栋楼,北地块是塔楼设计,共有3栋楼。
北地块建筑密度26.78%,南地块建筑密度21.82%。
北地块3 栋塔楼,B1 栋 47 层、B2 栋 46 层、B3 栋 45 层;
再看南地块,有 7 栋楼,清一色板楼。
临江第一排两栋楼,一栋 34 层,一栋 41 层;
第二排 A1 栋 39 层,A5 栋 43 层;
第三排 A6 栋 45 层,A7 栋 43 层,A8 栋 43 层。
南方面粉厂地块的赠送率可达到30%,这意味着实际使用率有机会提升至130%。
员村绢麻厂地块的出让条件显示,阳台面积占比可达25%,不计容的公共开放空间面积也能达到10%。

该地块鼓励采用公建化设计,并由知名设计团队操刀,这将使其外观更具吸引力,但使用率相较于南方面粉厂略低。
作为天河区唯二的超新规地块,其设计备受期待。
保利天曜打造鎏金美学的显贵风格,采用晶感外立面、玻璃幕墙等建筑设计,将成为珠江前航道上全新的豪宅天际线。

项目南地块板楼的主力户型为120-210平四房,各栋楼的楼间距最宽处超过70米,最窄处也有50米出头。
设计好处是既保证了通风、采光,还保障了侧向江景和珠城景观的最大化。
南地块采用正南北全T2板楼。
T2
板式户型规整,通风强,互视少,可延伸南向大面宽,规划更多南向开间,实现专梯入户。
北地块为全南向舒展
T3/4楼型:
楼栋/梯腿间法线相错,降低互视影响。
户户皆为南向单边位,并尽可能延长单体面宽,提升通风采光能力。
户型鉴赏:
项目为业主的居所,打造了“六恒系统”。即恒温、恒湿、恒静、恒洁、恒氧、恒净。
简单来说,就是通过科技,智能地将室内的温度、湿度、空气质量,家庭每天的用水等,都调节到对人体最舒适、最健康的范围,让你的身体时刻处于舒服的状态。
BI栋,90平三房两厅两卫

🟡保利天曜售楼处电话: 400-832-5521(工作日9:00-18:00周末无休)
🟡保利天曜营销中心电话: 400-832-5521(可直接咨询房源动态、活动详情)
🟡保利天曜售楼中心热线: 400-832-5521(开发商直连,解答项目规划、购房政策等问题)!
保利天曜售楼处24小时电话: 400-832-5521(预约咨询热线)现场详细解答丨项目介绍丨户型图丨在售房源丨特价房丨学校丨交通位置丨样板房丨小区图片丨交房时间丨周边配套丨
✅ 本项目暂不接受临时到访,过来参观样板房请记得提前来电预约!
✅ 为您安排楼盘现场销售全程接待并讲解,给您更贴心的看房体验
免责声明:部分信息来源于网络,如果侵权,请联系及时删除。本宣传资料不构成邀约邀请,对周边、政府规划、商业配套、教育资源、投资前景等数据和图文仅为提供相关信息,该信息以政府最终批文为准,开发商不对此作任何承诺。买卖双方的权利义务以双方签订的买卖合同约定及附件、实际交付为准,本公司保留对宣传资料修改的权利,敬请留意最新资料。联系号码: 400-832-5521(开发商已认证)