🍂保利玥玺湾售楼处电话✅:400-839-3379
🍂保利玥玺湾营销中心热线✅400-839-3379(24小时预约看房热线)
⭕【保利玥玺湾售楼中心&营销中心@诚邀雅鉴】
⭕保利玥玺湾售楼处电话: 400-839-3379☎☎开发商已认证🌶️🌶️
⭕保利玥玺湾营销中心电话: 400-839-3379☎☎营销中心已认证🌶️🌶️
⭕保利玥玺湾售楼中心电话: 400-839-3379☎☎24小时预约热线🌶️🌶️
➢ ➢本项目采用预约制,过来营销中心参观样板间请记得提前拨打开发商楼盘售楼处400热线电话在线预约,感谢您的配合!

2024年9月29号,广州经历了一场史诗级土拍。
保利、中海、越秀三巨头混战5小时,狂杀148轮,争抢天河临江大道北侧 AT080722地块(南方面粉厂地块)。
最终,保利胜出,豪掷约117.55亿,折合楼面价约6.7万/平,住宅实际可售楼面价7.65万/平。
⭕保利玥玺湾售楼处电话: 400-839-3379☎☎开发商已认证🌶️🌶️
⭕保利玥玺湾营销中心电话: 400-839-3379☎☎营销中心已认证🌶️🌶️
⭕保利玥玺湾售楼中心电话: 400-839-3379☎☎24小时预约热线🌶️🌶️
这也是继地价榜第四的员村一横路地块(现保利华创都荟天珺)后,保利在珠江新城再下一城,顺手创造了天河地王。
这块地被认为是近十年来广州公开出让最好的一块地,没有之一。
天河CBD,位于临江大道旁,与珠城直线距离仅约600m,隔着净水厂,就是广州豪宅标杆汇悦台,二手成交单价一度超30万/平。而隔江对望又是琶洲,正对着广交会展馆,是外商们的掘金之地+南向望江+130%使用率+容积率3.7+自带商业——buff值全部拉满,从产品属性看来,这也是一个前所未有的新一代产品
面粉厂地块更重要的意义,在于拉开了珠城的新增量、新故事。
官方对面粉厂地块的规划定位指向,是广州新一代封面性豪宅。
一线南望珠江、公建化立面、盒子式商业、公园绿化等,还有130%使用率,再加上保利豪宅基因加持;
结合效果图来看,是妥妥的汇悦台2.0,能对周边城市界面和气质有一个直观的提升。
2025年3月13号,保利在媒体春茗会上,首次公布了广州临江大道项目的面积段,涵盖210-640㎡!
就在2025年3月14号早上,政府网站就正式获批了项目的规划图!
⭕保利玥玺湾售楼处电话: 400-839-3379☎☎开发商已认证🌶️🌶️
⭕保利玥玺湾营销中心电话: 400-839-3379☎☎营销中心已认证🌶️🌶️
⭕保利玥玺湾售楼中心电话: 400-839-3379☎☎24小时预约热线🌶️🌶️
这也说明,广州临江大道项目的楼栋布局、面积段已经基本定型了
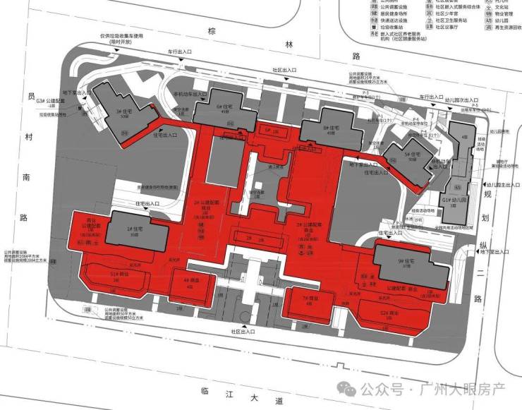
1,全盘一共6栋住宅,货量500+套。
2,全盘每栋住宅都将以连廊连接,打造无风雨归家体系,细枝末节做得很好,能看出顶豪雏形。
3,配建巨量底商(红色部分),未来极有可能打造成为会所,顶部承担屋顶花园功能。与其他项目不同的地方在于,其他项目会所往往环绕住宅分布,保利面粉厂项目的会所则渗透全盘
4,拥有南向一线江景,宅地距离珠江,直线距离仅约150米(百度测距)。并且,前排只设有临江大道和滨江公园,江景视野没有遮挡;采用公建化立面,楼体更晶莹剔透、更具现代化
5,内部消息,临江大道项目不会是天字系产品,它会是全新的产品系,超越过往。
6,保利内部极其重视这一项目,所以全盘细节正处于魔鬼打磨中,项目也不会立刻登场,预计下半年才有希望亮相。
而且保利为了项目的品控能够达到极度严苛的标准,并且在落地环节中不出现任何的变形,保利针对这个项目非常大胆的采用了穿透模式
摒弃以往明确合作单位然后给内容清单让合作方负责采购和施工的模式,而是保利发展直接自己来到源头端自己选品选材
直到选择到合适的品类然后让供应商负责采购和落地
这件事本身给到开发商巨大的工作量
而且几乎每个团队的个体全部下沉到源头端,进行事无巨细的精细化管理
但也是因为这样的模式,保证了项目的选品规格之高,叹为观止
也保证了所有前期概念在后期完全不会变形
基本情况
占地面积约4.7万㎡
建面面积约17.5万㎡、
总栋数:6栋
总户数:500多户
容积率:3.7
⭕保利玥玺湾售楼处电话: 400-839-3379☎☎开发商已认证🌶️🌶️
⭕保利玥玺湾营销中心电话: 400-839-3379☎☎营销中心已认证🌶️🌶️
⭕保利玥玺湾售楼中心电话: 400-839-3379☎☎24小时预约热线🌶️🌶️
1.交通、教育配套:
东北侧就是广州地铁 5 号线与 11 号线交汇的员村站,仅 300 米的距离,步行几分钟即可到达 。
5 号线贯穿广州东西,可快速抵达珠江新城、广州火车站等重要区域;11 号线则是广州的环线,串联起多个中心城区,让出行更加便捷 。
除了地铁,周边多条主干道环绕,自驾出行也十分方便,无论是前往广州的哪个角落,都能轻松实现快速通勤 。
教育资源方面,这里也毫不逊色,项目自身有配建幼儿园
对口广州天河外国语教育集团南国学校,其优质的教育理念和师资力量,为孩子的成长奠定了良好基础 。
不仅如此,地块 1.5 公里范围内,学校林立,从幼儿园到中学,覆盖全年龄段教育 。
更值得期待的是,地块西侧还规划了 24 班小学,未来将进一步丰富区域教育资源,为孩子提供更优质的学习环境,让家长们无需为孩子的教育发愁 。
2.商业、医疗、休闲配套:
项目配建巨量底商(红色部分),未来极有可能打造成为会所,顶部承担屋顶花园功能。
项目一路之隔,就是规划引入顶奢SKP的马场旧改
⭕保利玥玺湾售楼处电话: 400-839-3379☎☎开发商已认证🌶️🌶️
⭕保利玥玺湾营销中心电话: 400-839-3379☎☎营销中心已认证🌶️🌶️
⭕保利玥玺湾售楼中心电话: 400-839-3379☎☎24小时预约热线🌶️🌶️
项目地势做了整体抬升,整体排布北高南低,呈半月型布局,共计6栋住宅。前低后高,前排2栋分别为35层和37层,后排4栋从东往西分别是50层、49层、49层和50层,前高后低的设计,以及后排两栋楼的扭转,也实现了100%望江,货量共约500来套。
⭕保利玥玺湾售楼处电话: 400-839-3379☎☎开发商已认证🌶️🌶️
⭕保利玥玺湾营销中心电话: 400-839-3379☎☎营销中心已认证🌶️🌶️
⭕保利玥玺湾售楼中心电话: 400-839-3379☎☎24小时预约热线🌶️🌶️
面积段约为205-640平户型
产品分布如下:
1#,35层高,只有一个面积段,约630㎡户型;
3#,50层高,约205-236㎡户型;
5#,50层高,约236-240㎡户型;
6#,49层高,约270-350㎡户型;
8#,49层高,约270-350㎡户型;
9#,37层高,约377-405㎡户型。
1#和9#承担最大面积,所以一线头排望江;
6#和8#面积段其次,因此位置稍微靠后,但也能做到垂直望江;
1#和5#是200+平专场,视线就需要避让头排,斜出江景。
我们了解到,该项目,楼栋配置多一台后勤电梯,用来外卖、快递、垃圾、搬家等物业服务。(实际以项目官宣为准)
⭕保利玥玺湾售楼处电话: 400-839-3379☎☎开发商已认证🌶️🌶️
⭕保利玥玺湾营销中心电话: 400-839-3379☎☎营销中心已认证🌶️🌶️
⭕保利玥玺湾售楼中心电话: 400-839-3379☎☎24小时预约热线🌶️🌶️
另外,临江大道项目,保利定调为“世界级滨江作品”、“独特的城市景观客厅”,这一点,从展示的效果图能看出来——超大玻璃幕墙、铝板线条装饰,第一感觉就是高端、大气、豪宅。
值得一提的是,保利临江大道项目还有独一档的30%阳台率的超新规加持。
甚至连公共空间不计容占比都达到了10%。
🍂保利玥玺湾
🍂保利玥玺湾售楼处24小时电话:400-839-3379【☎☎售楼处已认证】🌶️🌶️
🍂保利玥玺湾售楼中心24小时电话:400-839-3379【☎☎售楼中心已认证】🌶️🌶️
🍂Vip贵宾置业===欢迎来电预约尊享内部折扣===匠心钜制恭迎品鉴🌶️🌶️
🍂免责声明:
1、文章图片来源于微信搜索或百度搜索引擎,我方非相关图片的原创作者,也不对相关图片及内容享有任何权利。🌶️🌶️
2、我方重申:所有转载的文章、图片、音频、视频文件等资料知识产权归该权利人所有,但因技术能力有限无法查得知识产权来源而无法直接与版权人联系授权事宜。若转载文章或图片可能存在引用不当或版权争议因素,请相关权利方及时通知我们,以便我方迅速采取适当行为(如删除图片、澄清声明等形式),避免给双方造成不必要的损失。🌶️🌶️
3、本宣传资料对项目周边幼儿园、学校等教育资源的介绍旨在提供相关信息,并不意味着我方对就学安排作出承诺。教育资源的名称、办学性质、办学规模、学位设置、开学(班)时间、招生条件、收费标准及招生区域存在调整的可能,应以政府教育主管部门及办学方颁布的政策规定为准。🌶️🌶️
4、文章中文字和图片之间无必然联系,仅供读者参考。🌶️🌶️
5、本文所述内容和意见仅供参考,不构成市场交易依据和投资建议。🌶️🌶️