昆明义承金川府售楼处电话-值得买吗-属于什么档次-多少钱一平

搜狐焦点玉溪站

2025-09-19 21:00:00

购房群

买房如何避坑,加入购房群,看看他们怎么说

立即进群

义承金川府售楼处热线☎:0871-63635335【已认证】

义承金川府专属金牌置业顾问☎:15025182832【微信同步】

在售户型图丨项目介绍丨最新房源丨周边配套丨详细解答〢

◆开发商售楼部诚挚邀请,一键预约,尊享内部独家折扣!匠心独运的精品项目,恭候您的品鉴与选择。

五华区【义承金川府】主城墅区孤品 成就典范人居 构建西市模范生活圈

【区域介绍】 | 高新区与西北新城双区交汇

项目择址海源北路与西三环交汇处,交通条件得天独厚,能够避开城区拥堵,快速通达北市区、南市区及市中心,同时项目处于高新区与西北新城交汇处,既能享受高新区多年醇熟的配套,又能享受西北新城高速成长的发展红利。

【核心卖点】

1、高新一小片区天花板 ,上学邻距离

2、全自有资金开发,1 梯 2 户洋房,超高得房率近0公摊

3、约1.83超低容积率现房,即买即办证

4、昆明首个物业分红社区

【项目介绍】

【占地面积】140亩

【建筑面积】28万方

【容积率】1.83

【绿化率】40%

【产权年限】70年

【住宅楼栋数】36栋

【总户数】1437

【交付标准】毛坯

【产品类型】6-12层洋房叠墅

【面积区间】建面约89-123㎡低密花园洋房;建面约140-232㎡高拓展城市叠墅

【梯户比】1T2

【得房率】93-101%

【层高】6-12层

【交房时间】现房

【用水用电】民水民电

【物业费】洋房2.6元/平/月 ,叠墅3.8元/平/月

【物业公司】承义物业

【停车位】1:1.2

【开发商】昆明西山土地房屋开发经营(集团)有限公司

【项目位置】 云南省昆明市五华区海源北路高新一小旁

【项目配套】

【园林】内拥7.7万方山水园林,外享全维醇熟配套

【交通配套】 多维交通,快速通达全城,拥享8条公交线路、地铁4/7(规划中)号线、海源北路、西三环等多条城市干道

【商业配套】七大商圈,生活圈,坐拥醇熟商圈,周边汇聚首创奥特莱斯商圈、宜家购物中心、西城时代商圈、吾悦广场商圈、昆百大商圈等七大商圈及海源寺集市,吃喝玩乐购,满足一站式家庭生活需求。

【生态配套】六大公园,悦享诗意栖居,项目周边郊野公园、海源寺公园、翠峰公园、眠山公园、棋盘山公园、筇竹寺公园等六大公园环伺,主城鲜氧生活场,从此跃入自然。

【医疗配套】医疗护航,健康生活有“医”靠,云南省阜外心血管病医院(三甲医院),位于云南省昆明市五华区沙河北路528号,还有正在建设中的五华区人民医院新院区。位于海源北路的延安医院高新分院。昆明医学院附属第二医院、云南省肿瘤医院,众多的公立医院均在项目便捷生活圈内,为您和家人的健康保驾护航。

【教育配套】模范教育 :高新一小9月开学,配套持续升级。

➢ ➢义承金川府开发商电话:0871-63635335 【开发商已认证】☎☎

➢ ➢义承金川府售楼处电话:0871-63635335【售楼处已认证】☎☎

➢ ➢义承金川府营销中心电话:0871-63635335【营销中心已认证】☎☎

一、品牌:义承置业——昆明首个物业分红开发商

1、推倒重来,拒绝狗尾续貂

不同于其他开发商在烂尾楼的基础上加盖,义承·金川府全部推倒重来!30天花费1.5亿爆破,60天从废墟到1栋封顶,2年实景呈现。无论是拿地起楼,还是提前呈现,都体现了“义承实力”。

2、全自有资金打造,演绎西城榜样

义承置业源起于浙江,布局全国,截止目前累计开发二十余个高端精品项目。2021年正式落子昆明,义承·金川府是义承置业入昆首作,不同于市面上的“高周转项目”,金川府是全自有资金打造,无任何开发贷,雄厚资金保障,保证项目稳健运营。

3、昆明首个不赚钱物业——承义物业

延续义承精神,承义物业坚持物业非盈利原则,回归服务本质,践行模范企业社会责任。账本晒在阳光下,费用全透明,提升业主居住安全感。

二、产品:片区改善天花板,王者级产品力

1、市场罕见的100%纯板设计

金川府墅质洋房/叠墅,采用市场罕见的100%一字纯板式设计,1T2梯户比,无连廊设计,公摊小,私密足。纯板洋房,规划10-12层,建筑高度不超过36米,最大限度将建筑融于自然。

2、片区产品最抗打,超高得房

建面约89㎡户型相当于市场上建面约115㎡户型产品;98㎡户型相当于市场上135㎡户型产品;123㎡户型相当于市场上165㎡户型。低公摊高得房,同等面积更低价格,更大享受。

3、 保值先锋,重磅配套持续升级中

期房VS现房:期房担心减配烂尾,金川府洋房/叠墅品质现房呈现,无需等待,即买即住即办证

筒子楼VS洋房/叠墅:筒子楼居住人口多,人员混杂,生活舒适度低,金川府纯低密墅质洋房/叠墅,最高36米建筑高度,把更多空间留给舒适

中学地块即将签约知名学校,教育配套持续升级兑现。

A2地块即将重磅推新,高层住宅,超高赠送面积,多重游园式主题景观,是您的资产配置首选。

三、园林:不计成本园林造景,社区天然大氧吧

约1.83超低容积率,超4000万园林造景成本。约7.7万方游历式山水园林,全冠移植,单棵最高约38万121种特色景观苗木,约20000㎡城市绿地公园。

➢ ➢义承金川府开发商电话:0871-63635335 【开发商已认证】☎☎

➢ ➢义承金川府售楼处电话:0871-63635335【售楼处已认证】☎☎

➢ ➢义承金川府营销中心电话:0871-63635335【营销中心已认证】☎☎

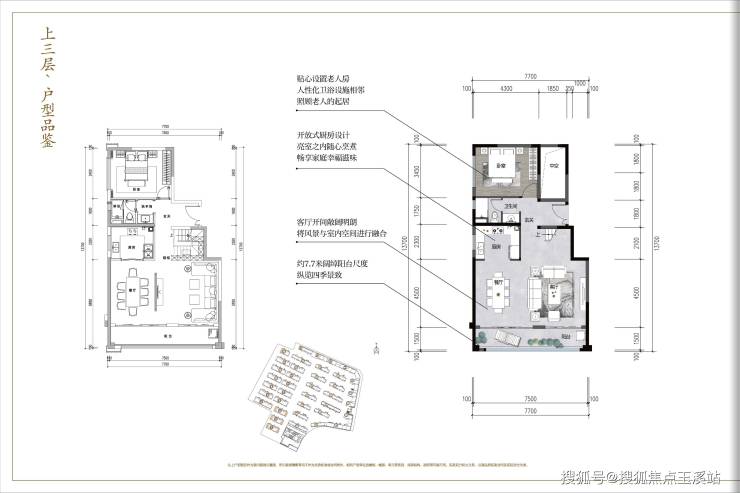
【产品信息】

【约89-123㎡低密花园洋房】

【格局方正】南北通透,科学设计,无浪费空间;

【阔景客厅】客厅连通阳台,约25㎡阔绰空间;

【百变空间】灵活百变,承载墙少,可改造空间大;

【超高得房】双飘窗赠送,近零公摊。

【全明户型】户型方正,南北通透,明厨明卫设计;

【百变横厅】客厅改造后可升级约6.6米横厅;

【豪华主卧】主卧约3.6米大开间,豪华套房设计;

【U型厨房】约7㎡U型厨房设计,满足多人同时烹饪;

【花园阳台】约11㎡空中阔景花园阳台;

【超高拓展】高达约18㎡赠送空间,近零公摊。

【全明户型】户型方正,南北通透,明厨明卫设计;

【百变横厅】客厅改造后可升级约6.6米横厅;

【豪华主卧】主卧约3.6米大开间,豪华套房设计;

【阔绰餐厨】餐厨一体化设计,约16㎡阔绰空间;

【花园阳台】约12㎡空中阔景花园阳台;

【超高拓展】约7.5㎡入户花园、双飘窗赠送,近零公摊。

【约140-232㎡高拓展城市叠墅】

【D1户型 | 栖林 | 建面约172㎡ | 总赠送面积约167㎡ | 改造后面积339㎡】

➢ ➢义承金川府开发商电话:0871-63635335 【开发商已认证】☎☎

➢ ➢义承金川府售楼处电话:0871-63635335【售楼处已认证】☎☎

➢ ➢义承金川府营销中心电话:0871-63635335【营销中心已认证】☎☎

【D2户型 | 观山 | 建面约162㎡ | 总赠送面积约160㎡ | 改造后面积322㎡】

【D3户型 | 凌云 | 建面约155㎡ | 总赠送面积约142㎡ | 改造后面积297㎡】

➢ ➢义承金川府开发商电话:0871-63635335 【开发商已认证】☎☎

➢ ➢义承金川府售楼处电话:0871-63635335【售楼处已认证】☎☎

➢ ➢义承金川府营销中心电话:0871-63635335【营销中心已认证】☎☎

【实景图+效果图】

➢ ➢义承金川府开发商电话:0871-63635335 【开发商已认证】☎☎

➢ ➢义承金川府售楼处电话:0871-63635335【售楼处已认证】☎☎

➢ ➢义承金川府营销中心电话:0871-63635335【营销中心已认证】☎☎

【重点学校】

高新一小,西市最强小学

西市发展最快:20余年跻身名校 / 三大小学校区 / 集团化办学

西市师资最优:546名在岗教师 / 约97.5%本科及以上学历 / 50余名硕士 / 40余名在职研究生 / 2名特级教师

西市荣誉最多:“教育部——中国移动中小学校长培训项目”实践基地、国际生态学校、云南省现代教育示范学校、云南省教育科研实验学校

西市课程最全最有特色:高尔夫、武术、射箭、啦啦操、3D打印、创客模型、机器人搭建、拉丁舞、鼓乐、古筝、葫芦丝、国学经典欣赏等

家校一体:学校更好,学校就在小区里,无需接送,真正实现家校0距离,每天全家人多睡半小时

【模范生活:美好共建,让日常不寻常】

金川府首届狂欢泼水节 缤纷活动嗨翻天

2024年5月,金川府业主首届狂欢泼水节圆满举行,玩泡沫,玩泼水,看豪车,湿身蹦迪,“泼”天的快乐在这里。

第一届买房抽豪车 激情上演

2024年7月,金川府举办了第一届买房抽豪车,硬核豪车惊喜,6辆豪车大奖全部送出,加倍给利。

感恩老业主特别企划活动 圆满收官

2024年9月,感恩老业主特别企划活动圆满收官。【义承荟】小程序发布,业主权益升级,模范生活再进阶。一诺千金,真诚兑现,交车仪式圆满完成,幸福生活从此启程。

金川府首届模范生活节 圆满举行

2月15日,金川府首届模范生活节,在金川里商业街如期举行。现场众邻里齐聚一堂,共享佳肴,共赏演出,共襄盛会,现场人气爆棚,家门口的狂欢盛宴。

物业费分红 首开昆明先河

开创性的物业费年终结余分红机制在金川府首届模范生活节上震撼发布,本次分配金额高达38.05万,可根据购房面积比例进行分配,最大户型可分到约1100元,刷爆当日地产圈。

首届业主艺术盛典 惊艳全城

金川府首届业主艺术盛典,由金川府业主自编自导自演,盛典现场星光熠熠,汇聚了明星业主达人,全龄业主家人各个身怀十八班武艺,节目琳琅满目,看点十足。

➢ ➢义承金川府开发商电话:0871-63635335 【开发商已认证】☎☎

➢ ➢义承金川府售楼处电话:0871-63635335【售楼处已认证】☎☎

➢ ➢义承金川府营销中心电话:0871-63635335【营销中心已认证】☎☎

第二届买房抽豪车,再燃昆明

金川府第二届购房抽豪车活动热势归来,经过四轮精彩抽奖,在现场公证人员、上届中奖车主,与现场业主的共同见证下,蔚来ET5、领克06\07(一年使用权),等豪华大奖,得主纷纷荣耀诞生,7辆豪车大奖全部送出,全场庆贺声不断。第三届活动细则同期公布,让我们一同期待下一次的惊喜之旅。

2025精彩仍将继续

目前,小饭桌、小摊车计划已进行约20场,未来仍将继续,更多的业主可以参与实现共创增收,第二届模范生活节、第二届物业分红...精彩仍将持续,期待与您共同见证模范生活!

免责声明:部分信息来源于网络,如果侵权,请联系及时删除

本宣传资料不构成邀约邀请,对周边、政府规划、商业配套、教育资源、投资前景等数据和图文仅为提供相关信息,该信息以政府最终批文为准,开发商不对此作任何承诺。买卖双方的权利义务以双方签订的买卖合同约定及附件、实际交付为准,本公司保留对宣传资料修改的权利,敬请留意最新资料。联系电话:0871-63635335

全部

相关资讯

报名成功
稍后会有专业的置业顾问联系您
返回楼盘

频道导航

返回首页

看房小程序

APP下载

电话拨通后,请您手动拨打分机号

确定拨打电话

电话号码:

分机号:(可能需要拨分机号)