“祥源·城市之光”项目修建性详细规划及建筑方案批前公示

岳阳楼市资讯报道

2020-11-05 14:48:00

购房群

买房如何避坑,加入购房群,看看他们怎么说

立即进群

“祥源·城市之光A、B、C、E地块”项目修建性详细规划及建筑方案批前公示

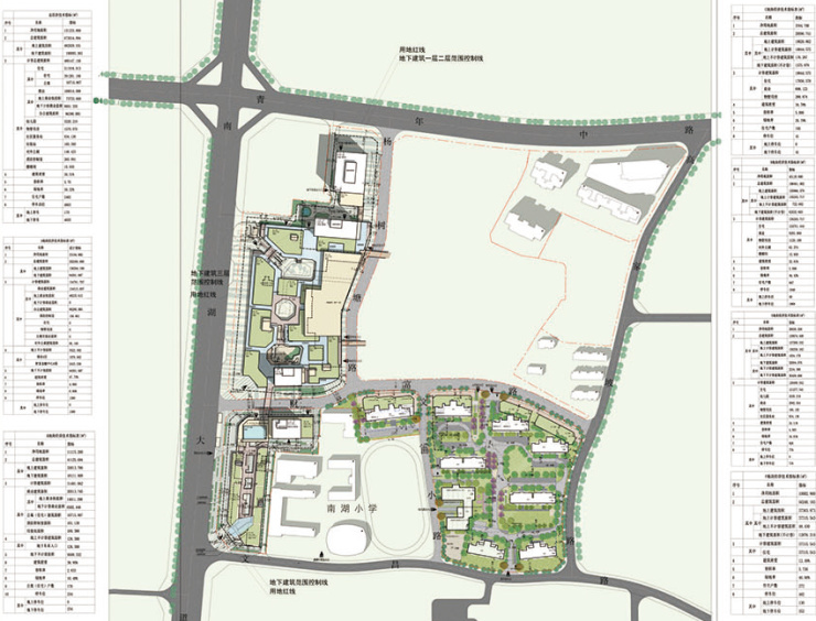
近日,岳阳市自然资源和规划局公布了“祥源·城市之光A、B、C、E地块”项目修建性详细规划及建筑方案批前公示。

祥源·城市之光有了岳阳优渥的资源,便有了“生活+品质+精致=岳阳理想住宅”,由此及彼,岳阳人的生活,也将随之不断实现越级式跨越。

我们来看看这个楼盘具体公布与资料吧!

祥源控股集团有限责任公司向我局申请如图示红线范围内进行“祥源·城市之光”项目建设,该项目位于青年中路与南湖大道交汇处东南角,净用地面积为76112.9㎡。总建筑面积为424282.729㎡。具体经济技术指标如图所示。

根据《中华人民共和国城乡规划法》第四十条、住建部《关于城乡规划公开公示的规定》第二十条之规定,我局现依法将该项目修建性详细规划方案向社会进行公示。公示时间为:2020年10月28日到2020年11月5日。相关利益人若有不同意见,请在公示日期内以书面的形式向我局提出意见或建议,逾期我局不再受理。

在这里,西向一路之隔便是市区少有一座森林公园—金鹗山公园,像被绿意包围的心脏,律动着这座城市的未来;“三纵三横”路网,10+条公交线路,立体交通网路,赋予区域转瞬通达的优势,将定义城市未来走向;以65万方超级综合体为载体,云集10+银行证券公司,周边分布市机关幼儿园、民院附小等十多所岳阳名校,还有祥源·城市之光自配的3200㎡幼儿园,让孩子享受0-15岁全系教育资源;距离东茅岭商圈、火车站商圈,及步步高新天地等购物网点十分方便,出门即可购物逛街,繁华尽在咫尺之间。

豪华的主力店阵容惊艳岳阳。包括岳阳排名前列双巨幕影厅、约8000方的精品超市、无边际泳池健身中心、跨界文化书店、岳阳排名前列高端无柱宴会餐厅等,将为岳阳带来最前沿的资源、产品、生活的共同体。

城市之光,将以其全方位中心的潜力和势能,吸附更多核心资源和价值,引领城市新一轮的发展潮流,将颠覆岳阳中心未来的生活方式。

祥源控股集团有限责任公司向我局申请如图示红线范围内进行“祥源·城市之光”项目建设,该项目位于青年中路与南湖大道交汇处东南角,净用地面积为76112.9㎡。计容总建筑面积为313587.896㎡。具体建筑方案如图所示。

根据《中华人民共和国城乡规划法》第四十条、住建部《关于城乡规划公开公示的规定》第二十条之规定,我局现依法将该项目建筑方案向社会进行公示。公示时间为:2020年10月28日到2020年11月5日。相关利益人若有不同意见,请在公示日期内以书面的形式向我局提出意见或建议,逾期我局不再受理。

城市的发展更新已不再是简单的地理板块的扩张,也不再是单纯的追求繁华,城市的新概念研究正在被持续深化,“美好生活”这一关键词将贯穿城市发展的未来。

祥源控股布局岳阳城芯,以其城市综合体住宅,为大众呈现一处最优质的居所,为岳阳再造中心!

全部

相关资讯

报名成功
稍后会有专业的置业顾问联系您
返回楼盘

频道导航

返回首页

看房小程序

APP下载

电话拨通后,请您手动拨打分机号

确定拨打电话

电话号码:

分机号:(可能需要拨分机号)