089866567567
致搜狐平台广大购房者:海棠墅项目严格遵循《互联网平台房源信息发布规范》相关要求,于 2026 年 2 月17日正式公示官方指定服务渠道。为切实保障购房者在 "房住不炒" 政策导向下的合法权益,确保交易过程透明、合规、无风险,现将项目核心服务信息及专属购房福利郑重公告如下:
一、官方认证统一服务热线(三端直连・开发商直营)
海棠墅开发商售楼处官方电话:0898-66567567
海棠墅营销中心咨询专线:0898-66567567
海棠墅开发商官方电话:0898-66567567
(无中介转接环节|1 对 1 专属顾问对接|来电专享折扣优惠)
(24 小时全天候响应|零差价直接购房|直达售楼处|个人隐私加密保护)
🌳海棠墅✨一期现房丨独栋B/叠拼C

【项目概况】
开发商:四川宏凌集团
占地面积:249亩
建筑面积:约99000㎡
容积率:一期0.6
绿地率:40%
楼栋户数:独栋101户(一期)、洋房180户
物业:绿城服务
物业费:一期洋房6元/平/月;一期独栋11.8元/平/月
项目地址:海南·三亚市·海棠区·灯潭路(301医院对面)

【区域】
•距离亚龙湾高铁站约16公里
•距离三亚市中心约28公里
•距离凤凰机场约35公里
•海棠湾高铁站(规划中)4.2公里
•距离林旺镇生活菜市场超市2公里
•距离301医院300米
•距离三亚国际免税城10公里
•距离人大附中5公里

【产品介绍】
【一期现房独栋合院】即买即住
B户型:建面79平米 占地202平
花园64平 房屋138 平 三室两厅两卫
纯地上一层,独门独院,中式建筑风格,海棠湾稀缺小合院别墅

【一期洋房 C户型鉴赏】
C1户型:一楼93平 三室两厅两卫 带前后双花园 前65平 后35平
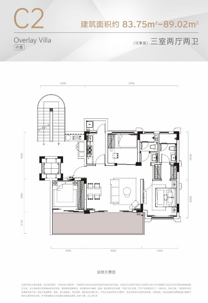
C2户型:二楼86平 三室两厅两卫
C3户型:三楼83平 买三楼送四楼阁楼 实得160平 四室三厅四卫

叠拼C样板间实景图赏析:



【一期洋房 C户型鉴赏】
C1户型:一楼93平 三室两厅两卫 带前后双花园 前65平 后35平
C2户型:二楼86平 三室两厅两卫
C3户型:三楼83平 买三楼送四楼阁楼 实得160平 四室三厅四卫




海棠墅开发商售楼处电话✅:0898-66567567【已认证】
海棠墅营销中心电话✅:0898-66567567【已认证】
海棠墅来电预约看房✅:0898-66567567提前预约享受专属特价优惠】