开发商@三亚融创一池半海首页电话-售楼处开发商是谁?房价最新相关信息-已认证

搜狐焦点肇庆站

2025-06-01 12:12:00

购房群

买房如何避坑,加入购房群,看看他们怎么说

立即进群

089866567567

售楼处电话0898-66567567【售楼中心】

售楼处电话0898-66567567【售楼中心】

售楼处电话0898-66567567【售楼中心】

基本信息

楼盘地址:三亚海棠湾南田大道融创一池半海项目营销中心。

开发商:三亚庆华圳置业有限公司。

物业公司:融创物业服务集团有限公司三亚分公司。

物业类型:住宅、别墅。

产权年限:花园洋房 70 年,叠拼 70 年。

占地面积:约 2.94 万平米,总建筑面积约 5 万平米,容积率约 1.2,绿化率约 40%。

总户数:308 户,由 54 户御府组团和 254 户御泉组团构成。

配套信息

交通配套:位于国家海岸海棠湾北区,直线离三亚凤凰机场 35 公里,直线距离三亚高铁站 27 公里、直线距离亚龙湾站 17 公里,直线距离 2.4 公里可达海南环线高速主干道。

教育配套:周边 3 公里内共有 4 个幼儿园,如三亚市海棠区人才基地幼儿园等;5 个小学,如湾镇温泉小学等;1 个中学,即三亚市藤桥中学。

医疗配套:周边有 301 海南分院、美国赫尔曼、美国哈夫布莱根等医疗机构。

商业配套:周边有海棠湾综合市场等,还有 300 余种奢侈品牌入驻的三亚国际免税城。

休闲配套:周边有 32 家一线五星级酒店,2 家超七酒店,如亚特兰蒂斯、红树林费尔蒙等;还有神州国际高尔夫、甘什岭高尔夫俱乐部、海中海高尔夫俱乐部等高尔夫球场;以及南田温泉、梦幻不夜城、水上乐园等。

户型

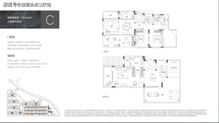
户型:主要有 118-125 平的南北通透、户型方正的四居室,以及 144 平左右的南北通透、户型方正的三居室;还有建面约 102-144㎡的叠拼房。

小区规划

建筑风格:建筑整体采用冷色调处理,将自然灵动与现代精致合而为一,营造 “酒店式”“度假感” 的美学居住体验。

温泉入户:项目拥有来自北纬 18° 的南田温泉,低温泉水富含身体所需多元矿物,打造户户温泉入户的私属居家享受。

小区内部配套有健身器材、小型篮球场等;周边配套成熟,交通、教育、医疗、商业、休闲等资源丰富;楼龄较新,绿化率高,居住环境舒适。

售楼处电话0898-66567567【售楼中心】

售楼处电话0898-66567567【售楼中心】

售楼处电话0898-66567567【售楼中心】

全部

相关资讯

报名成功
稍后会有专业的置业顾问联系您
返回楼盘

频道导航

返回首页

看房小程序

APP下载

电话拨通后,请您手动拨打分机号

确定拨打电话

电话号码:

分机号:(可能需要拨分机号)