089888880050

基本信息:项目位于三亚海棠湾控规 HT09-15-01 地块内,整体占地面积约 131 亩,总建筑面积约 15.84 万平方米,容积率 1.2,总户数 631 户,建筑限高 40 米,产品为洋房或小高层。

开发商:由三亚方大健康置业投资有限公司开发,该公司隶属于辽宁方大集团,方大集团总资产超 4000 亿元,业务涵盖炭素、钢铁、医药、商业、航空等领域。

项目规划:方大集团拟投资 50 亿元在此建设医疗健康城项目,包含高端医院、医疗康养中心、商务酒店、高端生活社区、健康养生中心等业态。项目采用半围合岛屿式布局,打造下沉式庭院,每个组团都有下沉庭院,园林配置高端。

建筑设计:以海浪流线为灵感,采用轻盈柔和的曲面结构和大面积 Low-E 玻璃幕墙,大挑檐设计模拟游艇飞翼,构建 “空中露岛”。同时融入 “溶洞”“屿林”“海湾”“森境”“浮岛” 五大自然场景元素,打造水岸花园生态社区。

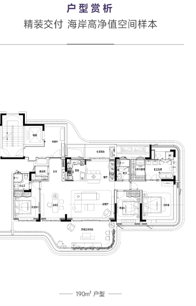
户型介绍:户型有 108㎡、138㎡、158㎡和 185㎡的住宅,大阳台搭配独立电梯入户,得房率最高可达 110%。还有商墅产品,如 125㎡的商墅,独门独院且有 1+1 赠送;90+140㎡的商墅可分可合,90㎡商墅改造后使用面积可达 280㎡。




周边配套:项目与海边直线距离约 1 公里,周边有人大附中等优质教育资源,以及国际免税城、亚特兰蒂斯酒店、超级万象城、太古里购物中心等商业配套。1 公里生活圈内还有解放军总医院海南医院、北大口腔医院、新加坡鹏瑞利医院等医疗资源。
三亚方大海棠半岛壹号售楼处电话0898-88868816【已认证】