三亚中绿馨海家园丨三亚新房臻藏丨现房楼盘丨精装现房丨自贸港红利丨核芯区红盘限时特惠 - 搜狐焦点新房

搜狐焦点肇庆站

2025-07-05 10:38:00

购房群

买房如何避坑,加入购房群,看看他们怎么说

立即进群

089866567567

地址:海南省三亚市天涯区红塘湾旅游度假区,东侧临近红塘湾七横路

【项目信息】

开发商:三亚中绿园房地产有限公司

占地面积:约3.8万㎡

总建筑面积:约14万㎡

容积率:约3.0

绿地率:约40%

楼栋户数:8栋28层高层住宅及部分配套商业组成,共计1098套安居房,商业19套

停车位:机动车停车位1098个(地下车位940个、地上车位158个),非机动车停车位361个

在售户型:建筑面积约100㎡三房两厅两卫、约120㎡四房两厅两卫

装修标准:硬装修交付(含单体挂式空调)

产权年限:住宅70年、商业40年

交付日期:暂定2023年6月30日

物业公司:海南鲁能物业服务有限公司

【立体便捷交通】

项目落址于红塘湾旅游度假区,毗邻红塘湾七横路,紧邻G225国道、G98环岛高速,依托国道、高速串联凤凰路、三亚湾路、迎宾路,可迅速抵达三亚核心商圈,为居者悦启一城繁华生活。

距离G225国道约500m

距离天涯镇约3.5km

距离三亚湾椰梦长廊约10km

距离青春颂广场约25km

距离蓝海购物广场约27km

纵享醇熟配套

项目周边荟萃卫生院、大型风情购物街、农贸市场等多元配套,中小学学校环伺,医行住娱教配套齐全,享便利无忧生活。

生活配套:天涯镇风情街 、红塘湾度假区商业街、农贸市场、大型超市、银行、邮局等生活配套应有尽有,提供丰富的日常生活服务;

医疗配套:黑土村卫生院、马岭卫生院、三亚市中心医院(规划中)、三亚市第二人民医院(规划中);

教育配套:红塘幼儿园、红塘小学、天涯小学、中央民族大学(三亚)附属中学;

社区配套:建有配套商业约1100㎡,规划有儿童游乐设施、老年活动场地等全龄娱乐运动配套,悦享缤纷休闲生活。

楼栋布局

以南向海景资源为核心,采取板楼行列式布局的形式,阔尺楼间距,将阳光、清风与美景容纳于家中。

园林景观

社区将自然的意境融入到设计中,运用建筑及绿化有致结合,营造都市中生态式住宅景观的自然生活氛围,以“生态自然”“健身漫步”“休闲娱乐”主题,以一中心景观庭院 + 三宅间景观庭院 + 四景观轴线的空间结构,打造多样化住宅空间环境。

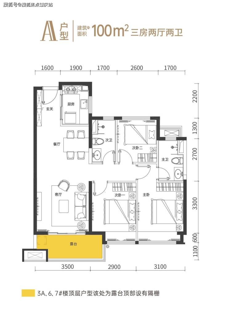
户型赏析

以细节镌刻品质,构建舒适闲逸空间体验,规划两种户型,100㎡三房两厅两卫、120㎡四房两厅两卫。

三房两厅两卫,户型方正,开阔生活视野

纯板结构,类一梯两户设计,享从容出行

南北通透,清风阳光相伴,尽纳山海风光

明厨明卫,南向双飘窗设计,享舒适生活

户型介绍视频,请点击下方

四房两厅两卫,盛纳三代同堂的理想生活

纯板结构,类一梯两户设计,享从容出行

南北朝向、明厨明卫,礼遇明媚理想生活

6.4m宽超大景观阳台、拥揽无尽园林景观

4.6m宽餐厅、阔尺厨房,烹饪幸福的滋味

户型介绍视频,请点击下方

项目园林实拍:

瞰海阳台景观实拍:

中国绿发,以“推进绿色发展,建设美丽三亚”为宗旨,突出“绿色、健康、智能”产品内涵,为居住者打造绿色高品质安居家园!

1. 政府指导价机制

定价标准:项目销售价格实行政府指导价,均价为12800 元 /㎡(含硬装交付),具体房源价格根据楼层、朝向、景观等因素制定一房一价表。

政策依据:根据《海南自由贸易港安居房建设和管理若干规定》,安居房价格需经三亚市发改委、住建局等部门联合审核,不得随意调整。

2. 申报与选房规则

常态化申报:符合条件的申请人可通过 “海易办” APP 提交申请,经资格审核后进入轮候库,等待选房通知22。

选房方式:2025 年 2 月三亚市曾对其他安居房项目开展常态化选房,但中绿馨海家园未参与,目前仍以集中摇号选房为主。

全部

相关资讯

报名成功
稍后会有专业的置业顾问联系您
返回楼盘

频道导航

返回首页

看房小程序

APP下载

电话拨通后,请您手动拨打分机号

确定拨打电话

电话号码:

分机号:(可能需要拨分机号)