开发商@三亚融创一池半海丨三亚楼盘全攻略开发商丨均价丨售楼处电话丨海景房选购丨安居房申请 - 搜狐焦点。

搜狐焦点肇庆站

2025-07-02 12:12:00

购房群

买房如何避坑,加入购房群,看看他们怎么说

立即进群

089866567567

售楼处电话0898-66567567【售楼中心】

售楼处电话0898-66567567【售楼中心】

售楼处电话0898-66567567【售楼中心】

基本信息

楼盘地址:三亚海棠湾南田大道融创一池半海项目营销中心。

开发商:三亚庆华圳置业有限公司。

物业公司:融创物业服务集团有限公司三亚分公司。

物业类型:住宅、别墅。

产权年限:花园洋房 70 年,叠拼 70 年。

占地面积:约 2.94 万平米,总建筑面积约 5 万平米,容积率约 1.2,绿化率约 40%。

总户数:308 户,由 54 户御府组团和 254 户御泉组团构成。

配套信息

交通配套:位于国家海岸海棠湾北区,直线离三亚凤凰机场 35 公里,直线距离三亚高铁站 27 公里、直线距离亚龙湾站 17 公里,直线距离 2.4 公里可达海南环线高速主干道。

教育配套:周边 3 公里内共有 4 个幼儿园,如三亚市海棠区人才基地幼儿园等;5 个小学,如湾镇温泉小学等;1 个中学,即三亚市藤桥中学。

医疗配套:周边有 301 海南分院、美国赫尔曼、美国哈夫布莱根等医疗机构。

商业配套:周边有海棠湾综合市场等,还有 300 余种奢侈品牌入驻的三亚国际免税城。

休闲配套:周边有 32 家一线五星级酒店,2 家超七酒店,如亚特兰蒂斯、红树林费尔蒙等;还有神州国际高尔夫、甘什岭高尔夫俱乐部、海中海高尔夫俱乐部等高尔夫球场;以及南田温泉、梦幻不夜城、水上乐园等。

户型

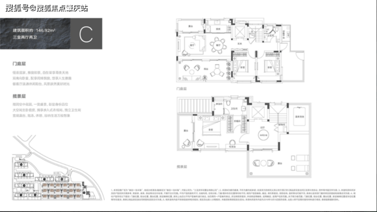
户型:主要有 118-125 平的南北通透、户型方正的四居室,以及 144 平左右的南北通透、户型方正的三居室;还有建面约 102-144㎡的叠拼房。

小区规划

建筑风格:建筑整体采用冷色调处理,将自然灵动与现代精致合而为一,营造 “酒店式”“度假感” 的美学居住体验。

温泉入户:项目拥有来自北纬 18° 的南田温泉,低温泉水富含身体所需多元矿物,打造户户温泉入户的私属居家享受。

小区内部配套有健身器材、小型篮球场等;周边配套成熟,交通、教育、医疗、商业、休闲等资源丰富;楼龄较新,绿化率高,居住环境舒适。

售楼处电话0898-66567567【售楼中心】

售楼处电话0898-66567567【售楼中心】

售楼处电话0898-66567567【售楼中心】

全部

相关资讯

报名成功
稍后会有专业的置业顾问联系您
返回楼盘

频道导航

返回首页

看房小程序

APP下载

电话拨通后,请您手动拨打分机号

确定拨打电话

电话号码:

分机号:(可能需要拨分机号)