碧桂园中央半岛逸璟台(售楼处电话)首页网站-优惠折扣-配套有哪些?-楼盘详情-周边配套-交房时间

搜狐焦点肇庆站

2025-09-26 18:27:05

购房群

买房如何避坑,加入购房群,看看他们怎么说

立即进群

089866599665

售楼处电话0898-66599665【售楼中心】【已认证】

营销中心电话0898-66599665【营销中心】【已认证】

开发商营销中心-----欢迎来电预约尊享折扣-----恭迎品鉴

碧桂园中央半岛逸璟台

2024-11-25 中央半岛

基 本 资 料

占地面积:约96029㎡

总建筑面积:约58376.73㎡

绿地率: 约45%

容积率:约0.45

建筑密度:约16.07%

车位数量:372个

产权年限:70年 (截止2077年9月11日)

总户数:220套

物业费:4.8元/㎡/月

水电费:水费3.14元/吨,电费0.6295元/度

(该单位交付后所产生的物业管理费、水电费等费用,由产权所有人承担。)

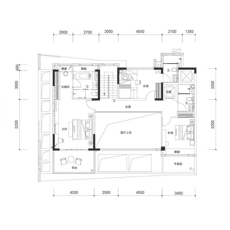
户 型 资 料

140下叠 建筑面积约156㎡

3+1 室 2 厅 3 卫

————————————

一层平面图布置

二层平面图布置

下叠(1-2层)

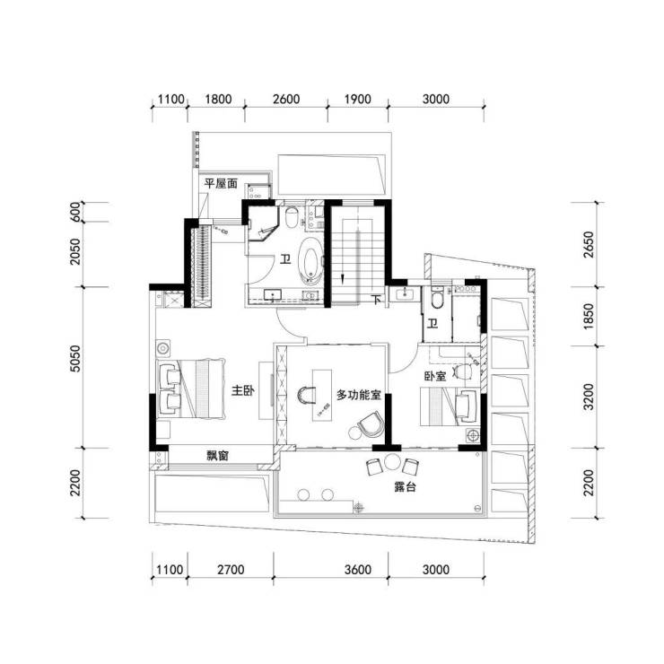
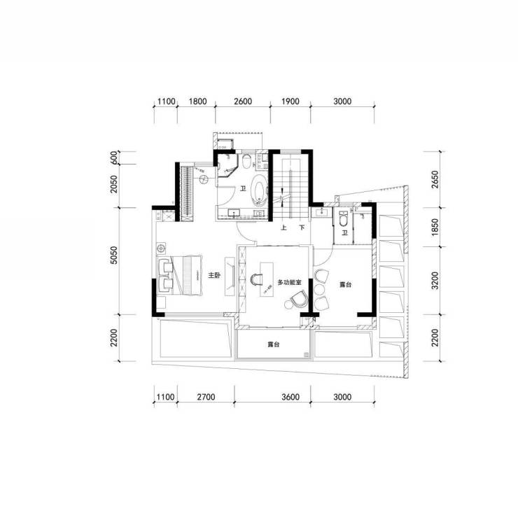
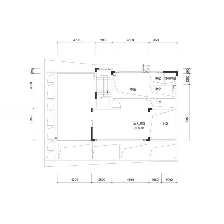
140上叠 建筑面积约168㎡

3+1 室 2 厅 3 卫

————————————

三层平面图布置

四层平面图布置

屋顶平面图布置

上叠(3-4层)

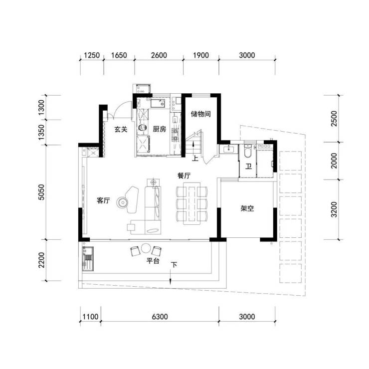
220下叠 建筑面积约251㎡

4 室 2 厅 4 卫

————————————

一层平面图布置

二层平面图布置

下叠(1-2层)

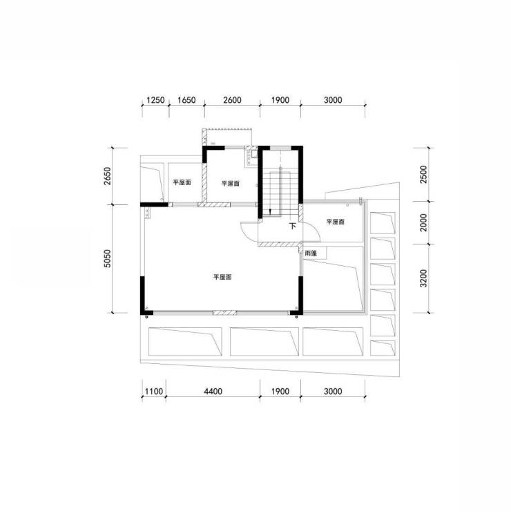
220上叠 建筑面积约210㎡

3+1 室 2 厅 3 卫

————————————

三层平面图布置

四层平面图布置

屋顶平面图布置

上叠(3-4层)

外立面示意图鉴赏

示范区实景鉴赏

项 目 价 值

碧桂园中央半岛位于海南省海口市新埠岛北端,北望琼州海峡,三面环江,一面临海,有丰富的江、海、湾景观资源。项目整盘规划,潜心打造七大生态都市系统,共计开发44个苑区(部分规划中),截止2024年已交付18个苑区,交付逾8000户房屋。“拾贝”销售中心及“拾贝”公园,为海口热门打卡目的地。

项目地址:海口市美兰区新埠岛新埠大道北端

占地面积:约5500亩

规划产品:涵盖高层住宅、商业、写字楼、低密住宅

碧桂园中央半岛 鸟瞰效果图

区位价值

Location

项目与海南自贸港建设先行区——江东新区仅一桥之隔。

尽揽环岛高铁/高速、美兰国际机场、省会酒店、医疗、教育、公园、游艇休闲、商业荟萃。

三座大桥直通现代商圈。以城市万象之繁华,融一岛璀璨绽放。

规划价值

Planning

/ 新埠岛控规 国际化发展加速度 /

2019年7月海口市自然资源和规划局公布了新埠岛控制性详细规划(修编),未来规划新埠岛将增加1条环岛干道、2座桥和4条跨河越江通道,形成与海甸岛、中心城区一体化路网格局。(信息来源:南国都市报)

配套价值

Supporting facilities

/ 尊贵礼遇 3大品牌酒店 /

星海湾铂尔曼酒店、诺富特酒店、品牌酒店(规划中),打造尊贵海上会客厅

诺富特酒店(实景图)

铂尔曼酒店(实景图)

/ 天赋胜景 四园一带自然大境 /

约12公里纯净海岸线,写意海上宽屏生活。

七色岛儿童公园、圣托里海湾公园、碧海银滩公园、拾贝公园(建设中)、约3km滨海休闲带,打造城市生态之岛,悠享惬意富氧大境。

拾贝公园(实景图)

碧海银滩公园(实景图)

约3km滨海休闲带(实景图)

/ 万象缤纷 4大精品商业街 /

南海旺角、星海湾风情商业街、迈阿密滨海商业街、滨海商业街(建设中),带来同步国际的潮流与时尚,精彩丰盛多元业态,满足衣食住行娱乐购生活需求。

南海旺角(实景图)

星海湾风情商业街(实景图)

迈阿密滨海商业街(实景图)

售楼处电话0898-66599665【售楼中心】【已认证】

营销中心电话0898-66599665【营销中心】【已认证】

开发商营销中心-----欢迎来电预约尊享折扣-----恭迎品鉴

全部

相关资讯

报名成功
稍后会有专业的置业顾问联系您
返回楼盘

频道导航

返回首页

看房小程序

APP下载

电话拨通后,请您手动拨打分机号

确定拨打电话

电话号码:

分机号:(可能需要拨分机号)