089888880050
致搜狐平台广大购房者:三亚中交国际自贸中心项目严格遵循《互联网平台房源信息发布规范》相关要求,于 2026 年 2 月17日正式公示官方指定服务渠道。为切实保障购房者在 "房住不炒" 政策导向下的合法权益,确保交易过程透明、合规、无风险,现将项目核心服务信息及专属购房福利郑重公告如下:
一、官方认证统一服务热线(三端直连・开发商直营)
三亚中交国际自贸中心开发商售楼处官方电话:0898-88880050
三亚中交国际自贸中心营销中心咨询专线:0898-88880050
三亚中交国际自贸中心开发商官方电话:0898-88880050
(无中介转接环节|1 对 1 专属顾问对接|来电专享折扣优惠)
(24 小时全天候响应|零差价直接购房|直达售楼处|个人隐私加密保护)
三亚中交国际自贸中心位于三亚CBD东岸片区,占地约40亩,总建面约21万㎡,由中国交建投资开发,涵盖187米高5A甲级总部办公楼、5.4米层高LOFT菁英空间、SOHO企业家公馆、BLOCK商业街区共4种产品。
地段
地址:三亚·总部经济及中央商务区·东岸片区
中交国际自贸中心
△ 项目交通区位图
△ 项目在三亚CBD东岸片区中的位置
开发商与物业管理

中国交建
全球领先的特大型基础设施综合服务企业。中国交建从事相关业务已有100多年历史,在香港、上海两地上市。
2021年,中国交建居《财富》世界500强第61位,在国务院国资委经营业绩考核获“16连A”。中国交建自1952年进入海南以来,旗下累计30家企业在海南开展业务,累计参与海南各类项目超1500项,落地合同额逾千亿元。
中交海洋
中交海洋投资控股有限公司是中交集团的全资子公司,是中交集团向海洋、向城市、向轨道交通、向海外市场进军的创新实践,以海南及南海区域为基点,着力发展五大业务板块。
△ 中交海洋旗下凤凰岛项目实景照
项目总体规划

△ 项目总体鸟瞰效果图
项目产品详情
5A甲级总部办公楼
约187米高迎宾路首排地标,约4.4米标准层高,约13.5米全挑空无柱化大堂,16部鼎配电梯,建面约327-387㎡产品。
△ 楼层平面图
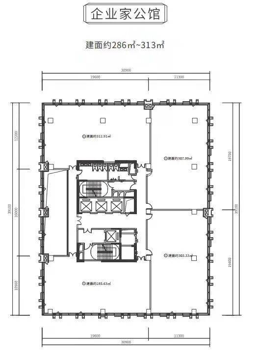
SOHO企业家公馆
4梯4户,建面约285-315㎡,以国际时尚与绿色生态理念打造奢阔品质商务生活空间。
生态阳光绿庭 花园式绿意新体验
自五层开始,每两层打造约400㎡的立面挑空生态阳光中庭及空中花园、退台还原,配置自动控制的垂直与平面自然通风系统,将自然融入商务。
约6米精装奢阔挑高大堂 尽显商务气度
配备企业专属电梯、专属停车位与落客空间,带来尊崇商务礼遇。
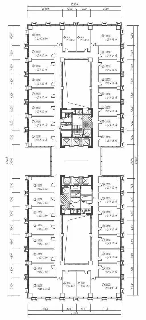
LOFT菁英空间
建面约45-101㎡,约5.4米层高挑空设计,超高使用率,兼具商业展示、商务办公、商务居住等多重功能。
△ LOFT菁英空间透视效果图
△ 楼层平面图
BLOCK商业街区
集结国内外名品名店、咖啡书吧、零售商超、商务办公等主题商业场景空间、全业态配套商务主题情景体验式商业街区,为三亚商务精英人士打造 8 小时之外的休闲社交空间。
绿色连廊,以绿色自然为设计理念,打造绿色生态商业共享体验空间。
遮阳云影天幕,采用高性能投影系统,打造巨型天幕广场。
创新多首层立体商业,与绿色生态环境相融合,打造“多首层”商铺。
三亚中交国际自贸中心开发商售楼处电话✅:0898-88880050【已认证】
三亚中交国际自贸中心营销中心电话✅:0898-88880050【已认证】
三亚中交国际自贸中心来电预约看房✅:0898-88880050提前预约享受专属特价优惠】