昆明【保利自在海】楼盘详情/户型/价格/位置/户型/房价信息

搜狐焦点昭通站

2025-06-22 09:10:00

购房群

买房如何避坑,加入购房群,看看他们怎么说

立即进群

保利自在海

保利自在海售楼处免费咨询电话☎:0871-6565-8881【售楼处已认证】

保利自在海售楼中心免费咨询电话☎:0871-6565-8881【售楼处已认证】

保利自在海展示中心免费咨询电话☎:0871-6565-8881【售楼处已认证】

保利自在海营销中心免费咨询电话☎:0871-6565-8881【售楼处已认证】

金牌置业顾问:18087748759

项目基本信息

开发商:保利

占地面积:约1331亩

建筑面积:约254万平

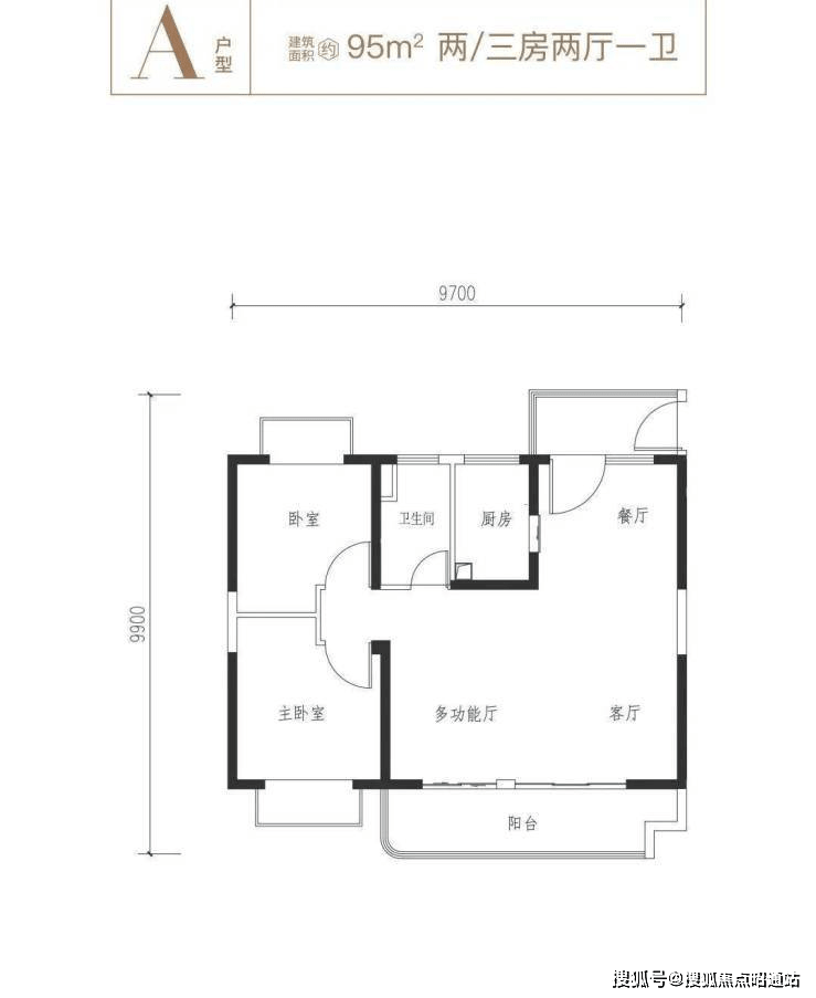
在售产品:建面约59-101平,建面约90-112平

项目位置:位于云南省昆明市滇池南岸,毗邻七彩云南欢乐世界

交通配套

环湖南路/昆磨高速/G213国道等与外界连接,快达全城;距离呈贡高铁站15公里,开车仅需30分钟便可到达;K31、K38、940、941、942等多条公交线路,快速抵达市中心;紧邻地铁线9号线,快速到达昆明各个区域

生态配套

七大生态景观公园:国立艺专旧址公园、文创公园、古滇精品湿地公园、团山湿地公园、捞鱼河公园、渔浦寒泉森林生态湿地公园、郑和公园

商业配套

项目自身规划21万方古城主题商业,引领昆明度假新潮流。结合古城传统肌理以院落及沿街商业为单位的休闲社交场景,365天不重复的民俗表演,近距离感受现代的大师作品,同时可穿过悠长的艺术长廊,探秘国立艺专和贝丘遗址鲜为人知的秘密。

医疗配套

距离昆明市中医院呈贡院区(三级甲等)约20分钟车程;距昆明医科大学第一附属医院呈贡医院(三级甲等)、呈贡区人民医院(二级甲等)约30分钟车程;同时,项目内部规划建设有一所大型综合医院。

教育配套

项目周边规划4所幼儿园、7所小学、3所中学(初中),其中自身配套1所幼儿园、2所小学和1所中学;周边还有晋城第一小学、晋城第二小学、晋城第五小学、晋城第六小学、晋宁区第二中学、晋宁区第四中学、晋宁区第六中学等。

内部配套

怦然社、芳华社、当歌社、向野社、赏阅社五个社群,邻里生活、场景营造、社区生长、文化共情四大体系

保利自在海售楼处免费咨询电话☎:0871-6565-8881【售楼处已认证】

保利自在海售楼中心免费咨询电话☎:0871-6565-8881【售楼处已认证】

保利自在海展示中心免费咨询电话☎:0871-6565-8881【售楼处已认证】

保利自在海营销中心免费咨询电话☎:0871-6565-8881【售楼处已认证】

金牌置业顾问:18087748759

全部

相关资讯

报名成功
稍后会有专业的置业顾问联系您
返回楼盘

频道导航

返回首页

看房小程序

APP下载

电话拨通后,请您手动拨打分机号

确定拨打电话

电话号码:

分机号:(可能需要拨分机号)