溪麓南郡首页网站-2025最新房价+户型图+小区环境+配套

搜狐焦点昭通站

2025-06-19 15:47:00

购房群

买房如何避坑,加入购房群,看看他们怎么说

立即进群

溪麓南郡售楼处咨询专线0871-6565-8881【售楼中心】

金牌置业顾问18087748759

生态密林·鲜氧自然·世博板块·现房现证·超低公摊

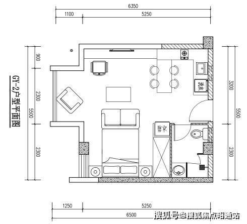
建面约34-42㎡ mini洋房

建面约70-194㎡森境高层

建面约113㎡阔景洋房

建面约113-229㎡花园洋房

项目交通

世博板块内,三横三纵交通网路,杭瑞高速、沣源路、穿金路三大核心路段畅达全城

昆明规划西北三环闭合工程,利好项目片区

临近地铁2号线北部客运站,出门即是150路公交车(溪麓南郡小区站)出行便捷。

教育配套

距项目约100m

·海贝中英文幼儿园

“昆明市文明学校”、“云南省绿色学校”、“云南省一级示范幼儿园”以及民政部颁发的“全国诚信自律先进幼儿园”、“云南劳动执法诚信单位”等许许多多的荣誉,成为行业间的楷模。

·海贝中英文小学溪麓校区

昆明市乃至全国知名的优质学校,授予“昆明市文明学校”、“云南省绿色学校”。

·昆明市盘龙区北大博雅实验中学

昆明市重点引进的“三名工程”(名师、名校、名校长),学校与北京博雅产教园强强联合创办。

据项目约900m

·东北师范大学盘龙实验学校

昆明市重点引进的“三名工程”学校。

·金实小学(源清校区)

昆明市优秀重点公办学校。

商业配套

·红星美凯龙商圈

距本案约1km,打造北市区全业态、全时态繁华商圈,提升人们的购物、休闲、娱乐等多方位体验,提升人们的生活质量,助力北市区人居升级。

·中汇商业中心

距本案约4km,集吃、住、娱乐休闲、购物等一站式商业中心。

·和谐世纪广场

距本案约4km,全业态布局最大程度满足周边购物、娱乐、休闲等需求。

·昆明同德广场

距本案约6km,昆明第一个精致时尚前沿和独一无二的集休闲娱乐、时尚餐饮、购物体验为一体的SHOPPING MALL。

·溪麓南郡商业集群

项目规划6298平方米商业,不仅完善了项目的服务功能,还将提高了项目所处区域的片区品质,未来我们营销中心也要打造成社群服务中心,致力于打造有温度的精品邻里中心。

医疗配套

·项目距离昆明市第一人民医院甘美医院直线距离仅 2.5 公里

·沿穿金路即可抵达直线距离 2.5 公里的盘龙区人民医院

溪麓南郡售楼处咨询专线0871-6565-8881【售楼中心】

金牌置业顾问18087748759

全部

相关资讯

报名成功
稍后会有专业的置业顾问联系您
返回楼盘

频道导航

返回首页

看房小程序

APP下载

电话拨通后,请您手动拨打分机号

确定拨打电话

电话号码:

分机号:(可能需要拨分机号)