✅南京中天金宁文华售楼处电话:400-678-8669转接分机号1111【已认证】✔
中天金宁文华全新作品璀璨绽放!看房请提前预约✔
✅中天金宁文华售楼处电话:400-678-8669转接分机号1111【官网】✔当云朵气球悠然升向城市天际,当AI报纸定格海淀时代面孔,当人们在Labubu 咖啡香中交谈未来……
✅中天金宁文华售楼处电话:400-678-8669转接分机号1111【楼盘认证】✔
金宁文华共规划了8栋15~18F的小高层,主力户型106㎡/119㎡/143㎡的四代宅;198㎡做的墅厅产品非常值得期待。 其中1# 2# 4# 3栋 底层架空,大概率是做泛会所, 小区内部设计有下沉庭院,后期将打造可供业主休闲娱乐的公共空间。✅南京中天金宁文华售楼处电话:400-678-8669转接分机号1111【已认证】
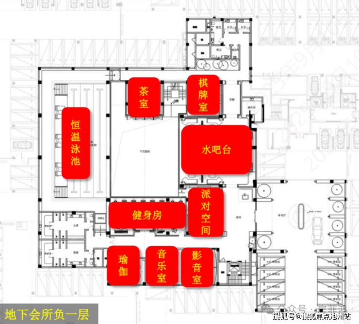
据悉,金宁文华将打造约1700㎡的下沉式会所,并结合互补效应和使用习惯,咬合布局恒温泳池、健身房、瑜伽室、钢琴室、茶室、影音室、Party Room等12大功能场景。

未来,业主们足不出小区,即可享受足以和河西豪宅媲美的超配社区生活场景。
金宁文华延续金宁风华精而美的四代宅设定,金宁文华在视觉审美上花了更多心思。这并不是奢石或名贵树木的堆砌,而是扎扎实实将美学连贯地融合到每一处场景中去。
比如建筑立面,是纯铝板石材+大面玻璃的组合,局部加以灰绿色陶板(杭州神盘芝澜月华同款)造型修饰,错层露台对称感更强,玉树金枝的唯美与震撼扑面而来。

▲金宁文华效果图&芝澜月华实景图
比如水院天光可直抵会所的中央车站,功能延展性更强,并以奢石、星级酒店门头等营造高级感。自然光洒下,回家的仪式感拉满。
比如园林景观的呈现,创新将苏州留园的婉约松弛“搬来”。色调清新雅致,大片镜面水景、包裹性满满的下沉卡座等,让人真正放松下来享受。
项目基本信息
产品类型:四代小高
容积率:2.0
绿化率:≥30%
建筑密度:≤20%
楼层状况:15~18F,共8栋
建筑面积:106㎡/119㎡/143㎡创新四代格局;198㎡墅厅尺度大宅
物业服务:中天美好服务
该项目位于江宁东山,紧邻东山首个四代宅中天·金宁风华,拟建8栋15-18F住宅,部分楼栋底层架空。值得一提是,该地块紧邻东山首个四代宅中天·金宁风华。效果图显示,户户有露台,采用玉树金枝美学立面,迭新四代宅。南京中天金宁文华售楼处电话:400-678-8669转接分机号1111【已认证】
江宁东山中天美好G55项目公布案名为中天·金宁文华,这是杭州房企中天美好在江宁打造的第三个项目。项目将打造一线河景四代宅,户型建面约106-198㎡,配置1700㎡会所,目前位于中天·金宁风华售楼处的临时展点已开放,预计10月公开实景示范区!中天金宁文华售楼处电话:400-678-1582转接分机号1111看房方式:
划重点↓↓
1、规划8栋15-18层住宅,一线河景四代宅,带错层大露台,3栋楼首层架空,打造金宁风华2.0升级版,邀请顶豪设计团队设计;
2、106、119、143、198㎡四种户型,覆盖全周期改善家庭需求,其中198㎡户型更是做了罕见的墅厅设计;
3、打造约1700㎡下沉会所,包含健身房、瑜伽室、钢琴室、PARTY ROOM、茶室、影音室等多元互动场景,还配置室内恒温泳池。南京中天金宁文华售楼处电话:400-678-8669转接分机号1111【已认证】
✅南京中天金宁文华售楼处电话:400-678-8669转接分机号1111【已认证】✔
中天金宁文华全新作品璀璨绽放!看房请提前预约✔
✅中天金宁文华售楼处电话:400-678-8669转接分机号1111【官网】✔当云朵气球悠然升向城市天际,当AI报纸定格海淀时代面孔,当人们在Labubu 咖啡香中交谈未来……
✅中天金宁文华售楼处电话:400-678-8669转接分机号1111【楼盘认证】✔