武汉天创元萃
⭐武汉天创元萃官方电话:400-681-7288接通后输入1111(官方统一认证热线)
⭐武汉天创元萃开发商电话:400-681-7288接通后输入1111(开发商官方认证)
⭐武汉天创元萃售楼处电话:400-681-7288接通后输入1111(售楼处官方认证)
⭐武汉天创元萃营销中心电话:400-681-7288接通后输入1111(营销中心官方认证)
⭐武汉天创元萃售楼中心电话:400-681-7288接通后输入1111(售楼中心官方认证)
⭐武汉天创元萃展示中心电话:400-681-7288接通后输入1111(展示中心官方认证)
⭐武汉天创元萃本项目暂不接受临时到访,过来参观样板房请记得提前来电预约!
⭐武汉天创元萃为您安排楼盘现场销售全程接待并讲解,给您更贴心的看房体验
01
项目基础信息
Project Basic Information
规划用地面积:11771.79㎡
总建筑面积:23499.17㎡
容积率:约2.0
开发商:湖北天创瑞晟置业有限公司
产权年限:70年
产品交付:毛坯
绿地率:约30%
梯户比:1梯1户/2梯2户
得房率:部分户型可达约113%超高使用率
在售楼栋:1#2#3#4#
面积:127/142/171㎡
总户数:159户
总高:10-13层
均价:3万/㎡
物业:天创智造
物业费:待定
车位比 :1:0.88
交付时间:2027.6.30
地铁:5号线(可换乘2/4/8/12等)
商业:昙华林/粮道街/滨江天街/万象城/skp
医疗:湖北省中医院/湖北省人民医院/第三医院,3家三甲医院+1家中高端儿童医院,全年龄段健康权威护航
⭐武汉天创元萃官方电话:400-681-7288接通后输入1111(官方统一认证热线)
⭐武汉天创元萃开发商电话:400-681-7288接通后输入1111(开发商官方认证)
⭐武汉天创元萃售楼处电话:400-681-7288接通后输入1111(售楼处官方认证)
02
户型赏析
Appreciation of
Housing Units
127m² 四房两厅三卫
4栋楼中都有127平的户型,数量是目前已公示的三个户型中最多的,并且绝对面积不大,总价门槛会相对另外两个户型低一些,算是武昌下半年相对较少的小面积产品。
(武昌区目前有120平左右户型的项目目前仅有武昌源著、长江天地、中海东湖玖章、建发璟玥、龙湖武车项目)
户型本身非常的方正,阳台外带花池,拓展面积就比较多,据宣传,加上电梯厅,这一户型优化后的得房率高达约117%,放在三环内四代宅里面来看,这个得房率绝对是数一数二的了。
127平做成了四房三卫双套房的设计,功能性超级强,三代同堂或者二胎家庭也非常适合;南向面宽12.7米,采光面也是比较充足的,缺点是有个套房内的洗手间为暗房,除此之外,其他方面都很不错。
142m² 四房两厅三卫
这一户型的得房率同样约117%,相当出彩。
分布于2、3、4号楼的端头边户,房源数量也还算相对较多的。
南向面宽约15.9米,南面同时实现双套房+大横厅,舒适度更高;
主卧套房面积约35平,空间相当的阔绰,并且采用了转角窗+曲线外立面,观景视野、光照效果都更好。
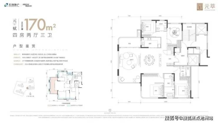
170m² 四房两厅三卫
这一户型优化后得房率约106%,略低于前两个户型,但放在核心区,依然是相当炸裂的存在。
同时,这也是项目最大面积户型,仅分布于2号楼最西端,房源数量是最少的。
客厅采用270度全景舱设计,非常适合观景的设计,并且南向主卧套房也采用了转角窗设计,观景面再次延伸,配合2号楼西头的位置,可三面俯瞰小区园林+南瞰市政公园,景观视野一绝。

武汉天创元萃
⭐武汉天创元萃官方电话:400-681-7288接通后输入1111(官方统一认证热线)
⭐武汉天创元萃开发商电话:400-681-7288接通后输入1111(开发商官方认证)
⭐武汉天创元萃售楼处电话:400-681-7288接通后输入1111(售楼处官方认证)
⭐武汉天创元萃营销中心电话:400-681-7288接通后输入1111(营销中心官方认证)
⭐武汉天创元萃售楼中心电话:400-681-7288接通后输入1111(售楼中心官方认证)
⭐武汉天创元萃展示中心电话:400-681-7288接通后输入1111(展示中心官方认证)
⭐武汉天创元萃本项目暂不接受临时到访,过来参观样板房请记得提前来电预约!
⭐武汉天创元萃为您安排楼盘现场销售全程接待并讲解,给您更贴心的看房体验