2025武汉保利琅誉(售楼处)首页网站-武汉保利琅誉(营销中心)-武汉保利琅誉楼盘欢迎您-小区环境-户型-价格-地址-楼盘详情-周边配套-售楼处电话-交房时间

搜狐焦点池州站

2025-08-09 03:48:00

购房群

买房如何避坑,加入购房群,看看他们怎么说

立即进群

✨武汉保利琅誉✨✽✽✽✽

✨武汉保利琅誉-售楼处电话:400-678-8669转7777【售楼处已认证】✨✽✽✽✽

✨武汉保利琅誉-开发商电话:400-678-8669转7777【开发商已认证】✨✽✽✽✽

✨武汉保利琅誉-营销中心电话: 400-678-8669转7777【营销中心已认证】✨✽✽✽✽

✨武汉保利琅誉-展示中心电话:400-678-8669转7777【展示中心已认证】✨✽✽✽✽

来电可了解楼盘最新动态、房价、在售房源、交楼时间等信息!让你买的放心,住的舒服

——【项目基础信息】——

【占地面积】2.3万㎡

【建筑面积】7万㎡

【容积率】3.0

【绿地率】35%

【总户数】465

【主推】3栋

【得房率】100%

【交楼时间】2026.7.30

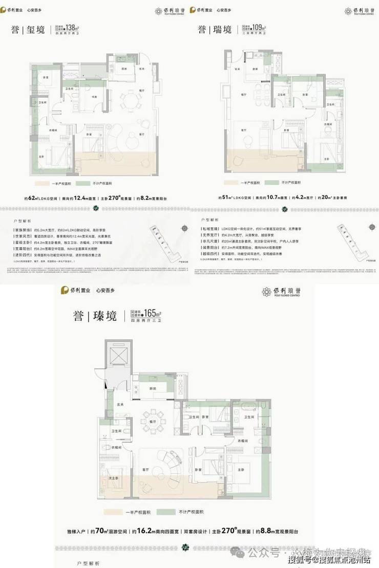
大家期盼已久的保利琅誉户型图终于更新出来。保利琅誉项目位于武汉市洪山区铁机村铁机路与团结大道交汇处。在2025年2月17日,保利城四期-B区北片调整规划,商改住,2栋写字楼变成4栋住宅。该楼盘产品也做了升级了,是准四代产品,所以得房率相对较高。

【区位&交通】

楼盘位于 番禺广场TOD · 傍雁路

交通:1.3公里上南沙港快速(广州不塞车的高速)

地铁: 距离3号线延长线傍江站700米左右

商业:500米龙湖天街,TOD综合商业中心,2.5公里永乐梦乐城

该项目也打造下沉式会所,包含私宴厅、影音室、艺术书吧、健身房等空间。整体面南向立面窗墙比70%,交付时阳台统一封窗户,保障整体立面的统一性。

保利琅誉即保利城四期一共6栋房子分为AB两个区—-B区北片项目,共四栋住宅楼,其中1#38F,2#32F,3#25F,4#31F,2、3、4#都有架空层。保利琅誉一共360户,车位配比1:1.09。A区南片有2栋 住宅和商业5#32F和6#32F

【总占地面积】约4.1万㎡

【总建筑面积】约14.3万㎡

【容积率】约2.54

【主力户型】建面约108-165㎡艺术宽邸

✨武汉保利琅誉✨✽✽✽✽

✨武汉保利琅誉-售楼处电话:400-678-8669转7777【售楼处已认证】✨✽✽✽✽

✨武汉保利琅誉-开发商电话:400-678-8669转7777【开发商已认证】✨✽✽✽✽

✨武汉保利琅誉-营销中心电话: 400-678-8669转7777【营销中心已认证】✨✽✽✽✽

✨武汉保利琅誉-展示中心电话:400-678-8669转7777【展示中心已认证】✨✽✽✽✽

来电可了解楼盘最新动态、房价、在售房源、交楼时间等信息!让你买的放心,住的舒服

全部

相关资讯

报名成功
稍后会有专业的置业顾问联系您
返回楼盘

频道导航

返回首页

看房小程序

APP下载

电话拨通后,请您手动拨打分机号

确定拨打电话

电话号码:

分机号:(可能需要拨分机号)