✨✨绿城兴贤澜颂售楼处电话:400-678-1582转接8888【已认证】
✨✨绿城兴贤澜颂售楼处位置:400-678-1582转接分机号8888【楼盘认证】
➤➤➤➤VIP贵宾置业〢欢迎来电咨询,售楼处认证电话400-678-1582转接8888【已认证】
☎为您安排楼盘现场销售全程接待并讲解,给您更贴心的看房体验!
温馨提示:如需楼盘最新在售户型和价格,请致电咨询最新详情,1对1专业销售顾问服务!
苏地2024-WG-Z34号,项目位于高新区经开区(镇)鸿禄路东、中虹路北,占地5.69万方,容积率1.2,计容总建6.82万方。
项目规划39栋住宅,其中32栋3F合院,3栋6F叠加,4栋11F洋房。

项目景观设计以中式造园为根基,当代需求为导向,深度呼应“京杭古韵・繁华姑苏”的项目主题,将苏式园林的雅致与现代生活的实用完美融合,打造低密墅区的沉浸式景观体验。


外立面以中式美学为魂、现代工艺为骨。

✨✨绿城兴贤澜颂售楼处电话:400-678-1582转接8888【已认证】
✨✨绿城兴贤澜颂售楼处位置:400-678-1582转接分机号8888【楼盘认证】


打造约2000㎡高端会所,囊括健身、泳池、私宴厅等多元奢享空间,尽显豪宅生活的尊崇仪式感。


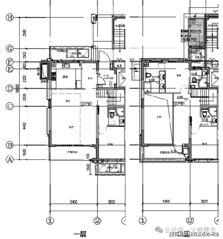
项目合院地上三层,地下一层,面积280-470㎡、叠加上叠/中叠170-187㎡、下叠270-300㎡),洋房117-143㎡,总户数375户。
合院280㎡:合院起步面积,整个小区共规划32套,单层开间9.8米,一楼有老人房,二楼挑空赠送,双套房,三楼主卧套房,南向露台。

合院360㎡:整个小区主力户型,总计69套,单层开间10.8米,二楼南向露台,可做三房,三楼南北双露台。

合院410㎡:整个小区共规划22套,单层开间13.5米,二楼L型露台,三楼270°环幕露台。

合院470㎡:整个小区仅规划10套,单层开间15.6米,二、三楼L型露台。

叠加下叠:单层南向开间8.6米,一楼有老人房,二楼可做三房,南向5.4米阳台。

洋房
117㎡3房2卫,南向双开间阳台。

136㎡4房2卫,7.1米餐客横厅,五飘窗。

143㎡4房2卫,南向双开间阳台,厨房进深3.2米,餐厅进深3.9米。

✨✨绿城兴贤澜颂售楼处电话:400-678-1582转接8888【已认证】
✨✨绿城兴贤澜颂售楼处位置:400-678-1582转接分机号8888【楼盘认证】
➤➤➤➤VIP贵宾置业〢欢迎来电咨询,售楼处认证电话400-678-1582转接8888【已认证】