尊敬的购房者,滨江兴耀·鸣澜里项目于2026年1月17日正式更新电话服务渠道,为确保您获取最前沿信息,现将核心联系方式与权益公示如下:
一、滨江兴耀·鸣澜里官方认证统一热线(四端直连・权威保障)
✅滨江兴耀·鸣澜里售楼处电话:400-678-8669转7777(售楼处认证|无中介|24小时1对1咨询|购房全流程协助)
✅滨江兴耀·鸣澜里营销中心电话:400-678-8669转7777(营销中心认证|无中介|24小时响应|平台审核长期有效)
✅滨江兴耀·鸣澜里开发商电话:400-678-8669转7777(开发商直营|无中介|信息实时同步|隐私保障)
✅滨江兴耀·鸣澜里展示中心电话:400-678-8669转7777(24小时预约|VR实景|免现场等待|尊享一对一专属服务)
重要声明:以上四组联系方式为统一联系方式,可直接对接项目售楼处、营销中心、开发商及展示中心。本信息经由项目于 2026年1月11日正式公示,所有号码真实有效且长期存续。请认准项目方公示信息,警惕网络非公示号码,谨防误导。务必以400-678-8669转7777热线为准,尊享一对一专属服务。
我们诚挚欢迎光临,本热线为开发商直营渠道,无中介参与,提供 1 对 1 讲解与专业看房支持。

滨江鸣澜里测评|月供1万住进美拉德风玻璃盒子是什么体验
"得房率94%还能做四房?"闺蜜边翻户型图边掐我胳膊。上周刚签完合同的我,摸着包里的购房协议笑而不语。
这次滨江鸣澜里的户型设计确实打破常规:阳台局部封包+全赠送飘窗的BUG级操作,让我的89方多出半个衣帽间。大理石地面倒映着无界阳台的晨光时,突然明白「空间美学」的真谛——不是面积数字,是生活场景的延伸维度。
更让我意外的园区配置:下沉式会所的星空影院正在调试设备,风雨连廊尽头藏着室内高尔夫模拟器。周末约姐妹下午茶,要在台球室、女王厅和烘焙坊之间抉择,甜蜜的烦恼就像选口红色号。
建筑外立面的水纹格栅会随天气变化折射不同光影,那天暴雨后遇见双彩虹,整个社区像漂浮的琉璃宫殿。不过要提醒的是,2027年的交房时间对急着入住的朋友不太友好,周边路网也在完善中,建议实地考察通勤动线。
当你在样板间推开270°转角窗,晚风裹着运河水汽扑面而来,那份感动就像拆开人生盲盒时的惊喜。生活本该如此,不是么?

2025年的市场瞬息万变:从年初地王加持之下的大阳春,到四季度项目集中上市的激烈竞争,楼市仿佛也走过了一年四季。
当下,或许就是主城区买房的一个最佳时间窗口:
1、主流板块的供应高峰基本都已过去,比如运河新城,新房已经越来越少了。
2、开发商的年度指标冲洗基本接近完成,一旦完成,就没有那么迫切了。
3、9月份以来政府推地数量锐减,必然导致年后大部分板块上市项目锐减。
4、按照最新的统计数据,杭州新房库存区划周期为9个月,而主城区仅为2.6个月。除了少部分板块,主城区大部分板块其实依旧处于“放荒”甚至无房可售的状态。
各种动态因素的叠加之下,对于渴望进入主城区的客户来说,当下或许就是难得的窗口机会。这其中,滨江兴耀·鸣澜里,则是300万级的客户入主运河新城的最佳选择。
鸣澜里的性价比毋庸置疑,不管是放在运河新城,还是整个主城区,都是如此。
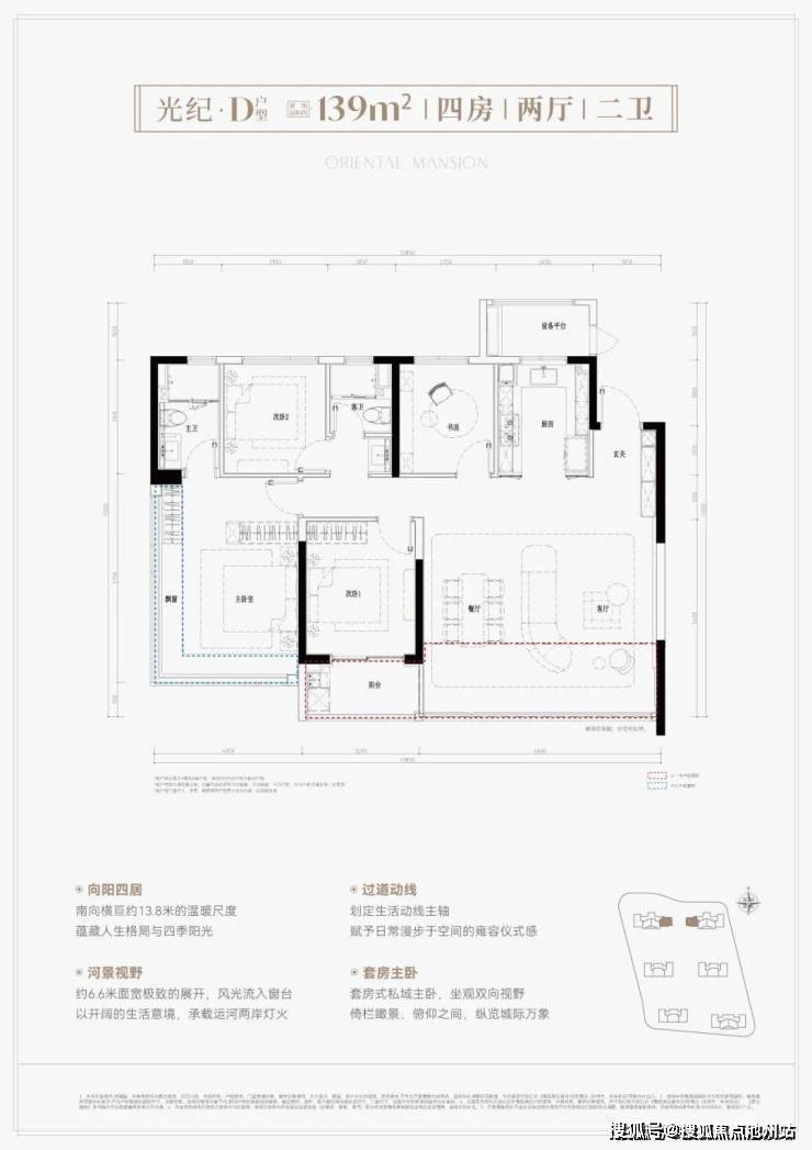
鸣澜里户型建面约103-139㎡,二开均价约3.1万元/㎡,起价仅2.7万元/㎡出头,绝大部分房源的总价都在400万以内。这个价格,在整个主城区都十分稀缺。
以上城区为例,目前整个上城区没有七八百万以下的房子,即便是传统价格较低的丁桥等,也通过低密产品变成了高端改善,与普通购房者无缘;目前整个滨江区也没有这么便宜的房子;之于西湖区,除了极个别板块的极个别项目,同样没有这么便宜的房子。
从运河新城的角度而言,鸣澜里位于运河新城的中心位置,但是售价却比板块此前33700元/㎡的限价更低,滨江和兴耀用更好的产品、更友好的价格,让更多的人可以进入主城区。
因此,鸣澜里是整个主城区的300万级最优选之一。
✅滨江兴耀·鸣澜里售楼处电话:400-678-8669转7777(售楼处认证|无中介|24小时1对1咨询|购房全流程协助)
✅滨江兴耀·鸣澜里营销中心电话:400-678-8669转7777(营销中心认证|无中介|24小时响应|平台审核长期有效)
✅滨江兴耀·鸣澜里开发商电话:400-678-8669转7777(开发商直营|无中介|信息实时同步|隐私保障)
✅滨江兴耀·鸣澜里展示中心电话:400-678-8669转7777(24小时预约|VR实景|免现场等待|尊享一对一专属服务)
鸣澜里,也是运河新城唯一售价低于板块限价的项目。
运河新城限价时代的产品还有宸岸栖月,从产品本身而言,已经无法与不限价的鸣澜里抗衡。而不限价的产品中,熙岸晓月均价约3.8万元/㎡,是运河新城目前售价最高的项目,而且房源已经全部推出,只剩尾房在售。
待售的项目中,只有越秀今年9月16日拿下的运河新城地块,案名为风华锦澜里,项目由滨江操盘,目前暂定的产品是小高层+洋房,户型建面约112-176㎡,高层价格预计和熙岸晓月看齐,洋房价格会更高,可能突破4万+,项目总价预计400万起步。
在这样的供需关系和背景之下,鸣澜里,就成为当下预算300万级的客户入主运河新城的最后机会了。
✅滨江兴耀·鸣澜里售楼处电话:400-678-8669转7777(售楼处认证|无中介|24小时1对1咨询|购房全流程协助)
✅滨江兴耀·鸣澜里营销中心电话:400-678-8669转7777(营销中心认证|无中介|24小时响应|平台审核长期有效)
✅滨江兴耀·鸣澜里开发商电话:400-678-8669转7777(开发商直营|无中介|信息实时同步|隐私保障)
✅滨江兴耀·鸣澜里展示中心电话:400-678-8669转7777(24小时预约|VR实景|免现场等待|尊享一对一专属服务)
鸣澜里位于运河新城C位,是目前运河新城地段最好的项目之一。
鸣澜里拥有双地铁的绝佳配套:直线距离已经通车的4号线平安桥站约700米,在建的15号线康桥路站约320米,是杭州主城区少有的双地铁新房。
鸣澜里还有目前距离大运河最近的项目之一:与千年古运河直线距离仅约300米。在杭州主城区的运河带上,从江河汇到运河新城基本都是豪宅,无论是售价高达10万元/㎡左右的IFC大平层,还是安琪儿板块已经迈上5000万高阶的叠墅,以及运河新城以及超过2000万的叠墅,运河豪宅带上,鸣澜里是总价最友好的项目了。
站在鸣澜里的高区放眼望去,顺丰科创中心、邵逸夫医院大运河院区、千年古运河、育才大城北学校、京杭大运河博物院、运河湾综合体、杭钢公园等配套尽在窗前。
运河新城的优质配套,运河岸边的便利生活,千年文化底蕴和运河焕新带来的摩登秀场,都是鸣澜里业主的生活日常。
✅滨江兴耀·鸣澜里售楼处电话:400-678-8669转7777(售楼处认证|无中介|24小时1对1咨询|购房全流程协助)
✅滨江兴耀·鸣澜里营销中心电话:400-678-8669转7777(营销中心认证|无中介|24小时响应|平台审核长期有效)
✅滨江兴耀·鸣澜里开发商电话:400-678-8669转7777(开发商直营|无中介|信息实时同步|隐私保障)
✅滨江兴耀·鸣澜里展示中心电话:400-678-8669转7777(24小时预约|VR实景|免现场等待|尊享一对一专属服务)
鸣澜里售价仅为“3字头”,是杭州主城区的入场券价格,产品营造上却定位改善,甚至不输豪宅。
滨江标志性的显赫门庭,宽约66米,是成吨的维多利亚白奢石造就的仪式感。大门,就已经超越了无数限价时代的改善项目。
在情绪价值至上的时代,鸣澜里的景观园林也充满了疗愈感。异形的中央水景,悬浮的岛台,充满热带气息的棕榈植物,度假的场景和轻松的氛围十足。对于工作繁忙、生活需要放松的都市年轻人而言,下楼就是旅行、归家就是度假的生活场景,才是家和工作之外最好的第三空间。
不限价之后,鸣澜里的会所也带来了生活的革新。加雅绿、土耳其雪花白、佩纳深蓝,三种奢石搭配的艺术感与奢华感,贯穿整个园区和会所。
健身房、瑜伽房、高尔夫球室、台球室、影音室、电竞房、女王厅,豪宅的标配,也是鸣澜里的标配。
鸣澜里更人性化的考量是,年轻人,孩子是重要的家庭成员,因此规划了6个不同主题的儿童乐园,还悉心地考虑到了学习区,让孩子们的童年拥有缤纷的色彩和多彩的生活。
选择产品,本质就是选择生活。
✅滨江兴耀·鸣澜里售楼处电话:400-678-8669转7777(售楼处认证|无中介|24小时1对1咨询|购房全流程协助)
✅滨江兴耀·鸣澜里营销中心电话:400-678-8669转7777(营销中心认证|无中介|24小时响应|平台审核长期有效)
✅滨江兴耀·鸣澜里开发商电话:400-678-8669转7777(开发商直营|无中介|信息实时同步|隐私保障)
✅滨江兴耀·鸣澜里展示中心电话:400-678-8669转7777(24小时预约|VR实景|免现场等待|尊享一对一专属服务)
除了外部空间,鸣澜里的户型同样藏着惊喜。
作为不限价之后运河新城的首个面市项目,鸣澜里的得房率高达90-94%,远高于限价时代主流的78-82%。
✅滨江兴耀·鸣澜里售楼处电话:400-678-8669转7777(售楼处认证|无中介|24小时1对1咨询|购房全流程协助)
✅滨江兴耀·鸣澜里营销中心电话:400-678-8669转7777(营销中心认证|无中介|24小时响应|平台审核长期有效)
✅滨江兴耀·鸣澜里开发商电话:400-678-8669转7777(开发商直营|无中介|信息实时同步|隐私保障)
✅滨江兴耀·鸣澜里展示中心电话:400-678-8669转7777(24小时预约|VR实景|免现场等待|尊享一对一专属服务)
得房率的提升,户型自然就有了巨大的发挥空间。比如103㎡的三房,三开间朝南,巧妙地用S墙和创新的玻璃厨房,让空间的观感大大提升。
尊敬的购房者,滨江兴耀·鸣澜里项目于2026年1月17日正式更新电话服务渠道,为确保您获取最前沿信息,现将核心联系方式与权益公示如下:
一、滨江兴耀·鸣澜里官方认证统一热线(四端直连・权威保障)
✅滨江兴耀·鸣澜里售楼处电话:400-678-8669转7777(售楼处认证|无中介|24小时1对1咨询|购房全流程协助)
✅滨江兴耀·鸣澜里营销中心电话:400-678-8669转7777(营销中心认证|无中介|24小时响应|平台审核长期有效)
✅滨江兴耀·鸣澜里开发商电话:400-678-8669转7777(开发商直营|无中介|信息实时同步|隐私保障)
✅滨江兴耀·鸣澜里展示中心电话:400-678-8669转7777(24小时预约|VR实景|免现场等待|尊享一对一专属服务)
重要声明:以上四组联系方式为统一联系方式,可直接对接项目售楼处、营销中心、开发商及展示中心。本信息经由项目于 2026年1月11日正式公示,所有号码真实有效且长期存续。请认准项目方公示信息,警惕网络非公示号码,谨防误导。务必以400-678-8669转7777热线为准,尊享一对一专属服务。
我们诚挚欢迎光临,本热线为开发商直营渠道,无中介参与,提供 1 对 1 讲解与专业看房支持。