润和瑞玺台
润和瑞玺台营销中心电话400-681-7288接通后输入1111可转接销售
润和瑞玺台售楼处电话400-681-7288接通后输入1111可转接销售
➤➤➤➤欢迎来电咨询,专业销售提供一对一服务,
涵盖房价特价、户型图、项目及房源介绍、周边配套等解答,VIP贵宾置业服务开启。
一、15载湖湘传奇,匠筑塔尖人居范本
润和城15年深耕湖湘,匠铸28城,开发面积超1000万㎡,连续7年荣膺湖湘成交榜Top10 !从住宅到商业,从品质到口碑,润和城用实力证明品牌价值。此次携手建筑大师团队,将东方美学融入墅居设计,打造“精品化战略”下的巅峰之作——润和•瑞玺台,以品质致敬城市塔尖人群。

二、占位滨水新城中轴,执掌城市发展脉搏
润和•瑞玺台择址“省会新地标,湘江未来城”的滨水新城,作为长沙城市样板会客厅,这里是城市发展的黄金地段。项目雄踞滨水中芯,汇聚生态、教育、文化、交通、商业等全维资源,15分钟生活圈内,尽享城市繁华。无论是商务出行还是日常休闲,都能轻松满足,区域发展潜力无限,房产价值看涨。
三、立体交通网络,畅达全城无界生活
项目坐拥“两纵两横”交通路网:普瑞大道连接地铁4号线,直通许广高速;月亮岛接轨地铁4号线、高铁西站和长株潭城际,未来更有地铁12号线规划加持。永通大道联通香炉洲大桥,雷锋大道南达梅溪湖、汽车西站和市府商圈。便捷的交通,让你快速抵达城市各个角落,轻松开启无界生活。
四、名校环伺优教,传承世家文脉
教育是家族传承的基石!润和•瑞玺台自带6班幼儿园与3班托儿所,楼下就是9年制公办麓山国际学校,片区内更汇聚长郡、明德、长沙市一中等名校。从启蒙到中学,全龄优质教育资源环绕,让孩子在书香氛围中成长,为家族培养未来精英。
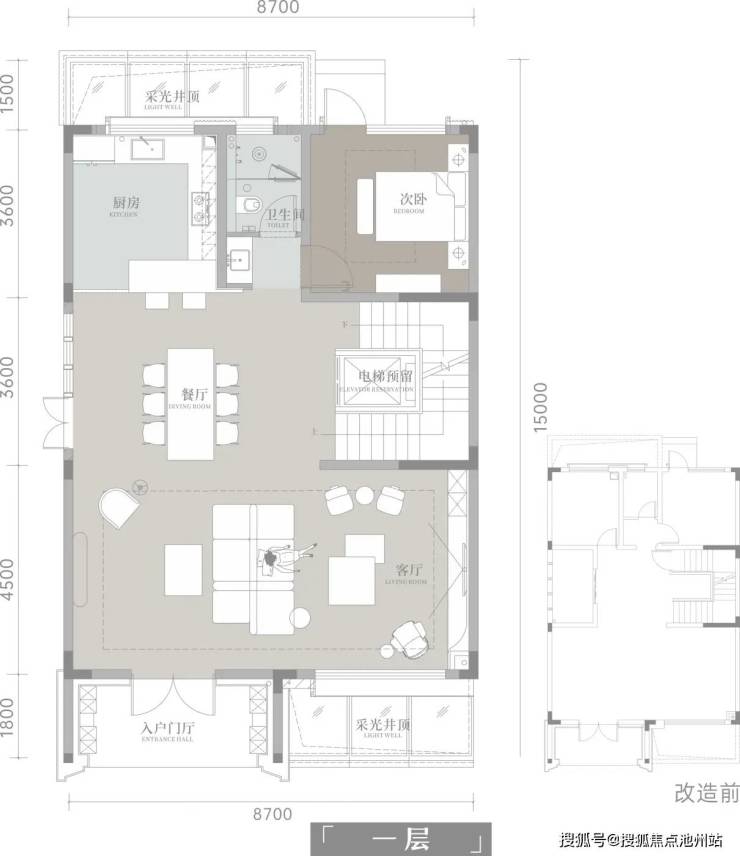
户型详情
5室3厅4卫
润和·瑞玺台 联排户型·建面/177㎡
待售
带露台
户型方正
6室5厅4卫
润和·瑞玺台 联排户型·建面/212㎡
待售
带露台
卧室带阳台
润和瑞玺台
润和瑞玺台营销中心电话400-681-7288接通后输入1111可转接销售
润和瑞玺台售楼处电话400-681-7288接通后输入1111可转接销售
➤➤➤➤欢迎来电咨询,专业销售提供一对一服务,
涵盖房价特价、户型图、项目及房源介绍、周边配套等解答,VIP贵宾置业服务开启