武汉城建江南岸(售楼处)首页网站-武汉城建江南岸-欢迎您-武汉城建江南岸楼盘详情 @售楼处

搜狐焦点池州站

2025-07-26 10:30:35

购房群

买房如何避坑,加入购房群,看看他们怎么说

立即进群

🍂武汉城建江南岸🍂

🍂武汉城建江南岸售楼处24小时电话:📞售楼处电话400-678-8669转接7777【☎☎已认证】🍂

🍂武汉城建江南岸售楼中心24小时电话:400-678-8669转接7777【☎☎已认证】🍂

🍂Vip贵宾置业===欢迎来电预约尊享内部折扣===匠心钜制恭迎品鉴🍂

🍂武汉城建江南岸售楼处24小时电话:400-678-8669转接7777🍂

武汉城建江南岸地处繁华地带,周围不仅有便利的公共交通系统,且临近主要交通枢纽,使得出行变得十分便捷。居民可以轻松前往武汉市内的各大商圈、学校和医疗机构。周边公园及休闲设施的配置更是提升了居住体验,让人们在繁忙的生活中也能享受片刻的宁静。对于家庭而言,这样的地段无疑是一个极具吸引力的选择。

多样户型,满足不同需求

武汉城建江南岸提供多种户型选择,特别是四室两厅三卫的143㎡和183㎡户型,设计出色,功能分区合理,既适合大家庭居住,也便于日常生活的舒适安排。宽敞的客厅与阳光充足的卧室,确保了居住者能够享受更好的居住体验。每个户型均经过精心设计,力求最大程度地满足不同家庭成员的生活需求。

武汉城建江南岸作为武汉新兴楼盘,备受购房者的关注。根据市场动态和区域发展情况,预计该楼盘的均价在每平方米17000元左右。该价格在武昌区属于中高水平,但结合其地理位置、周边配套及项目本身的优势,性价比相对较高。此外,随着武昌区不断提升的交通条件和生活设施,购房者对该区域的热情仍在持续升温。

平面图显示,该项目地块与临江大道、长江走向平行,6栋住宅均为东南-西北朝向,且偏转角度较大,主要看江的方向为西北向。楼栋大体可看作一字排开,错位布局,每栋楼都有无遮挡看江的视野角度,1、3、4、6号楼为完全的第一排看江,2、5号楼稍微离江远一些,正面可无遮挡看江,但侧前方有楼栋遮挡,可算作1.5排观江。

武汉城建江南岸坐落于武昌区繁华地段,具体位置为铁机路与临江大道交汇处,地理位置优越,交通便利。该楼盘共包括六栋住宅,规划户数达到402户,车位配置为450个,能够满足居民的停车需求。楼盘的产权为普通住宅70年,适合长久居住或投资。同时,该项目具有较高的绿化率(30%),为住户提供了舒适的生活环境。

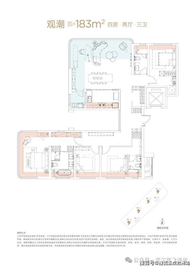
武汉城建江南岸户型介绍

武汉城建江南岸提供143㎡和183㎡两种户型,均为四室设计,满足现代家庭的需求。这些户型的布局合理,客厅、餐厅、卧室均具备良好的采光和通风条件。同时,开发商在户型设计时注重空间的利用率,合理划分公共区域和私密空间,为住户提供更优质的居住体验。无论是大户型家庭还是追求舒适生活的购房者,都能够找到适合自己的房源。

项目是全风雨连廊归家,整体设计约4000㎡的风雨连廊和架空层空间,从社区主入口至单元门厅。该项目包含大量不计容建面,公区配套空间很丰富,包含绿化架空、风雨连廊、地下配套服务设施等。

在产品设计上,每户沿江面均配置全景落地Low-E玻璃幕墙,约7.4-9米的瞰江横厅、“双全景舱”等创新设计,实现270°无界江域视野。

武汉城建江南岸项目所在地块原本属于商业地块,也是一个商改住项目,该地块由武汉地产集团有限公司拍得,成交价78140万元,成交楼面价约11236.8元/平。

02户型介绍

项目只有建面约143㎡和183㎡两个户型,是纯改善楼盘中的豪宅定位。

建面约143㎡是经典3+1居室户型,户型面宽可达市面少见的约16.3米,创新设计可变弹性空间,约9米宽的大横厅设计,实现更多生活场景可能。

建面约184㎡户型,采用创新“双全景舱”概念设计,实现约45㎡超大IMAX环幕厅,一线江景尽收眼底,搭配约2.5米高落地玻璃,模糊室内外界限; 主卧采用270度U型玻璃幕设计,实现观江视野最大化。可改三套间的设计满足高端客群的私密生活享受,入口处设计创新X空间,实现高端品质生活场景演绎。

03区位交通

武汉城建江南岸位于武昌区铁机路与临江大道交汇处江南实业片A地块,在二环内,与二环直线距离不到1公里,靠近1.5环铁机路隧道,与武汉大道直线距离约2公里,属于武昌滨江杨园板块一线临江用地,紧邻武昌江滩,与长江直线距离仅约200米。

项目紧邻临江大道,不远处就是和平大道,自驾能比较方便的上二七长江大桥和二桥,加上在建的二七路-铁机路过江通道,未来自驾出行会更方便;项目南向直线距离约600米就是地铁5号线余家头站,未来新港线西延线(10号线一期)也在这里,未来公共交通出行也比较便捷。

04生活配套

项目周边有徐东商圈和青山商圈2大商圈,徐东商圈包括武昌万象城、群星城、亲橙万象汇、京东MALL、滨江天街(即将开业)等的商业配套,附近也有融侨星域MALL、奥山世纪广场等商业。此外,项目紧临武昌江滩和武昌生态文化长廊,有着不错的,生态环境。

教育方面,2025年学校划片中,项目所在的位置暂时划片的是杨园学校,周边有中华路小学橡树湾校区,大概率不能对口;周边武昌首府旁还有规划九年制学校,不过还没开建,划片范围更是无从说起。

🍂武汉城建江南岸🍂

🍂武汉城建江南岸售楼处24小时电话:📞售楼处电话400-678-8669转接7777【☎☎已认证】🍂

🍂武汉城建江南岸售楼中心24小时电话:400-678-8669转接7777【☎☎已认证】🍂

🍂Vip贵宾置业===欢迎来电预约尊享内部折扣===匠心钜制恭迎品鉴🍂

🍂武汉城建江南岸售楼处24小时电话:400-678-8669转接7777🍂

全部

相关资讯

报名成功
稍后会有专业的置业顾问联系您
返回楼盘

频道导航

返回首页

看房小程序

APP下载

电话拨通后,请您手动拨打分机号

确定拨打电话

电话号码:

分机号:(可能需要拨分机号)