万科万汇天地朗庭位于荔湾芳村,万汇天地就建造在白鹅潭板块之中,是整个主城区中,体量唯一达到1平方公里的大社区。 朗庭不仅坐拥大盘全维配套,更有立体生态的加持,迈入了一个全新的生活方式 。
交通配套
未来万汇天地业主可以在下班后,乘坐地铁1号线或25号线回家,万汇天地规划打造独有的立体自然系统,以双轨交汇的花地湾站为核心,构建花地湾 TOD 超链中心、天空花麓、水廊花埭、混合街区四大城市复合空间,连接生活。
教育配套
万汇天地朗庭项目周边3所百年重点中学、5所省/市重点小学。其中百年省实荔湾学校花地湾校区已开学。升级优教圈,给孩子更好未来。(信息仅供参考,开发商不作入读承诺)
商业医疗配套
朗庭楼下将打造约6万方漫步式主题街区。集潮流购物、品牌餐饮、网红打卡、休闲娱乐、邻里社交等多元场域为一体。生活所需95%配套(规划中),未来下楼有机会实现一站畅享。
三公里内,优享6所甲级医院,更有广州市荔湾区人民医院新院区(二级甲等),预计今年底正式投入使用,也能给业主提供健康体检、医疗技术等专属服务,全天候为家人健康护航。

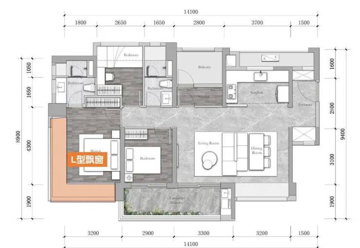
万科万汇天地朗庭在售79-128㎡两到四房均价49000/㎡
建面约82平2+1房总价400万左右
建面约90平2+1房朝向东南,四开间南向,主卧对流总价420万左右
建面约103平3+1房总价480万左右
建面约128平四房总价620万左右
免责声明:部分信息来源于网络,如果侵权,请联系400-823-9396及时删除
✅本项目暂不接受临时到访,过来参观样板房请记得提前来电预约!
①本次交易对价总额154.78亿元,其中,中海企业发展以73.41亿元收购新东安公司50.5%股权及相关债权、以8.12亿元收购新百安公司30.5%股权,参与该项目投资开发; ②从中海拿地举动来看,其在土地市场的扩张势头,可谓相当凶猛。
财联社9月5日讯(记者 王海春)央企中海地产联手招商蛇口、中国旅游集团等,在上海核心区域拿下了一个巨无霸项目。
中国建筑(601668.SH)9月5日披露,下属子公司中国海外发展(00688.HK)旗下中海企业发展集团有限公司近日与上海虹润置业、杭州旅投房地产公司,联合竞得上海新东安企业发展有限公司90%股权及相关债权、上海新百安经济发展有限公司90%股权。
公开资料显示,上海虹润由招商蛇口全资拥有,杭州旅投由中国旅游集团间接全资拥有。
本次交易对价总额约154.78亿元,其中,中海企业发展以73.41亿元收购新东安公司50.5%股权及相关债权、以8.12亿元收购新百安公司30.5%股权,参与该项目投资开发。
中指院上海数据总经理张文静向记者表示,中海地产本次获得的项目,地理位置优越、配套设施完善、交通优势明显,该项目未来拟规划建设为集住宅、商业、办公一体的高品质城市综合功能区。
据中国建筑公布的信息,标的公司主要持有位于上海核心城区徐汇区东安项目的两幅地块。该项目位于上海市徐汇区,由徐汇区斜土社区C030301单元125-31、127b-24地块组成,总占地面积约13.41万平方米,总计容建筑面积达53.41万平方米,规划用途包括商品住宅、商业、办公、科研设计等。
在此之前,另一家央企华润置地,也在上海获得了一个巨无霸项目。今年8月初,华润置地联合上海南房集团,通过股权转让方式以244.69亿元的底价,拿下上海市浦东后滩与黄浦区余庆里组合地块资产包。收购完成后,华润置地及上海南房将分别持有目标公司90%及10%的股权及债权。
“中海本次在上海获取的地块,地处徐汇内环稀缺地段,邻近衡复历史风貌区和徐汇滨江等优质资源区,区位优势显著,具备较高的开发价值和市场潜力。”张文静称。
业内人士认为,中海本次在上海投入巨额资金,与其实施的战略布局有关。
张文静指出,此次联合竞购符合中海在上海的战略布局需求,也与国家及上海市推动城市更新的政策导向高度契合。通过整合多方优势资源,该片区的旧改开发将获得更加充分的资金与运营支持。
其进一步表示,对中海而言,以股权收购方式获取优质地块,不仅符合该公司核心业务战略,更有助于进一步提升公司在上海市场的占有率、影响力和品牌竞争力,为中海长期稳健发展提供有力支撑。
“上海是中国一线城市,也是公司展开战略布局的重点区域。”对于本次在上海投资,中海地产方面表示,东安项目的开发将为公司创造收益,有利于长期业务发展。
“从中海的举动来看,近几年在一线及热点城市的投资动作非常明显。其瞄准北京、上海、深圳这几个一线城市,拿了多宗地价在百亿级别的地块,这些项目开发出来的,也都是豪宅。”亿翰智库分析师王玲表示。
事实上,自去年以来,中海地产在一线城市大手笔拿地,便成为市场关注的热点。从中海地产拿地举动来看,其在土地市场的扩张势头,可谓相当凶猛。
2024年11月29日,中海以153亿元的价格斩获北京朝阳区“酒仙桥+小红门+十八里店”组团地块,规划建筑规模约39.4万平米,该地块刷新了北京土地出让历史纪录。
在深圳,中海联合华润于2024年12月2日以185.12亿元总价竞得南山区地块,刷新深圳近十年涉宅地块总价纪录,该地块也是2024全国总价地王。去年12月12日,中海还以110.54亿的底价,竞得北京丰台区万泉寺村地块。
而在今年3月,中海又以80.8亿的价格,竞得杭州望江新城核心区海潮TOD地块。
对于此前已在一线城市摘得多个地王项目的中海地产,为何仍然在高能级城市斥巨资“下注”?就此,分析师认为,中海地产此前在一二线城市所投项目,是其销售业绩的重要“粮仓”。
据中指院数据,2025年1-8月,中海地产以1503亿元的销售额,位居全国房企销售业绩排行榜第3位,排在保利发展、绿城中国之后;华润置地以1425亿元的销售额,排在第4位。
克而瑞分析师介绍,今年上半年,中海地产及附属公司在香港及北上广深五个城市实现合约售额556.4亿元,在北京实现合约销售额304.5亿元。从销售回款情况来看,该公司上半年销售回款超过50亿元的城市,为北上广深圳四个一线城市,其中北京和上海回款金额分别超过100亿元。
“正是因为在一线城市的项目取得不错的销售业绩,其才敢于在这些城市投入巨额资金,开发体量庞大的项目。”一家房产机构分析师表示。
按机构监测信息,中海地产成为土地市场上,目前拿地金额最高的企业。
中指院数据显示,2025年1-8月,中海地产以542亿元的权益拿地金额,位居全国房企拿地排行榜第一名;绿城中国、保利发展分别以527亿元、440亿元拿地金额,位居第二及第三位;华润置地则以319亿元的权益拿地金额,排在拿地榜单第7位。
不过,分析师指出,中海地产保持销售业绩相对稳定之际,其上半年部分核心业绩指标,也出现了下滑。
据克而瑞数据,2025年上半年,中海地产营业收入为832亿元,同比下降4%;期内,该公司毛利率同比下降4.7个百分点至17.4%;净利率同比下降1.8个百分点至11.45%。