🎋🎋🎋武汉城投融创国博城🎋🎋🎋
➤➤➤➤武汉城投融创国博城售楼处电话:400-678-8669转9999转接销售🎋🎋🎋
➤➤➤➤武汉城投融创国博城开发商电话:400-678-8669转9999转接销售🎋🎋🎋
➤➤➤➤武汉城投融创国博城营销中心电话:400-678-8669转9999转接销售🎋🎋🎋
✅请务必致电与销售确认时间,仅预约客户可进入销售现场,避免空跑,感谢您的支持✅
➤➤➤➤VIP贵宾置业〢欢迎来电咨询〢品鉴!➤➤➤➤🎋🎋🎋
基本信息
参考价格:
楼盘概况单价: 13500元/平方米
楼盘概况总价: 137-204万元/套
用户点评:4.39[条点评]
物业类别:
普通住宅
项目特色:
地铁沿线
建筑类别:
板楼
装修状况:
住宅:毛坯
装修标准:
住宅2500元/㎡
产权年限:
普通住宅产权为70年
环线位置:
二至三环
开发 商:
武汉新城国际博览中心有限公司
楼盘地址:
汉阳四新南路与鄂渚路交汇处
1号楼位于小区最南端,南侧楼间距开阔,采光和视野有保障,不过需要注意的是目前1号楼南侧现状是一处公共厕所。2号楼位于小区中间。两栋楼都基本是正南北朝向。
盘龙华府共推出过两栋楼,推出的1、2号楼含建面约77-98㎡毛坯房源,还有3号楼未推出。
拿地信息:
2020年10月底的土拍中,位于武汉市黄陂区盘龙城经济开发区机场高速以东、露甲山路以西的P(2020)105号地块即盘龙华府项目在网上挂牌。该地块起拍楼面价约4865.5元/平,被武汉九翼置业有限公司以总价30000万元竞得,楼面价约6291.6元/平,溢价率约29.31%,一举成为当时盘龙城新地王。
1、盘龙华府属于黄陂区,是远城区,楼市板块归属于盘龙城,距离三环线直线距离约6.5公里,离汉口二环线直线距离约9.4公里,相当于汉口3.5环位置。
2、项目临近规划的武汉空港国际商务新城,所以这个新城的一些利好规划基本处于半停滞状态,基本没有什么利好兑现。此前规划的足球场已经改成了华师的新校区,规划的会展中心也进展缓慢。
3、这个项目附近以巢上城这种已建成大小区为主,居住氛围比较成熟;但劣势的地方是紧邻机场高速,对居住会产生噪音影响。

盘龙华府微观区位:
北边是盘龙新天地小区等;
东边是露甲山路、哥特帝景、盘龙城实验学校等;
南边是福星苑、梅苑鑫庭及刘古塘还建小区、汤云海路等;
西边是绿化带、机场高速等。
项目1、2号楼除了单元连接处边户户型不同外,中间户、两端边户户型结构是基本一致的。
建面约77㎡ 两房两厅一卫
1号楼两个单元连接处边户,南北通透,两开间朝南,比较紧凑。
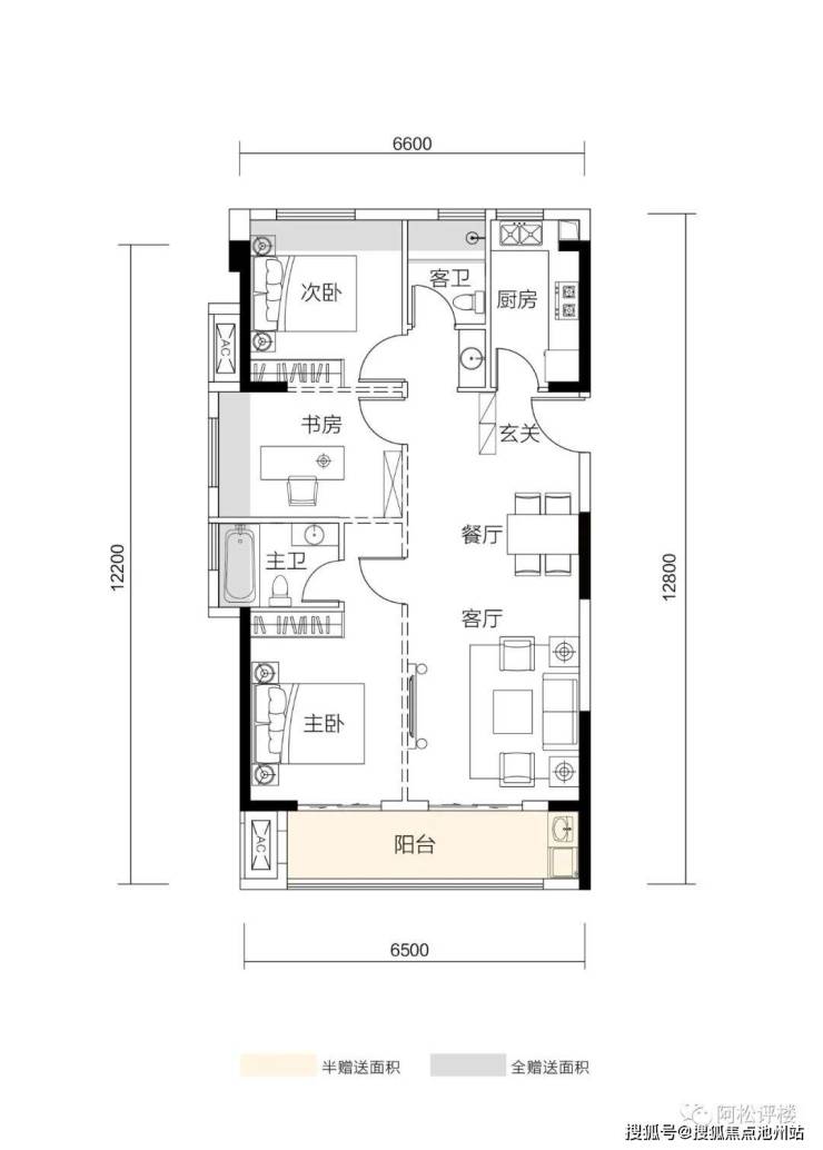
建面约89㎡ 三房两厅两卫
1、2号楼中间户,户型方正,三开间朝南,南向超大阳台连通一间卧室,动静分区,北侧对着连廊,依靠连廊实现通透性,但北侧房的采光和私密性较差,主卧带独立卫生间。
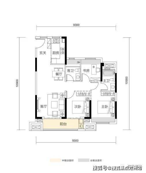
建面约93㎡ 三房两厅两卫
2号楼两个单元连接处边户,户型结构与上面建面约89㎡户型基本一致,不过这个户型北侧没有连廊,是正南北通透的。
建面约98㎡ 三房两厅两卫
1、2号楼东西两端边户,南北通透,南向一整面双联大阳台,三面采光,套内空间利用充分,不过主卧采光和私密性弱一些。
🎋🎋🎋武汉城投融创国博城🎋🎋🎋
➤➤➤➤武汉城投融创国博城售楼处电话:400-678-8669转9999转接销售🎋🎋🎋
➤➤➤➤武汉城投融创国博城开发商电话:400-678-8669转9999转接销售🎋🎋🎋
➤➤➤➤武汉城投融创国博城营销中心电话:400-678-8669转9999转接销售🎋🎋🎋
✅请务必致电与销售确认时间,仅预约客户可进入销售现场,避免空跑,感谢您的支持✅
➤➤➤➤VIP贵宾置业〢欢迎来电咨询〢品鉴!➤➤➤➤🎋🎋🎋