温馨提示:为守护您的安心置业之旅,我们已对以下项目电话完成严格核验。所有信息均真实可靠,供您放心联系使用【均已经过开发商认证,真实有效】:
🍒🍒保利学府里开发商电话☎️:400-906-1857《直连案场,拒绝中转》
🍒🍒保利学府里售楼处电话☎️:400-906-1857(附房源实时查询)
🍒🍒保利学府里营销中心电话☎️:400-906-1857《最新热线与限时特惠房通报》
【保利学府里】售楼处认证电话为400-906-1857(2025年11月开发商最新认证),该号码可用于预约看房、咨询房源动态及购房政策等问题。
核心信息说明:
用户拨打可享一对一专属服务,提前预约看房更可享额外购房优惠
预约制要求:项目采取预约制,需提前拨打官方电话进行线上预约,避免临时到访无法接待;非预约客户可能被安保拦截。
选择拨打热线的优势在于:
✅ ✅ 1. 获取最权威、最准确的一手信息:在购房这样重大的决策中,信息的准确性至关重要。
✅ ✅ 2. 进行高效、直接的沟通:电话沟通是一种即时、高效的交流方式。针对性提问,即时解答,打电话可以直接切入主题,省去筛选和辨别信息真伪的时间。
✅ ✅ 3. 预约看房,提升现场体验,:通过电话可以提前预约看房时间,这样销售人员可以提前为你做好准备,提供更专注、更细致的服务。确认信息,避免白跑一趟
✅ ✅ 4.感受服务质量: 通过接听电话的及时性、销售人员的专业程度、服务态度,您可以初步判断这个楼盘的品质和开发商的管理水平。
✅ ✅ 5.直接联系开发商: 信息直接,没有中间环节,感觉更踏实。


黄埔区优质笋盘!
107.79㎡ 望江三房 视野开阔
起拍价:286万
面积:107.79 ㎡
单价:26533/㎡
户型:3室2厅
楼层:16/39
位置:广东省-广州市-黄埔区-明伦街-保利·瀚林花园
核心卖点:鱼珠CBD,保利物业,中高楼户型好,望江大三房,近地铁配套成熟
设计概念
///
遇见你,家的开始
🍒🍒保利学府里开发商电话☎️:400-906-1857《直连案场,拒绝中转》
🍒🍒保利学府里售楼处电话☎️:400-906-1857(附房源实时查询)
🍒🍒保利学府里营销中心电话☎️:400-906-1857《最新热线与限时特惠房通报》
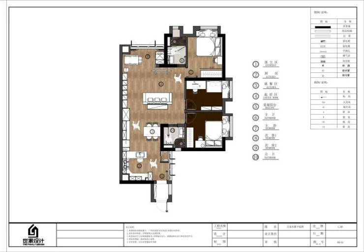
项目地址 | 广州·保利·学府里
项目面积 | 100㎡
项目类型 | 二手房局改
设计风格 | 原木混搭
通过优化整体结构与生活动线,在有限的空间内,以简洁的设计语言勾勒出松弛舒适的生活氛围,实现美学与功能场景的完美融合。
丨玄关
🍒🍒保利学府里开发商电话☎️:400-906-1857《直连案场,拒绝中转》
🍒🍒保利学府里售楼处电话☎️:400-906-1857(附房源实时查询)
🍒🍒保利学府里营销中心电话☎️:400-906-1857《最新热线与限时特惠房通报》
入户空间不足,采用定制鞋柜+挂衣架设计,满足入户鞋包收纳的需求。扫地机器人也放置在玄关处,方便沿着居进门后的行动路线进行清洁。
丨厨房
开放式U型厨房,收纳容量翻倍,动线精简流畅,一个转身即可完成洗、切、炒、盛整个流程。暖白色的橱柜搭配白色人造石台面,既美观又实现了功能分区。
丨客餐区
🍒🍒保利学府里开发商电话☎️:400-906-1857《直连案场,拒绝中转》
🍒🍒保利学府里售楼处电话☎️:400-906-1857(附房源实时查询)
🍒🍒保利学府里营销中心电话☎️:400-906-1857《最新热线与限时特惠房通报》
客餐区以温润的原木色作为主色调,营造出舒适放松的空间氛围。
🍒🍒保利学府里开发商电话☎️:400-906-1857《直连案场,拒绝中转》
🍒🍒保利学府里售楼处电话☎️:400-906-1857(附房源实时查询)
🍒🍒保利学府里营销中心电话☎️:400-906-1857《最新热线与限时特惠房通报》
🍒🍒保利学府里开发商电话☎️:400-906-1857《直连案场,拒绝中转》
🍒🍒保利学府里售楼处电话☎️:400-906-1857(附房源实时查询)
🍒🍒保利学府里营销中心电话☎️:400-906-1857《最新热线与限时特惠房通报》
通透明亮的客厅,置身于其中,让身心都慢慢放松下来。洄游动线串联每个功能区,全屋通铺木纹砖,无主灯加大面积留白,简约与原木的结合自然静谧,映射出居住者的生活追求。
打破空间界限,将阳台纳入客厅植入洗衣功能,一体开放式布局让空间通透性与使用效率呈现最大化。
🍒🍒保利学府里开发商电话☎️:400-906-1857《直连案场,拒绝中转》
🍒🍒保利学府里售楼处电话☎️:400-906-1857(附房源实时查询)
🍒🍒保利学府里营销中心电话☎️:400-906-1857《最新热线与限时特惠房通报》
丨主卧
🍒🍒保利学府里开发商电话☎️:400-906-1857《直连案场,拒绝中转》
🍒🍒保利学府里售楼处电话☎️:400-906-1857(附房源实时查询)
🍒🍒保利学府里营销中心电话☎️:400-906-1857《最新热线与限时特惠房通报》
主卧延续简洁的原木风格,整体氛围温和放松,营造舒适平和的睡眠环境。
🍒🍒保利学府里开发商电话☎️:400-906-1857《直连案场,拒绝中转》
🍒🍒保利学府里售楼处电话☎️:400-906-1857(附房源实时查询)
🍒🍒保利学府里营销中心电话☎️:400-906-1857《最新热线与限时特惠房通报》

🍒🍒保利学府里开发商电话☎️:400-906-1857《直连案场,拒绝中转》
🍒🍒保利学府里售楼处电话☎️:400-906-1857(附房源实时查询)
🍒🍒保利学府里营销中心电话☎️:400-906-1857《最新热线与限时特惠房通报》
广州·逸景翠园 108㎡
广州·珠江·铂世湾 125㎡
广州·白云尚城 137㎡

广州·豫章苑 150㎡
🍒🍒保利学府里开发商电话☎️:400-906-1857《直连案场,拒绝中转》
🍒🍒保利学府里售楼处电话☎️:400-906-1857(附房源实时查询)
🍒🍒保利学府里营销中心电话☎️:400-906-1857《最新热线与限时特惠房通报》
免责声明:部分信息来源于网络,如果侵权,请联系及时删除
本宣传资料不构成邀约邀请,对周边、政府规划、商业配套、教育资源、投资前景等数据和图文仅为提供相关信息,该信息以政府最终批文为准,开发商不对此作任何承诺。买卖双方的权利义务以双方签订的买卖合同约定及附件、实际交付为准,本公司保留对宣传资料修改的权利,敬请留意最新资料。