🎋🎋🎋武汉中海寰宇天下🎋🎋🎋
➤➤➤➤武汉中海寰宇天下售楼处电话:400-678-8669转9999转接销售🎋🎋🎋
➤➤➤➤武汉中海寰宇天下开发商电话:400-678-8669转9999转接销售🎋🎋🎋
➤➤➤➤武汉中海寰宇天下营销中心电话:400-678-8669转9999转接销售🎋🎋🎋
✅请务必致电与销售确认时间,仅预约客户可进入销售现场,避免空跑,感谢您的支持✅🎋🎋🎋
➤➤➤➤VIP贵宾置业〢欢迎来电咨询〢品鉴!➤➤➤➤🎋🎋🎋

整体概述
中海·寰宇天下楼盘位于武汉汉阳晴川大道与显正街交汇处,由武汉中海海盛房地产有限公司精心打造,项目正持续推售中,最新参考价格为25000元/平方米,通过对项目价格、项目户型、交通配套、教育配套、生活配套、小区规划等维度进行分析,中海·寰宇天下楼盘价值评分为9.2分。当前,中海·寰宇天下价格为25000.00元/平方米,较周边三公里在售普通住宅项目均价低11.1%,中海·寰宇天下项目价格具备一定优势。
【保十琴一体化】
超强区域:项目位于政府斥资3600亿重点打造的”保十琴一体化“十字门商务区内,集国际商务、顶级配套、高端居住于一体,定位为珠海未来新中心。
项目介绍
【中海品牌】
中海地产隶属中国建筑,1979年在香港成立,1992年在香港上市,有42年产品开发经验。中海进驻珠海14年,打造了12个精品项目,从中海银海湾、红树湾等引领珠海人居标杆的豪宅项目,到商业地标富华里,创新洋房产品中海十里观澜等。数据显示,中海项目的二手房普遍高周边小区20%,所以买房应当首选中海品牌。
➤➤➤➤武汉中海寰宇天下开发商电话:400-678-8669转9999转接销售🎋🎋🎋
➤➤➤➤武汉中海寰宇天下营销中心电话:400-678-8669转9999转接销售🎋🎋🎋
【项目简介】
项目位置:珠海 · 十字门商务区 · 珠海中心大厦旁
占地面积:约19.2万㎡
建筑面积:约45万㎡
住宅产权:70年
容积率:2.34
项目户型
平面图及户型图
稀缺产品:市场紧缺大户型产品,169㎡-218㎡,巨幕客厅设计,一线景观资源,山海景观尽揽,划定私域天地,超越市面LDK概念,首创LDKG客餐厨阳台一体化空间。
➤➤➤➤武汉中海寰宇天下开发商电话:400-678-8669转9999转接销售🎋🎋🎋
➤➤➤➤武汉中海寰宇天下营销中心电话:400-678-8669转9999转接销售🎋🎋🎋
218㎡ 户型图
➤➤➤➤武汉中海寰宇天下开发商电话:400-678-8669转9999转接销售🎋🎋🎋
➤➤➤➤武汉中海寰宇天下营销中心电话:400-678-8669转9999转接销售🎋🎋🎋
169㎡ 户型图
➤➤➤➤武汉中海寰宇天下开发商电话:400-678-8669转9999转接销售🎋🎋🎋
➤➤➤➤武汉中海寰宇天下营销中心电话:400-678-8669转9999转接销售🎋🎋🎋
【218㎡ 一线南向海景】
1、270°宽景巨幕客厅,山海景观尽揽,划定私域天地
2、近70%窗占比,全屋阳光洒进屋内,视野更开阔
3、LDKG一体设计,亲疏有度之间,缔造百变社交场
4、独立行李间&衣帽间,繁华转身处,别有一番风度
➤➤➤➤武汉中海寰宇天下开发商电话:400-678-8669转9999转接销售🎋🎋🎋
➤➤➤➤武汉中海寰宇天下营销中心电话:400-678-8669转9999转接销售🎋🎋🎋
【169㎡ 空中云邸】
1、独立入户玄关,一梯一户,尊享归家仪式感
2、南向约16.7M超大尺度窗景,以奢阔见不凡
3、全新LDKG一体化摩登设计,辉映人生格局
4、南向阔绰双套房,奢华居家风范,不彰自显
➤➤➤➤武汉中海寰宇天下开发商电话:400-678-8669转9999转接销售🎋🎋🎋
➤➤➤➤武汉中海寰宇天下营销中心电话:400-678-8669转9999转接销售🎋🎋🎋
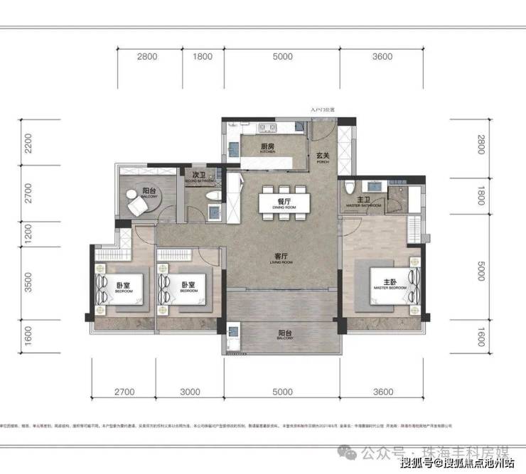
【105㎡可变3+1房】
➤➤➤➤武汉中海寰宇天下开发商电话:400-678-8669转9999转接销售🎋🎋🎋
➤➤➤➤武汉中海寰宇天下营销中心电话:400-678-8669转9999转接销售🎋🎋🎋
【127㎡客餐厨一体大空间设计】
➤➤➤➤武汉中海寰宇天下开发商电话:400-678-8669转9999转接销售🎋🎋🎋
➤➤➤➤武汉中海寰宇天下营销中心电话:400-678-8669转9999转接销售🎋🎋🎋
➤➤➤➤武汉中海寰宇天下开发商电话:400-678-8669转9999转接销售🎋🎋🎋
➤➤➤➤武汉中海寰宇天下营销中心电话:400-678-8669转9999转接销售🎋🎋🎋
🎋🎋🎋武汉中海寰宇天下🎋🎋🎋
➤➤➤➤武汉中海寰宇天下售楼处电话:400-678-8669转9999转接销售🎋🎋🎋
➤➤➤➤武汉中海寰宇天下开发商电话:400-678-8669转9999转接销售🎋🎋🎋
➤➤➤➤武汉中海寰宇天下营销中心电话:400-678-8669转9999转接销售🎋🎋🎋
✅请务必致电与销售确认时间,仅预约客户可进入销售现场,避免空跑,感谢您的支持✅🎋🎋🎋
➤➤➤➤VIP贵宾置业〢欢迎来电咨询〢品鉴!➤➤➤➤🎋🎋🎋