南天名苑售楼处Vip Tel:400-873-0112【售楼处☎☎已认证】⭐
南天名苑营销中心24小时电话:400-873-0112【营销中心☎☎已认证】⭐
南天名苑开发商24小时电话:400-873-0112【开发商☎☎已认证】⭐
⭐◆ 开发商营销中心诚挚邀请,为您安全和隐私保驾护航,一键预约,尊享内部折扣!匠心独运的精品项目,恭候您的品鉴与选择。
⭐ 过来参观样板房烦请记得提前来电预约!安排楼盘现场销售全程接待并讲解,给您更贴心的看房体验!
项目区位丨户型解析丨在售房源丨特价优惠丨学区配套丨交通动线丨样板间实拍丨小区环境丨交付标准丨周边商业丨
【南天名苑】
区域价值
项目位于洛溪岛的岛尖,南天名苑是香港霍英东集团在广州城市中轴打造大型低密度岛尖江景豪宅,集地段、交通、规划利好、环境、景观、配套于一体,汇聚城市稀缺资源与极具发展潜力的项目
要了解南天名苑,就不得不先说一下它背后的霍英东集团。
对于霍老先生这位爱国企业家,大家肯定不陌生。
霍氏家族在地产、港口、航运、高科技、基建、酒店、能源、教育、旅游等多个领域建树颇多,深刻影响国人的生活。
远的不说,单单是在广州番禺,就有一个广为人知的案例。
上世纪80年代末,由霍老组织捐建的洛溪大桥正式通车。
从此,广州核心区与番禺连为一体。
此后,无论洛溪岛还是整个番禺区,都开始转动“命运的齿轮”。

而南天名苑所在的位置也是霍老当时在广州的私人宅邸,在这里推进了白天鹅宾馆建设、洛溪大桥建设等工作,可以说这里既是原点、也是起点。
后来,为了不辜负这片土地的天赋,霍家第二、三代接手作为房地产项目开发。
正是因为霍家三代人的传承打造,才有了如今的南天名苑。
回过头看,这个项目之所以脱颖而出,有两个很重要的标签一直延续至今:
基因、创新。
所谓“基因”,便是霍英东集团为人们创造美好生活的初心、坚持长期主义的匠心,在项目身上被贯彻到底。
南天名苑作为占据江心一线江景的自然岛居社区,对原生态环境的保护相当用心。
【产品亮点】
●超十年开发,终成大城:超十年斥巨资打磨,社区设施全面落成,于江畔,见自然,缔造湾区美好质感生活。
●中轴城市江景叠墅:广州中轴之上南向一线望江叠墅,占据广州第二个中轴岛的地段资源及不可复制的自然景观资源。
【项目价值】
●霍英东集团开创初心:霍英东集团作为地产界的先锋者。首创地产分层出售/卖楼花/分期付款三大地产创举,突破行业发展瓶颈,让老百姓轻松实现置业梦想;更是致力于教育/医疗/文化/慈善等公益事业,让人们的生活更美好;
●霍英东集团品质打造匠心:南天名苑是霍英东集团在广州打造首个高端住宅项目,传承之上的创新,融入国际化生活方式,斥巨资打造独具匠心的好宅作品;
●咫尺CBD 城市桃花源的舒心:与CBD恰好的生活距离,离尘不离城的生活尺度,市中心的世外桃源。
基本情况
【占地面积】800亩(53万㎡)
【建筑面积】52.8 万㎡
【容积率】约1.06
【总户数】约1200户
【车位比】1:2
【在售产品】4梯3户·3.3米层高·23-27层·豪华装修
【洋房户型】140㎡-270㎡四房双主套
【物业公司】港联不动产物业,“国际金钥匙物业联盟”创始成员
【物业费】高层洋房4元/㎡·月
1.交通、教育配套:
①项目地处的洛溪岛,是继二沙岛之后,市中心第二个中轴岛,三江汇聚,处于城市中轴与珠江后航道的交汇处;
②项目位于广州快速发展的黄金江岸线——珠江后航道高端豪宅居住带上;
③2018年2月24日国规委发布主城区范围,洛溪岛纳入主城区核心地段,同时广州中轴南移至洛溪岛,形成广州塔、珠江新城城市中轴景观;
南天名苑售楼处Vip Tel:400-873-0112【售楼处☎☎已认证】⭐
南天名苑营销中心24小时电话:400-873-0112【营销中心☎☎已认证】⭐
南天名苑开发商24小时电话:400-873-0112【开发商☎☎已认证】⭐
但是这边不要想着依靠公共交通,比如地铁,出行以自驾来看更多只能依赖洛溪大桥,或者新光快速路,但这两条主干道都很塞车,这也是岛尖地形带来的交通闭塞,有得必有失。
●家门口省级标准学府教育的用心:约4.8万省级双学府一站式优质教育:省级九年一贯制[广东仲元中学附属学校],以及广州教育实验集团强强联手,公立优质幼儿园[广州市番禺实验幼儿园],目前仲元中小学及幼儿园均已开学。
南天名苑售楼处Vip Tel:400-873-0112【售楼处☎☎已认证】⭐
南天名苑营销中心24小时电话:400-873-0112【营销中心☎☎已认证】⭐
南天名苑开发商24小时电话:400-873-0112【开发商☎☎已认证】⭐
2.商业、医疗、休闲配套:
●城芯800亩低密环境的倾心:
①约800株珍稀小叶榕,约2.3公里浓荫江堤,容积率约1.08,自然健康生活下楼即享受;
②270°三江汇聚景观视野,约800亩半岛仅为千户所享,舒适的生活尺度(平均约占地440㎡/户的享用空间);
●家门口优质圈层的修心:
①打造岛尖半岛体育公园:广州首个岛尖马术场——现已与国际小马俱乐部、中国授权单位The Pony Club(中国小马俱乐部)达成战略合作,现已开设青少年马术培训课程,让业主可以享受到绅士优雅的骑马运动。还有[半岛足球场]、[半岛网球场]以及[半岛攀岩场]等场所,培养孩子前沿视野。
南天名苑售楼处Vip Tel:400-873-0112【售楼处☎☎已认证】⭐
南天名苑营销中心24小时电话:400-873-0112【营销中心☎☎已认证】⭐
南天名苑开发商24小时电话:400-873-0112【开发商☎☎已认证】⭐
②自然健康生活平台【天CLUB】已正式开业:
天CLUB由亚洲飞人苏炳添担任首席荣誉官,为会员带来运动健康的生活方式。以下沉式庭院的规划进行打造,共有地上两层、地下一层合计三层的设计,内部有开放式开敞明亮的图书馆、室内外儿童乐园、室外花园泳池、室内恒温泳池、室内多功能综合球馆、乒乓球室、健身房、虚拟高尔夫、茶室等设施场地,以会员制打造自然健康圈层生活平台。
南天名苑售楼处Vip Tel:400-873-0112【售楼处☎☎已认证】⭐
南天名苑营销中心24小时电话:400-873-0112【营销中心☎☎已认证】⭐
南天名苑开发商24小时电话:400-873-0112【开发商☎☎已认证】⭐
拥有位于项目岛尖的马术学院,可为不同年龄段和不同学习阶段的马术爱好者匹配个人合适的马匹,并与中国小马俱乐部达成战略合作(澳洲小马俱乐部PCA中国授权单位),提供受36个国家认证的专业等级认证体系和国际马术教育课程。
大人能在这里享受马背驰骋的乐趣,孩子们也可以从小练习马术,感受骑士精神的熏陶。
●城芯800亩低密环境的骋心:
①约800株珍稀小叶榕,约2.3公里浓荫江堤,容积率约1.08,自然健康生活下楼即享受;
②270°三江汇聚景观视野,约800亩半岛仅为千户所享,舒适的生活尺度(平均约占地440㎡/户的享用空间);
●家门口优质圈层的修心:
①打造岛尖半岛体育公园:广州首个岛尖马术场——现已与国际小马俱乐部、中国授权单位The Pony Club(中国小马俱乐部)达成战略合作,现已开设青少年马术培训课程,让业主可以享受到绅士优雅的骑马运动。还有[半岛足球场]、[半岛网球场]以及[半岛攀岩场]等场所,培养孩子前沿视野。
②自然健康生活平台【天CLUB】已正式开业:
天CLUB由亚洲飞人苏炳添担任首席荣誉官,为会员带来运动健康的生活方式。以下沉式庭院的规划进行打造,共有地上两层、地下一层合计三层的设计,内部有开放式开敞明亮的图书馆、室内外儿童乐园、室外花园泳池、室内恒温泳池、室内多功能综合球馆、乒乓球室、健身房、虚拟高尔夫、茶室等设施场地,以会员制打造自然健康圈层生活平台。
南天名苑售楼处Vip Tel:400-873-0112【售楼处☎☎已认证】⭐
南天名苑营销中心24小时电话:400-873-0112【营销中心☎☎已认证】⭐
南天名苑开发商24小时电话:400-873-0112【开发商☎☎已认证】⭐
拥有位于项目岛尖的马术学院,可为不同年龄段和不同学习阶段的马术爱好者匹配个人合适的马匹,并与中国小马俱乐部达成战略合作(澳洲小马俱乐部PCA中国授权单位),提供受36个国家认证的专业等级认证体系和国际马术教育课程。
大人能在这里享受马背驰骋的乐趣,孩子们也可以从小练习马术,感受骑士精神的熏陶。
●城芯800亩低密环境的骋心:
①约800株珍稀小叶榕,约2.3公里浓荫江堤,容积率约1.08,自然健康生活下楼即享受;
②270°三江汇聚景观视野,约800亩半岛仅为千户所享,舒适的生活尺度(平均约占地440㎡/户的享用空间);
●家门口优质圈层的修心:
①打造岛尖半岛体育公园:广州首个岛尖马术场——现已与国际小马俱乐部、中国授权单位The Pony Club(中国小马俱乐部)达成战略合作,现已开设青少年马术培训课程,让业主可以享受到绅士优雅的骑马运动。还有[半岛足球场]、[半岛网球场]以及[半岛攀岩场]等场所,培养孩子前沿视野。
南天名苑售楼处Vip Tel:400-873-0112【售楼处☎☎已认证】⭐
南天名苑营销中心24小时电话:400-873-0112【营销中心☎☎已认证】⭐
南天名苑开发商24小时电话:400-873-0112【开发商☎☎已认证】⭐
②自然健康生活平台【天CLUB】已正式开业:
天CLUB由亚洲飞人苏炳添担任首席荣誉官,为会员带来运动健康的生活方式。以下沉式庭院的规划进行打造,共有地上两层、地下一层合计三层的设计,内部有开放式开敞明亮的图书馆、室内外儿童乐园、室外花园泳池、室内恒温泳池、室内多功能综合球馆、乒乓球室、健身房、虚拟高尔夫、茶室等设施场地,以会员制打造自然健康圈层生活平台。
南天名苑售楼处Vip Tel:400-873-0112【售楼处☎☎已认证】⭐
南天名苑营销中心24小时电话:400-873-0112【营销中心☎☎已认证】⭐
南天名苑开发商24小时电话:400-873-0112【开发商☎☎已认证】⭐
拥有位于项目岛尖的马术学院,可为不同年龄段和不同学习阶段的马术爱好者匹配个人合适的马匹,并与中国小马俱乐部达成战略合作(澳洲小马俱乐部PCA中国授权单位),提供受36个国家认证的专业等级认证体系和国际马术教育课程。
大人能在这里享受马背驰骋的乐趣,孩子们也可以从小练习马术,感受骑士精神的熏陶。
加载失败,请重新插入
最新销况
在售户型如下:
【A户型】王牌户型 270㎡环幕江景四房,约9米超大邮轮式阳台,一线望江无遮挡,专梯专户,墅级空中双花园,约28㎡超大私家庭院,多功能空间,约42㎡超大主卧空间,270°环幕江景,阔绰双主套房设计
南天名苑售楼处Vip Tel:400-873-0112【售楼处☎☎已认证】⭐
南天名苑营销中心24小时电话:400-873-0112【营销中心☎☎已认证】⭐
南天名苑开发商24小时电话:400-873-0112【开发商☎☎已认证】⭐
【B户型】约200㎡一线临江环幕大宅,一线望江 270°环幕三江视野,独立电梯入户,多功能入户花园,简约半开放式厨房,美味品味兼得,阔绰双主套房设计,尊享舒奢起居,R9栋为开放式3+1房交付,客厅与书房打通,开间可拓展至7.2米
南天名苑售楼处Vip Tel:400-873-0112【售楼处☎☎已认证】⭐
南天名苑营销中心24小时电话:400-873-0112【营销中心☎☎已认证】⭐
南天名苑开发商24小时电话:400-873-0112【开发商☎☎已认证】⭐
【C户型】约140㎡南向园景大宅,超高性价比,三卧室朝南设计,阔绰双主套房,独立电梯入户,同享两千万豪宅交标配置
【别墅+叠墅的基础信息】
霍英东集团南天名苑全新产品西区叠墅组团——珑岸面市。
●占地面积:约13.7万㎡
●建筑面积:约7.1万㎡
●容积率:单组团约0.99
●首推楼栋及套数:首推7栋楼,共计29套
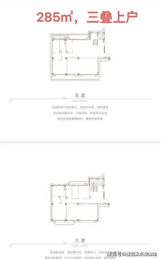
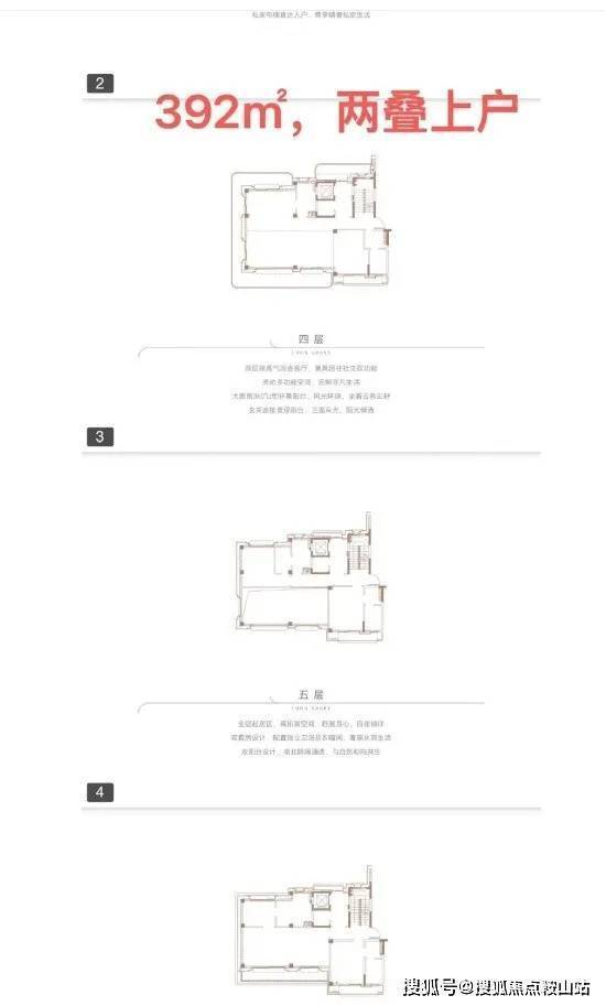
●产品户型:两叠(上叠392㎡、下叠437㎡),三叠(上叠 285㎡、中叠279㎡、下叠305㎡)
●占地面积:约13.7万㎡
●建筑面积:约7.1万㎡
●容积率:单组团约0.99
●首推楼栋及套数:首推7栋楼,共计29套
●产品户型:两叠(上叠392㎡、下叠437㎡),三叠(上叠 285㎡、中叠279㎡、下叠305㎡)
●使用率最高可达345%,每户都有私家电梯
●车位配比:两叠1:4、三叠1:3
●交楼标准:简装交付
●交楼时间:2025年11月29日
●车位配比:两叠1:4、三叠1:3
●交楼标准:简装交付
●交楼时间:2025年11月29日
“珑岸”整体产品分为两叠及三叠两种
①其中,两叠的上叠面积为392㎡,花园面积区间约为123-298㎡,天台面积约为93㎡,实用率193-259%;
下叠面积为437㎡,花园面积区间约为357-797㎡,实用率229-338%;每个户型均为4+1房设计,最高可做到7房。
②三叠的上叠面积为285㎡,首层花园面积区间约为27-90㎡,天台面积约为108㎡实用率达到178-274%;
中叠面积为279㎡,首层花园面积区间约为76-223㎡,实用率122-172%;
下叠面积为305㎡,首首层花园面积区间约为233-517㎡,实用率238-355%;三叠户型最高可做到6房。
③每户都享有私家电梯和私家楼梯,有天有地、户户有花园,打造别墅同款居住体验。
④超低容积率仅0.99%,除自家独立花园外还打造5个大型下沉式花园并有丰富的功能(如儿童乐园、瑜伽健身冥想、开放剧场等),可满足不同年龄段业主需求。
⑤人车分流设计,车库为负一层空间,每户可直达家门口且车位不占用业主房内面积。首批认购客户可以赠送2个车位。两叠户型车位配比1:4;三叠户型车位配比1:3。
⑥叠墅产品稀缺,同时是市面上唯一可售一线江景叠墅,户户三面采光,楼间距宽阔。
●低密江畔墅居:向心而往的岸畔院落生活,丰盈生活质感,称颂自然生息。
●新古典主义园林:灵感来源于欧洲庄园的中央花园设计,以岛居庄园为主题,打造三轴五境新古典主义园林,韵承艺术臻境。
●建筑设计规划:点状式布局,每栋楼均为南北朝向,户户均享超大景观资源及超宽楼距,打造高品质的岛中岛生活体验。
●全幕墙弧形立面:传承之上再创新,采用干挂石材+铝板+玻璃搭配,现代典雅弧形立面,雕琢时间的款藏。
●家族群居方式:领衔第三代叠墅封面作品,引入家族聚居的概念,打造家族同宅不同门的居住体验。
●创新户型设计:
①院落生活,270°露台,更贴近自然的生活方式
②私家电梯直达入户,尊享精奢私密生活
③户户均享6.8米挑高餐客厅,兼备居住社交双功能
④部分户型享270°U型露台,连接餐客厅,通风采光更通透
⑤多套房设计,灵动多功能空间,满足三代同堂居住需求
⑥星级主卧套房,配备衣帽间及四分离卫生间
优点缺点
优点
1,受益于独特的地理环境,南天名苑做到了三面望江,南北西都能看到开阔江面,因为南面都是别墅区,所以北阳台望江的缺点也被解决了,“我能南北都望!”

2,教育出色,项目自带九年一贯制的广东仲元中学附属学校,仲元百年名校,一直都是番禺甚至广东的前茅,其教育师资沉淀非常丰厚,加上南天名苑自身的业主圈层十分强悍。两者结合,仲元为外,圈层为内,小孩考出成绩的概率就非常大了。
3,产品力强 豪宅品质,规划显示,南天名苑容积率仅为0.99,整个地块建面378644平,放在全广州内,这个居住密度都是十分能打的,何况它还在市中心
4,环境非常优雅,三面临水,属于小区的私家江岸就有2.3km。包括自身社区的园林绿化,住在南天名苑的业主就是被河流和绿植包围的感觉,十分舒适宜人。
5,社区属于大盘,项目自身配套成熟,能满足各种各样需求
南天名苑售楼处Vip Tel:400-873-0112【售楼处☎☎已认证】⭐
南天名苑营销中心24小时电话:400-873-0112【营销中心☎☎已认证】⭐
南天名苑开发商24小时电话:400-873-0112【开发商☎☎已认证】⭐
关于本项目最新动态信息,如:在售房源价格,热门户型面积,限时特惠活动,等等,未推售楼栋分布,整体销售情况,临近地铁线路及出入口方位,区域发展蓝图,楼盘核心亮点与待完善细节以及教育资源配套情况等等均可拨打售楼处热线咨询,我们将为您对接专属资深置业顾问进行细致讲解!
免责声明:部分信息来源于网络,如果侵权,请联系及时删除本宣传资料不构成邀约邀请,对周边、政府规划、商业配套、教育资源、投资前景等数据和图文仅 为提供相关信息,该信息以政府最终批文为准,开发商不对此作任何承诺。买卖双方的权利义务以双方签订的买卖合同约定及附件、实际交付为准,本公司保留对宣传资料修改的权利,敬请留意最新资料。联系号码:400-873-0112。