深圳华润云上润府售楼处电话:400-892-2273 售楼中心热线,项目全面介绍,包含楼盘简介、售楼电话、小区户型图片、营销中心位置、区位优势、交通、周边商业配套、户型图等楼盘详情以上全文就是楼盘详情,这篇文章的详细分析和点评,感谢您的阅读,希望为您的购房置业选择上提供帮助
温馨提示:看房请提前来电预约,感谢配合(中介勿扰)
华润云上润府开发商售楼处咨询/预约热线:400-892-2273(中介勿扰)

项目位于宝安区富桥大道与永昌路交汇处东北侧,北侧为安居房和人才房,南侧为在建的虹桥世纪名园。项目占地3万平,由9座19~22层高的塔楼和一个幼儿园组成,除二栋四单元为自持租赁外,其余均为商品房。首批推出的是3栋一、二、三、四单元,总户数1191户,其中住宅950户,自持租赁241户,车位1216个,车位比1:1.03,容积率4.2,预计25年5月交付,户型定位偏改善,主力户型是。98平三房两位传统竖厅,动静分区,每一栋都有分布有东南、西南、西北三种朝向。

【开发商】深圳运瑞商务咨询有限公司
【物业公司】润加物业服务(深圳)有限公司
【物业费】3.9元/平方
【备案时间】2023-05-19
【备案价格】4.78万
【装修情况】精装
【交付时间】2025年5月
【总房源】1191户(可售950户)
【车位数】1216
【车位比】1:1.01
【容积率】4.2
【绿化率】30%
【总层高】19/22F
【梯户比】2T5|2T6|2T7
【占地面积】30862.51㎡
【批地时间】2022-10-26
【在售户型】97-135㎡
华润云上润府开发商售楼处咨询/预约热线:400-892-2273(中介勿扰)

福海地处宝安中部城区核心位置,作为深圳西部工业重镇,集萃超4000家高新企业,经济总量居全区前列。2022年以高标准谋划“一核两翼”新格局,打造集国际化城市中心、战略性新兴产业的“新一代产业都芯”,为福海注入磅礴发展动能。
三大国家战略叠加,福海迈进黄金发展期,政策利好叠加资源禀赋,擎动城市“跃迁式”升级,一个高质量发展的湾区样本跃然已现
• 大前海战略:前海合作区,“大湾区核心战略支点”+“世界级湾区会客厅”,以8倍扩容之势,迈进约120K㎡万亿大前海版图华润云上润府开发商售楼处咨询/预约热线:400-892-2273(中介勿扰)
• 大空港战略:空港枢纽城,约95平方公里粤港澳大湾区新城、国际一流空港都市区,推动西部经济崛起的创新引擎
• 大会展海洋战略:会展海洋城,宝安“五大发展极核”之一,凭借“会展新城+海洋新城”双核规划,打造双千亿级产业高地
• 深港先进制造业合作区:宝安十四五规划唯一带深港合作概念片区,以世界先进制造示范区为定位,助推福海片区6.9平方公里规划建设,打造深港产城融合前沿阵地
• 大族激光智能制造产业基地:全市15个重中之重工业项目之一,打造千亿级激光智造产业集群基地
• 环立新湖产业基地:深圳战略性新兴产业聚集区,打造为全国知名的智能装备制造产业基地和全球激光产业基地
• 平安高科技城:总投资约150亿,引入平安集团各大资源,建设成为平安科技金融与智慧城市创新中心
交通无忧 便捷出行
周边多地铁围绕,距已开通的地铁11号线桥头站,直线距离约800米;5站宝中、6站前海!去到南山、后海、车公庙,10个站内一线直达,无需换乘。华润云上润府开发商售楼处咨询/预约热线:400-892-2273(中介勿扰)
距离12号线桥头西站直线距离约1000米,有着换乘大王美誉的12号线加持,能够便捷通达全深。
周边另规划有20、18、26号线等多条地铁,以及宝安机场、海洋新城超级码头(规划中)、国际邮轮港(规划中),轻松构建覆盖全城,乃至湾区和国际的高效通勤圈。

高阶商圈焕新在即
商业上,项目自带有多业态商业云街,可以满足基本的生活需求。周边超400万㎡城市更新,提供多个高阶商圈!
有正在建设的9万㎡华强城商业,开车约10分钟左右就能到达,还有约30万㎡高端名品奥特莱斯等!
全龄优质学府环绕
华润云上润府开发商售楼处咨询/预约热线:400-892-2273(中介勿扰)
教育方面,项目自带9班制幼儿园,与深圳市福海中学一街之隔。
约1公里范围内分布幼儿园、小学及中学10多所,其中桥头学校为九年一贯制公立学校,福海小学(建设中)拟设24班1080个学位(具体入学条件以教育部门及学校当年公布的招生政策为准)。
从幼儿园到高中,15年全龄优质学府,解除多少父母的忧愁!
文、体、医配套齐全
市政配套上,除了已建成的福海足球体育公园,还有建设中的福海公园、福海文体艺术体育中心,均在项目旁边。
项目所在街道不仅拥有宝安首个街道级儿童公园,还规划建设有多个儿童专属活动公园空间,未来遛娃不用担心了。
【城市公园群落,重拾自然栖居】
毗邻福海足球体育公园、福海文体中心(规划中),周边福海公园、凤凰山森林公园、立新湖公园及海洋新城红树林休闲区(规划中)等环绕;项目所在街道规划多个儿童友好型公园,为亲子互动提供专属空间。
【三甲医疗配套,护航家人健康】
华润云上润府开发商售楼处咨询/预约热线:400-892-2273(中介勿扰)
临近宝安中医院福海医院(规划中),该院为区域重点推进的建设项目,咫尺近享高质量医疗服务
【湾区文旅坐标,人文生活剧场】
• 升级版海上田园(在建中)|粤港澳大湾区东岸生态绿核、国家4A级综合性景区
• 深圳冰雪文旅城(在建中)|大湾区文旅新地标、世界级冰雪文旅综合体
• 沙井金蚝小镇(规划中)|深圳西部历史风貌区,将重点打造“历史与现代交融、城市机能与文旅活动共生”的未来城市文旅目的地。华润云上润府开发商售楼处咨询/预约热线:400-892-2273(中介勿扰)
产品方面,润系2.0作品升级亮相!
华润置地结合自身品质豪宅开发经验,回归家庭生活需求和空间使用价值,创新打造又一座专属于前海宝安的润府产品,带来全新升级的品质户型。
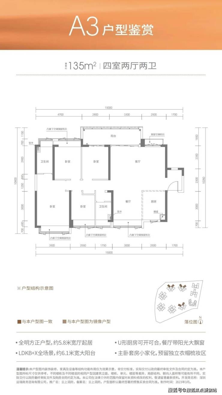
主推建面约98㎡的三房、132-135㎡的四房,是片区内较为稀缺的低密度纯粹改善型产品,为不同需求的家庭提供充分空间选择!华润云上润府开发商售楼处咨询/预约热线:400-892-2273(中介勿扰)
华润云上润府开发商售楼处咨询/预约热线:400-892-2273(中介勿扰)
华润云上润府开发商售楼处咨询/预约热线:400-892-2273(中介勿扰)
温馨提示:看房请提前来电预约,感谢配合!预约来访成功,即享现场当天优惠折扣,可预约现场指定销售专员(中介勿扰)
华润云上润府开发商售楼处咨询/预约热线:400-892-2273(售楼处热线)
(更多项目动态| 欢迎来电咨询 | 请提前预约登记看房 | 1:1销售专业讲解)置业顾问一对一对接,来电尊享受额外优惠
免责声明:本文如无意中侵犯了某方的知识产权,告之即删