最新消息:福田新天石厦铭苑推出20套特价单位,72㎡比原来价格降幅50万+,AC 栋 72平 两房510 万,2B 栋 72平两房560 万,C栋82平小三房639 万,88平大三房799 万,138平大四房1050万

项目位于福田石厦片区,为石厦村旧改二期。
有5栋,共有房源1336套,可售商品住宅246套,1090套房源为回迁房住宅;该5栋建筑主体组成,分为1/2/3栋,其中1栋分为1单元和2单元,2栋分为ABC座,2栋B座由1/2单元组成,3栋为幼儿园;可售的只有2B栋的两个单元个
新天石厦铭苑项目总占地约2.6万平,总建面约29.5万平,容积率:6.28,包含45层,户型为72-138平2-4房。
区位优势:居福田腹地得塔尖精萃
集行政,文化,金融,交通,会展,购物,酒店,公园,住宅等九大优质配套;
积淀深圳40年发展力量,集权力行政中心、金融财富中心、企业总部中心、商业消费中心、文化艺术中心、交通梳纽中心、资讯交流中心、商务社交中心等八大中心于一体,是深圳影响世界的力量。


交通配套
踞立体交通 得无忧出行毗邻地铁3、7号线石厦站,步行仅500米,贯穿深圳中心;临近福田口岸与皇岗口岸,无缝接驳深港两地;穗莞深城际轨道(建设中)2站直达前海,联通两大深港合作区;福田高铁站,快速链接全国。
商业配套
拥三大商圈 揽万象繁华,周边坐拥购物公园、CBD及石厦三大商圈,下楼即享:项目与5万m²马成时代广场为邻,各大品牌下楼即享;地铁一站:COCOPark、皇庭广场、领展中心城、购物公园环伺万象繁华尽在掌握。
教育配套
荔园&红岭双名校旁周边500米内涵盖幼儿园到初中的全龄段教育配套。项目毗邻“省国家级示范性高中“红岭中学(石厦初中部)及荔园小学(众孚校区),以及益强小学和石厦学校中学部,为全龄段教育保驾护航。
医疗配套
开车10-30分钟可达上海医科大学、儿童医院、北大医院、人民医院,北京大学深圳医院,福田人民医院,深圳儿童医院,深圳市福田区中医院,中山大学附属第八医院,福田第二人民医院,深圳市眼科医院,香港大学深圳医院等

生态配套
拥多重景观 享自然生态,项目自带:倾力打造舒适生态人居,内揽无限园林美景;一路之隔:石厦公园,日常居住推窗见景,与家人一起拥抱自然;约600米:五星级皇岗公园,享受多重美景;约1500米:红树林生态公园,享受绿色健康生态。
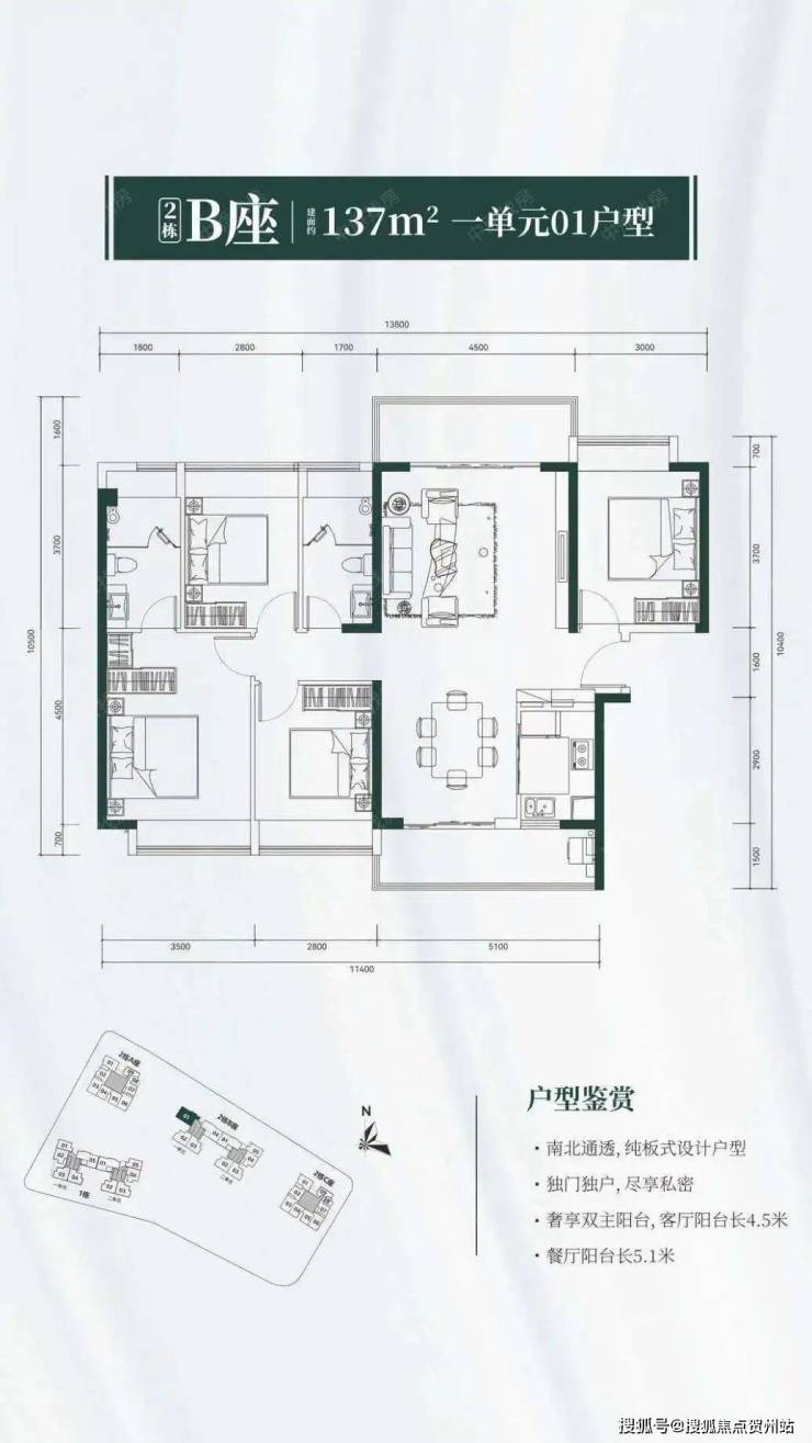
主推产品:约72-138㎡ 二至四房产品
72-74㎡两房:单卫设计,次卧面宽2.7米,适合单身或小家庭。
88㎡三房:南向采光,双卫设计,但厨房无生活阳台,实用性打折扣。
138㎡四房:南北通透,主卧套间设计,但得房率仅75%,性价比弱于周边二手次新盘。

♬❄♬Vip贵宾置业==欢迎来电预约尊享内部折扣===匠心钜制恭迎品鉴♬❄♬温馨提示:网上展示中心〢欢迎来电咨询〢安全通话隐藏真实号码