4000689978
【海逸豪庭·尚都G2b联排别墅108套】
【开发商】长江实业集团
【总占地】约7000亩,约2000亩高尔夫
【总建面】约200万平方米
【产品】建面约310-357 m²联排别墅
【绿化率】约33.6%
【社区配套】小区配套海逸幼儿园、海逸外国语学校,满足孩子在家门口享受从幼儿园至高中15年精英教育;27洞国际锦标级高尔夫球场;“海逸· 时尚坊”商业街区;尊享尊萃会、海逸运动中心、御峰会所以及尚都荟
尚都G2b区仅打造108套珍稀联排别墅,项目依山而建,错落有致,私享前后双花园,地下室及天台,部分单位更独揽湖景山色。以山水为卷轴,为层峰人士勾勒出世外桃源般的栖居诗篇,每一栋皆弥足珍贵。当城市土地日益珍稀,此般拥山瞰湖的藏品级别墅,将成为高端圈层的象征。
【户型鉴赏】
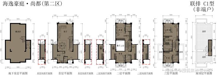
C1非端户户型( 建面约310㎡,4房2厅5卫)
【户型优势】
l 享约80m²产权地下室空间,可自由规划为健身房、影音室等多功能空间
l 享前后花园、天台及双车位
l 四房两厅,全套房全明卫设计,尽享私密空间;卧室均带阳台,通风采光俱佳
l 餐厅挑高约6.6米, 约5.2米开间阔绰客厅,尽显别墅风范
l 厨房联通室外平台,生活更加便捷舒适
l 二层、三层错层布局, 空间阔绰且私密性更高
l 阔绰主卧带独立卫浴、衣帽间及露台,享奢华空间
l 私享天台,大尺度延展生活空间
C2端户户型(建面约357㎡,4房2厅5卫)
【户型优势】
l 享约100m²产权地下室空间,可灵活打造多功能空间
l 享前庭后院和侧边大花园、双车位及天台
l 约7米客厅挑高,餐客厅开间约6.2米,彰显别墅风范
l U型大厨房连通室外平台,空间宽阔,尽享烹饪乐趣
l 全套房全明卫设计,干湿分离,舒适洁净,尽享私密空间
l 阔绰主卧连独立卫浴、衣帽间及露台,享奢华空间
l 享顶层天台空间, 为生活增添无限乐趣
C3非端户户型( 建面约310㎡,4房2厅5卫)
【户型优势】
l 享约80m²产权阳光地下室空间, 多功能空间随心打造
l 享前后花园、天台及双车位
l 约6.6米挑高餐厅,约5.2米开间阔绰客厅,参客厅一体设计,尽享奢华空间
l 四房两厅,全套房全明卫设计,尽享私密空间;卧室均带阳台,通风采光俱佳
l 二层、三层错层布局, 空间阔绰且私密性更高
l 阔绰主卧连独立卫浴、衣帽间及露台,享奢华空间
l 私享天台灵动空间,为生活增添无限乐趣
C4端户户型(建面约357㎡,4房2厅5卫)
【户型优势】
l 享约100m²产权阳光地下室空间,百变空间随心打造
l 享前庭后院和侧边大花园、双车位及天台
l 约7米客厅挑高,餐客厅开间约6.2米,彰显别墅风范,U型厨房连通室外平台,空间宽阔,尽享烹饪乐趣
l 二层、三层错层布局, 空间阔绰且私密性更高
l 全套房全明卫设计,空间宽敞私密性高
l 主卧空间阔绰,配备独立卫浴、衣帽间及阳光露台
l 享顶层天台空间, 大尺度延展生活空间

中山利率
目前,中山有银行已经跟进“限降”,明确房贷利率不得低于3%;
其中,中山四大行首套和二套统一执行标准利率,即3.0%(LPR-60BP)!
当前是房贷利率的触底期,随时会上调反弹,有置业需求的的购房者,要抓紧时间了!