🍂石家庄城发投·云歌朗樾🍂
🍂石家庄城发投·云歌朗樾售楼处24小时电话:售楼处电话📞400-678-8669转9999【☎☎已认证】🍂
🍂石家庄城发投·云歌朗樾售楼中心24小时电话:400-678-8669转接9999【☎☎已认证】🍂
🍂Vip贵宾置业===欢迎来电预约尊享内部折扣===匠心钜制恭迎品鉴🍂
🍂石家庄城发投·云歌朗樾售楼处24小时电话::400-678-8669转接9999🍂

整体概述
城发投·云歌朗樾楼盘位于石家庄新华新华区中华大街与北城路交口西行约300米,由石家庄市裕惠房地产开发有限责任公司精心打造,项目正持续推售中,最新参考价格为17500元/平方米,通过对项目价格、项目户型、交通配套、教育配套、生活配套、小区规划等维度进行分析,城发投·云歌朗樾楼盘价值评分为9.4分。当前,城发投·云歌朗樾价格为17500.00元/平方米,较周边三公里在售普通住宅项目均价低4.8%,城发投·云歌朗樾项目价格具备一定优势。
城发投•云歌朗樾🔥火爆热销中
▶️面积129-159㎡
▶️18000-21000
‼️新华区核心地段,地铁3号线,五大商圈,接轨时代繁华盛荟!
项目名称】:城发投云歌朗樾
【项目地址】:中华大街与北城路交口西行300米
【开发商名称】:石家庄市裕惠房地产开发有限公司
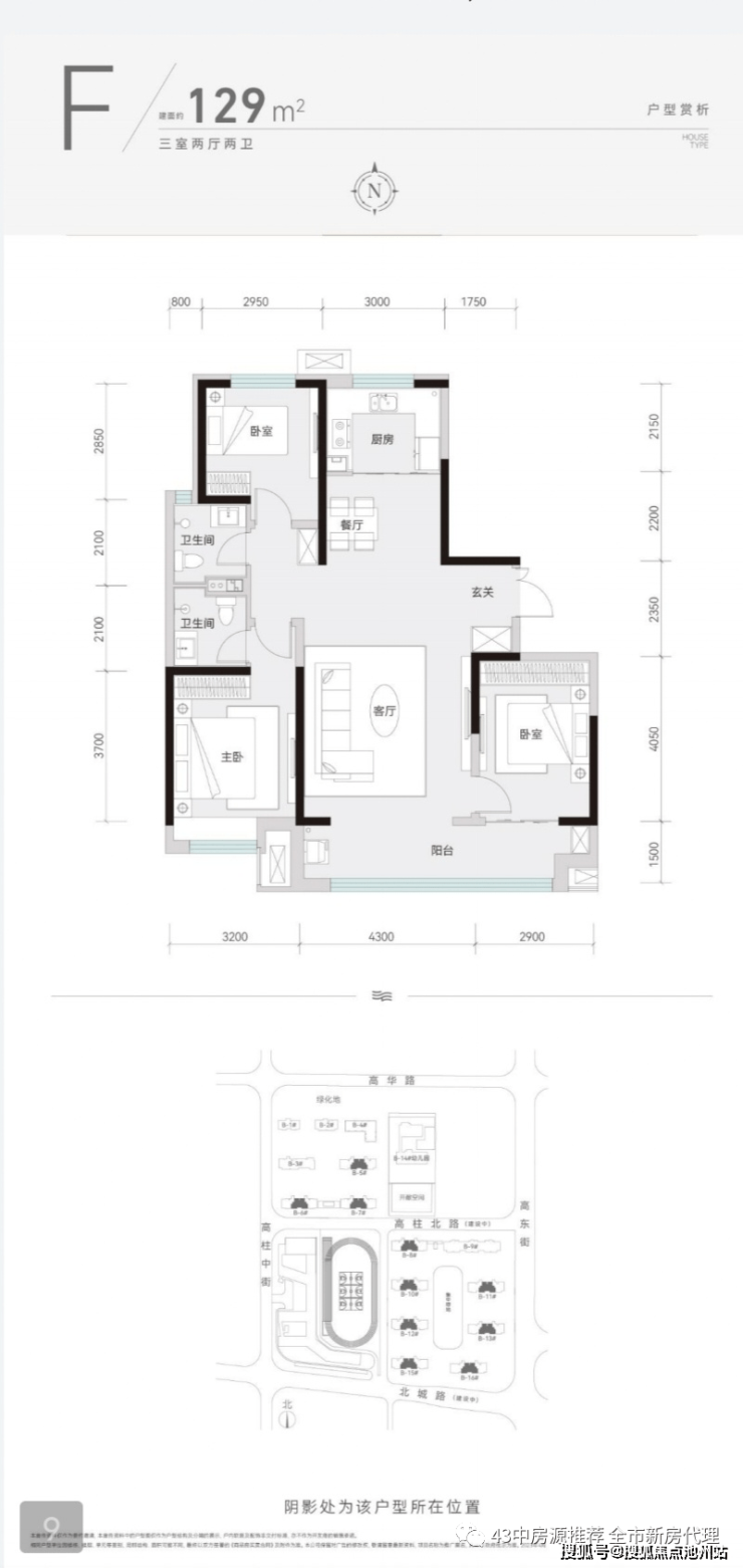
【面积】:129㎡ 132㎡ 147㎡ 159㎡全部为三室两厅两卫
【楼盘价格(区间价)】:均价18000-21000
【产品类型】:住宅(18层到顶小高层)、
【在售楼栋】:小高层8# 10# 12# 15# 13#
【购买政策】:暂定
【限购政策】:不限购
【贷款政策】:商贷:首付2成;公积金:市值/省值
【交房时间】:2025.10.31日
【交房标准】:毛坯
【绿地率绿化率】:绿地率35%
【层高】:2.9m
【楼间距】:40m左右(以实际楼栋输出为准)
【物业公司】:携手物业服务行业Top级龙湖物业,为业主定制龙湖体系中尊崇级别的物业服务体系
【物业费】:2.8元/㎡
【在售地块】:一期
【区位配套】:东临中华大街,北邻联盟路,南依滨华路,中间北城路贯穿城市中心,多维立体交通3号线(已开通柏林庄 高柱站)5号线(规划石家庄北站)接轨一个时代的繁华盛荟
【商业配套】:信誉楼商圈,宏碁商厦,中储商圈,北国超市,永辉超市,北站商圈(规划中
【交通配套】:东临中华大街,北邻联盟路,南依滨华路,中间北城路贯穿城市中心,多维立体交通3号线(已开通柏林庄 高柱站)5号线(规划石家庄北站)接轨一个时代的繁华盛荟
多路公交车运行17路 58路( 中华大街上)
【医疗配套】:三大省级医疗:省二院,省人民,省三院
【项目卖点提炼】:
①千亿国企城发投品牌实力强 品质高 有保障
②携手物业服务行业Top级龙湖物业,为业主定制龙湖体系中尊崇级别的物业服务标准
③新华区核心地段,北站升级改造核心位置
4大公园环绕,成实级水上公园,三大街角公园(规划中)2.0低密园林美学4000㎡社区花园
⑤紧邻中华大街北城路,3号线柏林庄站,高柱站
5号线石家庄北站(规划中)
⑥项目全部为三居产品,圈层高端纯粹
【区位图】:

【规划图】:



【户型图】:
型号:129㎡ 132㎡ 147㎡ 159㎡
【户型图】:
型号:129㎡ 132㎡ 147㎡ 159㎡




🍂石家庄城发投·云歌朗樾🍂
🍂石家庄城发投·云歌朗樾售楼处24小时电话:售楼处电话📞400-678-8669转9999【☎☎已认证】🍂
🍂石家庄城发投·云歌朗樾售楼中心24小时电话:400-678-8669转接9999【☎☎已认证】🍂
🍂Vip贵宾置业===欢迎来电预约尊享内部折扣===匠心钜制恭迎品鉴🍂
🍂石家庄城发投·云歌朗樾售楼处24小时电话::400-678-8669转接9999🍂