苏州绿城兴贤澜颂
⫸⫸⫸-苏州绿城兴贤澜颂售楼处电话:400-681-7288输入1111分机号已认证】⫷⫷⫷
⫸⫸⫸-苏州绿城兴贤澜颂开发商电话:400-681-7288输入1111分机号已认证】⫷⫷⫷
⫸⫸⫸苏州绿城兴贤澜颂-营销中心电话:400-681-7288输入1111分机号已认证】⫷⫷⫷
⫸⫸⫸苏州绿城兴贤澜颂-展示中心电话:400-681-7288输入1111分机号已认证】⫷⫷⫷
来电可了解楼盘最新动态、房价、在售房源、交楼时间等信息!让你买的放心,住的舒服
浒墅关两大低密项目同台发力:绿城・兴贤澜颂以1.2容积率、2000㎡高端会所及合院、叠墅、洋房全业态,打造中式改善标杆;苏地2024-WG-Z29号凭1.35容积率、11000元/㎡楼面价覆盖预算友好型需求。

苏地2024-WG-Z34号,项目位于高新区经开区(镇)鸿禄路东、中虹路北,占地5.69万方,容积率1.2,计容总建6.82万方。
项目规划39栋住宅,其中32栋3F合院,3栋6F叠加,4栋11F洋房。

项目景观设计以中式造园为根基,当代需求为导向,深度呼应“京杭古韵・繁华姑苏”的项目主题,将苏式园林的雅致与现代生活的实用完美融合,打造低密墅区的沉浸式景观体验。


外立面以中式美学为魂、现代工艺为骨。



打造约2000㎡高端会所,囊括健身、泳池、私宴厅等多元奢享空间,尽显豪宅生活的尊崇仪式感。

项目合院地上三层,地下一层,面积280-470㎡、叠加上叠/中叠170-187㎡、下叠270-300㎡),洋房117-143㎡,总户数375户。
合院280㎡:合院起步面积,整个小区共规划32套,单层开间9.8米,一楼有老人房,二楼挑空赠送,双套房,三楼主卧套房,南向露台。

合院360㎡:整个小区主力户型,总计69套,单层开间10.8米,二楼南向露台,可做三房,三楼南北双露台。

合院410㎡:整个小区共规划22套,单层开间13.5米,二楼L型露台,三楼270°环幕露台。

合院470㎡:整个小区仅规划10套,单层开间15.6米,二、三楼L型露台。

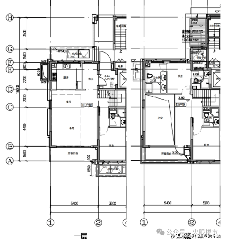
叠加下叠:单层南向开间8.6米,一楼有老人房,二楼可做三房,南向5.4米阳台。

洋房
117㎡3房2卫,南向双开间阳台。

苏州绿城兴贤澜颂
⫸⫸⫸-苏州绿城兴贤澜颂售楼处电话:400-681-7288输入1111分机号已认证】⫷⫷⫷
⫸⫸⫸-苏州绿城兴贤澜颂开发商电话:400-681-7288输入1111分机号已认证】⫷⫷⫷
⫸⫸⫸苏州绿城兴贤澜颂-营销中心电话:400-681-7288输入1111分机号已认证】⫷⫷⫷
⫸⫸⫸苏州绿城兴贤澜颂-展示中心电话:400-681-7288输入1111分机号已认证】⫷⫷⫷
来电可了解楼盘最新动态、房价、在售房源、交楼时间等信息!让你买的放心,住的舒服