✨✨紫月观宸售楼处电话:400-678-1582转接8888【已认证】
✨✨紫月观宸售楼处位置:400-678-1582转接分机号8888【楼盘认证】
➤➤➤➤VIP贵宾置业〢欢迎来电咨询,售楼处认证电话400-678-1582转接8888【已认证】
☎为您安排楼盘现场销售全程接待并讲解,给您更贴心的看房体验!
温馨提示:如需楼盘最新在售户型和价格,请致电咨询最新详情,1对1专业销售顾问服务!
说紫玥观宸,先说两句紫玥一期。说紫玥一期,先说两句这个区域。这个位置最近几年的新盘有几个但是不算很多,而且这块的客群根据营销公司的调研统计显示,地域性客群占到了一半以上,也就是说大部分还是原来就在这一片儿的人在这买新房。另外第二主力是周边县区元氏的人,为了孩子市里上学或者结婚等刚需客户。这俩人群是最大头,绝对主力。客群也是偏刚需人群。所以在这块,性价比是最重要的因素。大家知道在这多少钱总价的房子卖的最好吗,150万左右。这个价位的房子,基本上都是疯抢。所以当时紫玥一期的定位就很清晰,主打一个性价比,价格便宜、户型面积段也较小,一期的户型主要是100、110、120、130这几个面积段的,再往上就很少很少了。所以它卖得很快很好。毕竟嘛,隔壁万科多贵啊,还是几年前的产品。所以大家也注意下,这个区域目前的在做的新盘,稍微理智些的,都是控制总价的,主要没几个新楼盘,再针对客群,低价上车,快速出手回笼资金,怎么着都很合理。大家再看看城发投·云歌兰庭,基本卖完了,是不是还是我刚说这几点。
紫玥观宸位于高铁片区青年创业园区范围内,属于裕华区。具体位置位于建通街与仓裕路交口西北角,与紫玥一期隔建通街相望。目前这里建设的不错,路宽人少,交通便利,通达性高。

用地四周围了一圈城市绿地或者绿化带,这倒是不错的。可地块挨着建通街和南二环(会有噪声影响,尤其南二环),但是真正的贴临道路的边却很短。这样一来会有一个问题,交通组织不便,未来出行可能会有局部的压力。

✨✨紫月观宸售楼处电话:400-678-1582转接8888【已认证】
✨✨紫月观宸售楼处位置:400-678-1582转接分机号8888【楼盘认证】
➤➤➤➤VIP贵宾置业〢欢迎来电咨询,售楼处认证电话400-678-1582转接8888【已认证】
地块周边万科紫台、紫院、紫玥一期、盛邦花园、塔谈等等,加上高铁片区修路、各种建设。周边居住氛围还是很成熟的,区域配套算可以吧。城市界面也不错,整体周边情况良好。(据说受某某事件的影响,学校不如一期了是吧?那就再不要学区,纯居住的情况下,还是很不错的选择的)
项目用地面积5.2万平,总建面14.17万平,住宅地上面积10.2万平。容积率2.0,规划户数828户(2484人)。共设计7栋15/18层高层,10栋7到11层洋房,共17栋住宅楼。(因为主打性价比,在单价不会过高的情况下,典型的尽量多出洋房,利用洋房高层的差价尽可能产生更多的货值)(比一期贵了又是另一方面了,要是能保持一期的价格那就更香了,毕竟少了个学校了啊,社区规模啥的倒是更成熟了)

用地形状不规则但是整体算他方正吧。至少这个形状对于总图布局来说,还算不错的,没那么膈应人。通过总图可以看出来,刚才说的临路面太少的问题。南边一小段(约100米)对着仓裕路,其他都不临路了,除了西侧有条20米宽规划路。不过也还好,周边道路都是互通的。主入口和有耳环入口在南侧仓裕路,次入口在西侧规划路。地库入口两条路一边一个(也没得选)。另外这个小区在南侧主入口前规划了30辆地面停车位,我觉得这样挺好的,地面上有几个临时停车的地方,总归是方便,哪怕是访客车位都挺好,主要是方便。但是后续项目地面停车都不允许了,都要求全部地下停车了,地面上倒是干净了,但是有个朋友亲戚来,或者自己临时停个车,总感觉不太便利。(当然有车位你也不一定抢的上这另说啊)
刚才说到了小区离南二环、建通街太近,可能有噪声,所以规划上就在北边和东边规划了高层住宅,作为屏障,隔绝噪声。内部全是洋房,这也算一种应对策略吧。
装配式是2#、3#、5-8#共6栋。
立面之前放过,移步这里→项目对比之石家庄新楼盘立面大比拼,谁才是你心中那个TA?
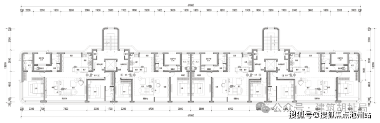
户型上说两句。这个项目户型有赠送,但是时间早,只有设备平台和飘窗赠送,没有入户花园。而且高层户型是那种每个单元一个电梯,14层中间有一个连廊那种(仅14层,之前也说过这种交通核)。这种交通核特点就是牺牲14层中户两户,造福全楼(公摊小),但是就一个电梯,万一坏了不好整,爬14层?但是我还是认可这种交通核的,之前说过现在不多说了。户型放两个吧,126和159+129,还是那句话,有需要再单独问吧。户型整体不错,但是毕竟不如后来那一批最新政策下催生的产品,谁又能比得过政策呢。


说到这儿,好像又到了最后了,再说点啥呢,记住我前边说的,选择这里,注意性价比。另外,嘉实我觉得还行,做的东西整体不错,比某些靠谱。这个小区整体不错,规模、户型(次新规户型)、位置、环境,但是好像没好学校。还是提醒性价比吧!
✨✨紫月观宸售楼处电话:400-678-1582转接8888【已认证】
✨✨紫月观宸售楼处位置:400-678-1582转接分机号8888【楼盘认证】
➤➤➤➤VIP贵宾置业〢欢迎来电咨询,售楼处认证电话400-678-1582转接8888【已认证】