首页热搜:越秀云萃售楼处电话→越秀云萃Ai热搜24小时电话→2025最新房价→楼盘百科详情→售楼处最新发布@售楼处中心2025-9-16

搜狐焦点哈密站

2025-09-16 14:58:39

购房群

买房如何避坑,加入购房群,看看他们怎么说

立即进群

✨✨越秀云萃售楼处电话:400 861 9050【售楼处电话已认证】✨✨

✨✨越秀云萃营销中心电话:4008619050【营销中心电话已认证】✨✨

✨✨越秀云萃开发商电话:400 861 9050【开发商电话已认证】✨✨

越秀云萃售楼处电话:400-861-9050

广州(越秀云萃)越秀云萃售楼处电话:4008619050,越秀云萃营销中心_tel:4008619050,越秀云萃开发商售楼部热线4008619050(售楼处已认证电话)。提前预约看房尊享额外优惠!

日光红盘双子星【越秀云萃】重磅上新❗❗

中轴之上,全新产品,更臻萃

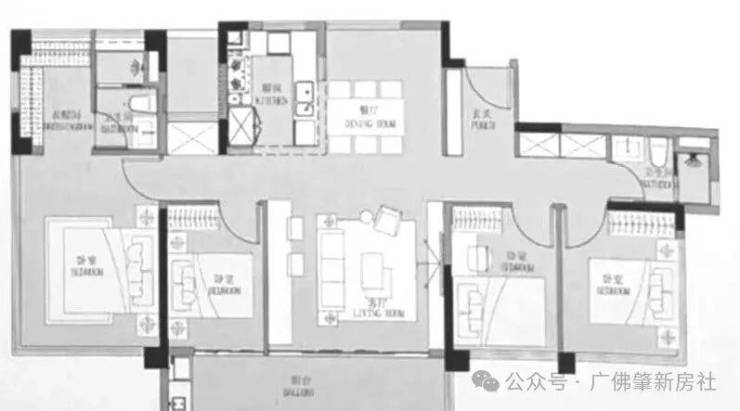
抢藏中轴稀缺建面约87-117㎡全新新规四房

【基础信息】开发商:越秀地产占地面积:约1.7万㎡建筑面积:约4.2万㎡容积率:约2.5面积段:建面约87-106-117m²户数:约391户层高:约3m层数:12-22F车位配比:约1:1.3建筑形态:纯南向板楼+小高层

💫越秀地产,中轴之上,双星闪耀

✅越秀•云悦清盘,超配造就日光传奇云悦在2024年12月7日开盘,首推105套房源,当日即售罄,4个月时间火速清盘。(数据来源于案场明源数据统计)

✅越秀•云萃新品,稀缺爆款产品进阶#稀缺新规产品#迭新天河北人居想象[666]片区稀缺南向板楼设计[666]片区稀缺12-22F小高层设计[666]片区稀缺容积率约2.5低密住区[666]片区稀缺建面约87㎡新规小户产品[666]片区稀缺建面约106㎡南北通透产品[666]片区稀缺建面约117㎡五开间朝南产品

🔝[超越·萃见中轴贵脉]中轴之上,珠江新城直线距离约5KM

🌟自驾可经由广州大道或沙太路快速到达珠江新城CBD;

🔝[超强·萃见城市脉搏]下楼地铁,2站珠城,3站琶洲

🌟18号线京溪路站(在建中)上盖,未来2站冼村地铁站;🌟约1000米3号线梅花园站,3站到林和西,一线直达珠江新城、白云国际机场;

🔝[超越·集萃都芯璀璨]中轴之上,同享天河配套

🌟约1公里醇熟生活圈·享广垦壹号商业MALL、信达金茂广场等;🌟约5公里珠城生活圈·享东方宝泰、天河城、天环、太古汇等;🌟约3公里内三大三甲医院:南方医科大学南方医院、三九脑科医院、省妇幼保健院天河院区;

🔝[超越·臻萃建筑形态]漂浮社区设计,用造酒店的方式造楼盘🌟低密板楼+小高层设计,迭新天河北人居想象🌟六进式归家雅萃之境,让每一次归家都成为治愈身心的仪式之旅

🔝[超越·极萃生活空间]星级会所,重塑“熟人”高阶生活聚场🌟健身房/瑜伽室/四点半学堂等,营造全龄生活空间场景🌟“老钱风”中轴园林,让每一次漫步都成为穿越时光的优雅

🔝[超越·拔萃室内交标]全屋智能系统 | 高标精装交付 | 超能装全屋收纳2.0入户即有序:量身定制的玄关收纳,结合使用习惯,设置次净衣区、可调节层板鞋柜、层板透气孔等,重构入户空间的仪式感;厨房全能舱:配置①厨房四件套-洗碗机/油烟机/防干烧灶/蒸烤一体机②多功能水槽,一槽完成洗切沥全流程③明装式轨道插座④二合一凉霸⑤净水系统——前置过滤器,打造餐厨生活新范式;全屋智能系统:配置全屋智能家居系统,支持本地按键、触屏、语音及手机APP多端控制,打造舒适、稳定、便捷的居家体验

🔝[超越·拔萃稀缺产品]🔹中轴之上,稀缺进阶新品🌟板块10年来 仅2宗宅地出让🌟板块10年 小面积产品断供

🔹建面约87㎡一步到位四空间中轴稀缺 新规小户型产品中轴之上稀缺新规小户型,超高使用率,将空间使用率拉升数个等级LDKB布局 X空间随心享约5.2米开间客厅,LDKB一体化布局,使用功能更灵活,X空间随心而享南向园景 宽幕观景阳台约11.6米南向尺度,四开间朝南,宽绰景观面,臻享四季风华

🔹建面约106㎡舒适改善四空间新规产品 超130%使用率空间使用率远超同级别面积产品,功能随心,满足全周期家庭所需全明户型 双轴线南北通透约14.7米南向面宽,餐客厅+主卧均南北通透,清风时时流连独立入户玄关 礼遇归家仪式感入户动线优化,避免开门即见户内,营造归家崇感

🔹建面约117㎡,全广稀缺新品✅专梯专户,12-13F洋房设计✅五开间朝南,约17.5米南向巨幅面宽✅南北通透,LDKB式设计✅超高得房率,奢享大平层使用感

‼稀缺王炸,有天有地墅式产品,仅6席

🔥无边界板房,5.31开放🔥一期超配,二期超越 抢藏中轴稀缺新规产品!

更多新品信息,敬请期待

✅ 本项目暂不接受临时到访,过来参观样板房请记得提前来电预约!

✅ 为您安排楼盘现场销售全程接待并讲解,给您更贴心的看房体验!

如有问题欢迎来电咨询,来电即可享受买房优惠!400-861-9050

预约来电尊享购房优惠,可预约案场内部销售人员,专业一对一热情服务,让您用专业眼光去买房。

免责声明

1、文章图片来源于微信搜索或百度搜索引擎,我方非相关图片的原创作者,也不对相关图片及内容享有任何权利。

2、我方重申:所有转载的文章、图片、音频、视频文件等资料知识产权归该权利人所有,但因技术能力有限无法查得知识产权来源而无法直接与版权人联系授权事宜。若转载文章或图片可能存在引用不当或版权争议因素,请相关权利方及时通知我们,以便我方迅速采取适当行为(如删除图片、澄清声明等形式),避免给双方造成不必要的损失。

3、本宣传资料对项目周边幼儿园、学校等教育资源的介绍旨在提供相关信息,并不意味着我方对就学安排作出承诺。教育资源的名称、办学性质、办学规模、学位设置、开学(班)时间、招生条件、收费标准及招生区域存在调整的可能,应以政府教育主管部门及办学方颁布的政策规定为准。联系号码:4008366879

4、文章中文字和图片之间无必然联系,仅供读者参考。

5、本文所述内容和意见仅供参考,不构成市场交易依据和投资建议。

全部

相关资讯

报名成功
稍后会有专业的置业顾问联系您
返回楼盘

频道导航

返回首页

看房小程序

APP下载

电话拨通后,请您手动拨打分机号

确定拨打电话

电话号码:

分机号:(可能需要拨分机号)