【最新发布】南通华润置地澐璟售楼处电话-南通华润澐璟楼盘详情-南通华润置地澐璟房天下

搜狐焦点池州站

2025-06-05 11:59:38

购房群

买房如何避坑,加入购房群,看看他们怎么说

立即进群

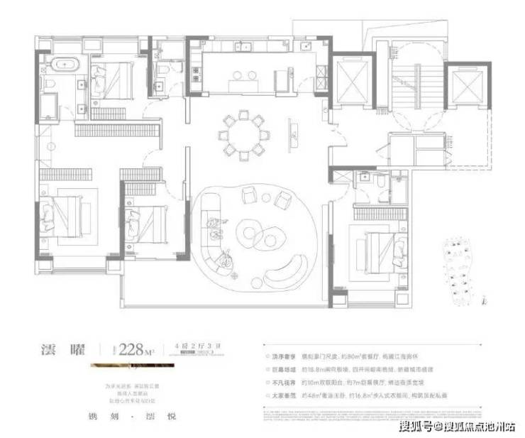
南通华润置地澐璟

南通华润置地澐璟售楼处电话400-681-7288接通后输入1111【转接销售】

南通华润置地澐璟售楼中心电话400-681-7288接通后输入1111【转接销售】

✅✅给您有效答复—提-前-来-电-预-约-登-记—节省您的宝贵间

✅✅郑重承诺:开发商售楼处直销,中介勿扰

华润置地澐璟楼盘位于南通崇川园林路,紧邻南通市政府,地处“政经中轴”与“生态文脉”交汇处,中央商务区、印象城等商务休闲配套一应俱全。

澐璟“闹中取静”,通过创新的布局和景观设计,既能享受城市繁华,又能亲近自然、沉浸美景,为居住者营造了一种极具度假氛围的世外桃源。

作为南通首个“超极生活场景高定住宅”,澐璟项目本身即代表着城市封面的焕新。

南通华润置地澐璟

南通华润置地澐璟售楼处电话400-681-7288接通后输入1111【转接销售】

南通华润置地澐璟售楼中心电话400-681-7288接通后输入1111【转接销售】

✅✅给您有效答复—提-前-来-电-预-约-登-记—节省您的宝贵间

✅✅郑重承诺:开发商售楼处直销,中介勿扰

全部

相关资讯

报名成功
稍后会有专业的置业顾问联系您
返回楼盘

频道导航

返回首页

看房小程序

APP下载

电话拨通后,请您手动拨打分机号

确定拨打电话

电话号码:

分机号:(可能需要拨分机号)