南山蛇口琅玥湾佳园项目2024年开盘入市,推出住宅约380套,面积113-124-139-167㎡3-5房项目2栋塔楼、高区4梯4户、低区5梯5户,相比赤湾在售几个楼盘这个项目拥有无遮挡一线海景,项目还有一个最大亮点就是一梯一户,基本相当于就是专梯入户了每家一个电梯,其中124㎡以上户型相当于是独立电梯,私家电梯入户!
低区楼层为5梯5户配置,高区则为4梯4户,并全部采用一梯一户布局,每户均拥有独立电梯厅。项目目前为准现楼状态,外立面铝板安装已基本完工,预计于2025年10月交付。小区环境纯粹,无保障房及商业设施,一线海景视野开阔无遮挡。

1:1的豪华梯户比,31层以下5梯5户,31楼以上4梯4户,私密性更强,居住更舒适,出入从容有序。
三重尊奢归家,主入口前设置迎宾广场,拾级而上,入社区后景致相依,酒店式的归家奢华大堂,营造归家尊崇仪式感。
约4300㎡社区园林,以“海岛花园”为主题,营造多个岛状特色空间组团,皇家园林移步移景的设计打造手法,独一无二的滨海花园体验。
社区内配备了阳光双泳池(儿童&成人)、阳光草坪、全龄儿童活动区、四大主题多功能泛会所等社区活动场所,满足业主休闲生活所需。
车库双大堂设计,大面积采用天然浅色石材,并于天然奢石加以点缀,光厅顶面采用金属构件,结合灯带,增加层次感,彰显项目高定品质。
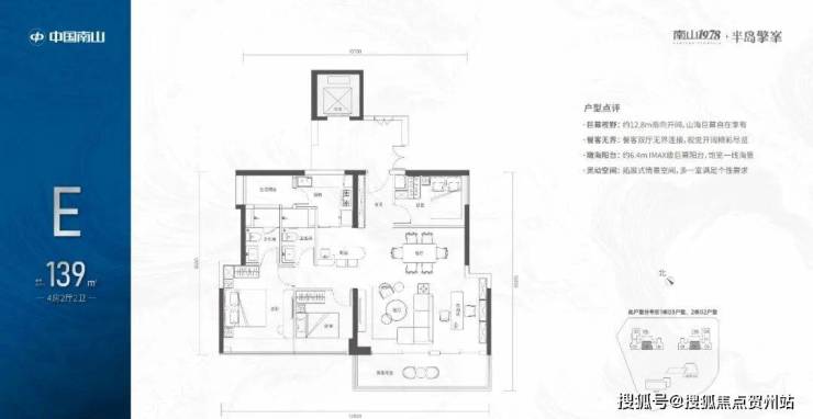
【113㎡的3房2厅2卫】竖厅格局,电梯入户送独立公区,动静分区,三开间朝南,客厅连接次卧超大观景阳台,主卧大套间设计,二字型厨房带1个小生活阳台,卫生间干湿分离,得房率:72.07%(不含赠送),西南朝向;
【124㎡的3+1房2厅2卫】1栋02/2栋04户型,电梯入户送独立公区,设计的是竖厅格局,动静分区,主卧套间设计,还有一个多功能间可以做书房,U型厨房,公卫三段式分离,得房率:72.07%(不含赠送)西南朝向;
【124㎡的4房2厅2卫】1栋01/2栋05户型,电梯入户送独立公区,横厅南北通透格局,客餐厅6.1米开间,五开间朝南,主卧大套间设计,6.1米长观景大阳台,U型厨房,得房率:72.07%(不含赠送)西北或东南朝向;
【139㎡的4房2厅2卫】1栋03/2栋02高区户型,电梯入户送独立公区,竖厅类双龙抱珠格局,四开间朝南,主卧大套间设计,有1个多功能间可以做书房,6.4米长观景大阳台,L型厨房带1个生活阳台,卫生间干湿分离,得房率:72.07%(不含赠送),西南朝向;
【167㎡的5房2厅3卫】1栋02/2栋03高区户型,电梯入户送独立公区,竖厅双龙抱珠格局,四开间朝南,主卧大套间设计,U型厨房,得房率:72.07%(不含赠送)西南朝向;
项目区域价值
【双湾交汇 城市战略前沿】
作为国家海上丝绸之路的桥头堡,赤湾占据前海湾和蛇口双湾交汇处,是两大中心组团双向奔赴的融合地带,是世界服务贸易重要基地和国际性枢纽港,既可享前海发展利好,亦可享蛇口国际生活配套。
项目周边配套
交通配套:山海丹华府距离2/8号地铁线“赤湾站”距离约300米,步行约5分钟即可,2站到海上世界,前海妈湾,另外附近有小南山隧道在建,待开通后可直达前海核心区,还有妈湾跨海通道在建,待开通后可直达腾讯科技岛,无缝对接中山通道。
商业配套:项目约200米有约4.6万㎡赤湾汇商业(待营业),约1.9公里有约46万㎡的太子湾高端商业(在建,建成后将会是整个深圳最大体量最高端的商业体,内有K11ECOAST,兰桂坊太子湾等),约2.2公里有海上世界,2站可以抵达前海印里,前海世贸中心等商业综合体。
学校配套:项目200米处有南二外赤湾学校,该校有41个班,其中小学26班,初中15班,是1所九年制公办学校;南山中英文学校,该校是1所12年制的国际学校,涵盖小学,初中,高中,于2023年9月份已经正式开学,并且开办了协同港籍学生班,是一所获得深圳教育局和香港教育局统一批准的港籍子弟班。这也就意味着学校办学稳定,学生可无缝衔接香港的学校。