中建海丝城售楼处(广州中建海丝城)首页网站-营销中心-中建海丝城售楼处欢迎您-楼盘详情-最新价格-户型图-容积率@2025.09.18售楼处售楼中心热搜

搜狐焦点哈密站

2025-09-18 14:16:32

购房群

买房如何避坑,加入购房群,看看他们怎么说

立即进群

🚩🚩中建海丝城售楼处电话☎:400-892-2273【售楼处已认证】🚩🚩

🚩🚩中建海丝城开发商24小时电话☎:400-892-2273【开发商认证】🚩🚩

🚩🚩中建海丝城售楼处24小时电话☎:400-892-2273【开发商认证】🚩🚩

🚩🚩中建海丝城售楼部24小时电话☎:400-892-2273【开发商认证】🚩🚩

🚩🚩☞☞Vip贵宾置业==欢迎来电预约尊享内部折扣===匠心钜制恭迎品鉴☜☜🚩🚩

◈◈若有中介虚假宣传,请及时与售楼中心核对真假,避免上当!开发商热线400-892-2273【开发商认证】

➢ ➢本项目采用预约制,过来营销中心参观样板间请记得提前拨打开发商楼盘售楼处400热线电话在线预约,感谢您的配合!

🚩🚩中建海丝城电话:400-892-2273☎营销中心已认证丨详细解答丨在售户型图丨项目介绍丨在售房源丨周边配套丨VR看房丨楼盘图丨沙盘图丨位置图丨配套图丨售楼处销售1V1讲解

中建海丝城:作为中建八局倾力打造的首个央地合作项目,以大盘造城理念共筑未来城市,打造一个立于珠江之畔,海丝明珠的理想生活新世界。

开发商:由中建八局和知识城集团联袂打造

占地面积:214900㎡

建筑面积:823200㎡

总规划:7个组团,首推【 阅山组团 】

容积率:4.3

绿化率:35%

梯户比:2/4、3/6户

物业:龙湖物业

车位配比:约1:1.12

收楼时间:首推楼栋2026年12月30日

⑉ 中建八局,《财富》世界500强中国建筑集团旗下骨干,国内著名、国际知名的现代化综合投资建设集团;

⑉ 知识城集团,广州开发区最早成立的国有企业之一,为城市宏图践行者。

交通方面,项目是临港经济区的重要功能节点,双沙旧改地块众多,首开区具体位置在5号线双沙地铁站B口附近,与地铁5号线双沙站的直线距离仅约50米,与地铁13号线双岗站直线距离也不到500米,双地铁站护航,交通条件优越,从项目出发,2站到鱼珠CBD,5站金融城,6站琶洲东区,10站直达珠江新城,囊括广州最重要的几个CBD。

教育方面,优势也很明显,项目北侧建设的24班小学+54班完全中学,将引进华中师范大学黄埔实验学校。

目前已经确定引进的学校是华中师范黄埔实验学校,管理模式为本部直属管理,2023年中学获得全国第一

华中师范大学(Central China Normal University)简称“华大“”或”“华中师大”

很多人估计对华中师范大学第一附属中学不太了解!

这是一所全国顶级学校,被誉为清北摇篮,可见其实力有多炸裂,厉害有目共睹。

2018年起,已经连续6年霸榜全国百强中学首位。

2021-2023年,华中师范大学第一附属中学每年都有约70-80人进入清北等国内顶级高校。这个数据很恐怖,拿广州神学院华附来说,每年进入清北20-30人,广东最牛的中学——深圳中学2023年进入清北的49人,广大附中也只有15人,差距比较明显!

2023年,华中师范大学附属第一中学高考700分以上13人,要知道湖北全省才38人。

一本率600分以上949人(含少年班、竞赛保送清北人数),600分率90%,华南师范大学附属中学600分率只有80%,广东实验中学82.94%。

奥赛金牌全国第一!

截止2023年,华中师大一附中在国际、亚洲物理奥林匹克竞赛中,分别获得金牌37枚、16枚,均位居全国第一,妥妥的战力天花板(来源:华中师范大学附属第一中学)。

华南师范大学附属中学1987年以来,获得数学、物理、化学、生物学、信息学等五大学科的奥赛金牌才17枚;

获得国际天文和天体物理奥赛、国际地理奥赛、亚洲物理奥赛、俄罗斯数学奥数等学科竞赛金牌22枚(来源:华南师范大学附属中学官网)。

可以看出,华中师范大学附属第一中学的奥赛成绩也是遥遥领先的。

中建海丝城配套的华中师范大学黄埔实验学校,能与华中师大一附中充分对接,教育管理、师资力量都有保障,含金量有多高,已不言而喻。

阅山组团全盘一共规划7栋楼,层高26-39层不等,总体货量大约1300+套

楼栋排列采用围合式布局,栋栋观景,最大化每栋楼的采光时间;

外立面采用片区内独有全铝板材质,不仅美观大气,还能历久弥新,10年后还业主一个全新的家。

大产品设计上,打造大面宽、长阳台、短进深,采光通风极佳;

阳台、飘窗、花池赠送,户型使用率超100%;

首推5号楼及7号楼产品为建面约76/87/105/116平3-5房,76平起做三房两卫,105平起做四房两卫。而且全盘全南向,真要横向对比的话,这应该是老黄埔最给力的3-5房

【户型鉴赏】

79方-142方

建面79平三房,该面积段有三个不同的户型,主要是东南以及西南向,基本分布在一栋,一栋靠近黄埔东路噪音会比较大,但是好处就是高层可以看江

建面95平三房,该户型有四个不同的户型,都是竖厅和横厅设计,还有南北对流的户型,主要分布于2、3栋,靠近里面没有什么噪音影响。

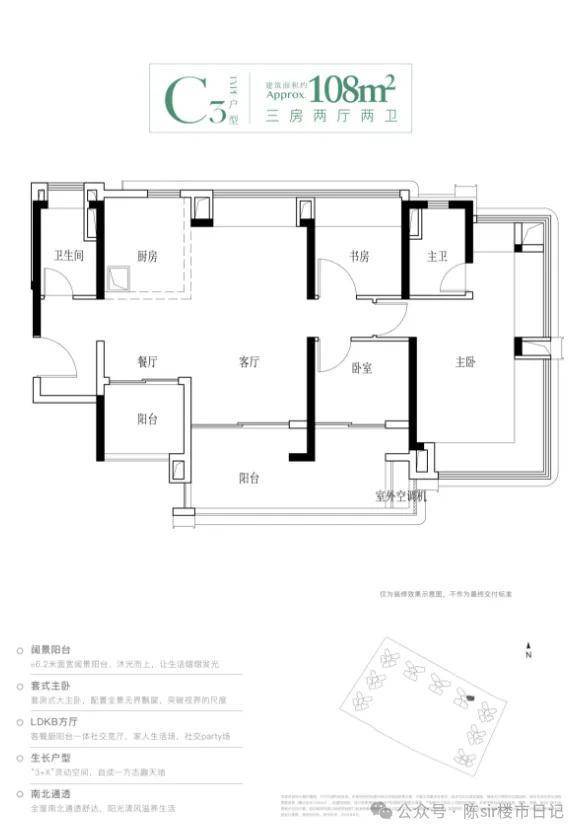
建面108平四房,该户型有三个面积段,都做到了南北对流设计,主要分布于1、2、4栋,1栋的108平会被前面的95方挡住一点视野

建面128平四房,目前首开楼栋只有4栋有,竖厅设计,位于组团中心位置可以看到小区园林以及江景,还有6米的宽景阳台。

建面142平四房,同样是分布在4栋,南北对流双阳台设计,LDKB一体化大方厅,主卧还配建了独立衣帽间,使用面积完全不输160平以上的户型。

⚡中建海丝城开发商电话☎:400-892-2273【开发商已认证】

⚡⚡中建海丝城售楼处电话☎:400-892-2273【售楼处已认证】

⚡⚡中建海丝城售楼中心电话☎:400-892-2273【售楼中心已认证】

⚡⚡中建海丝城营销中心电话☎:400-892-2273【营销中心已认证】

⚡⚡本项目暂不接受临时到访,看房请提前预约,可尊享内部特惠!

⚡⚡为您安排楼盘内场专业销售人员一对一接待服务,给您更贴心的看房体验!

⚡⚡☞☞Vip贵宾置业==欢迎来电预约尊享内部折扣===匠心钜制恭迎品鉴☜☜

◈◈若有中介虚假宣传,请及时与售楼中心核对真假,避免上当!开发商热线400-892-2273【开发商认证】

温馨提示:点击上方号码可直接拨打官方电话

请务必致电与销售确认时间,仅预约客户可进入销售现场,感谢您的支持

免责声明:本文部分内容来自网络,如有侵权,请联系删除

全部

相关资讯

报名成功
稍后会有专业的置业顾问联系您
返回楼盘

频道导航

返回首页

看房小程序

APP下载

电话拨通后,请您手动拨打分机号

确定拨打电话

电话号码:

分机号:(可能需要拨分机号)