
珠江·天河都荟位于广州市天河区的核心地带,由珠江实业集团、广州城投集团和天河投资集团三大国企联合开发。作为天河中轴的重要组成部分,该项目以其优越的地理位置、丰富的教育资源、便捷的交通网络以及高端的生活配套设施,吸引了众多购房者的关注。
项目基本信息
股东方:珠江实业集团、广州城投集团、天河投资集团
开发商:广州程锦房地产开发有限公司
占地面积:约5.5万平方米
计容建筑面积:约11.5万平方米
容积率:首期约2.0,二期峯荟约2.5
装修标准:精装修
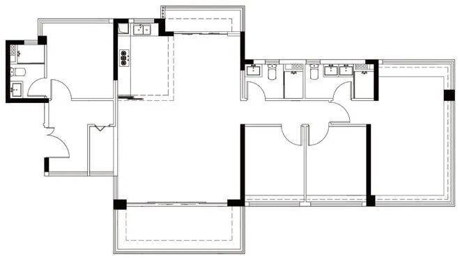
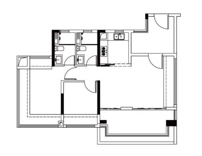
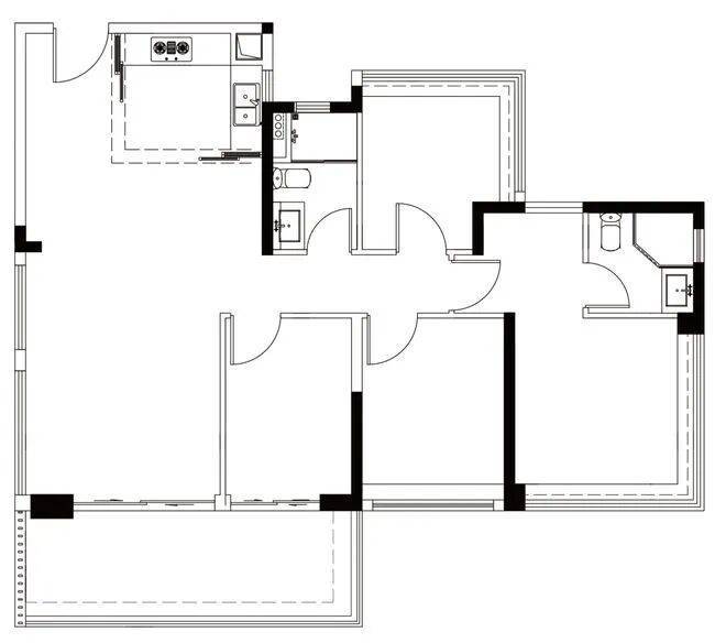
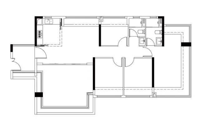
户型设计
珠江·天河都荟二期首推约71-144平方米的全南向新规产品,所有户型均实现了户户朝南,采光条件一流。具体户型如下:
约71㎡ 3空间2卫:罕见的小户型设计,功能分区合理,生活起居更加从容。
约85㎡ 3空间2卫:配备超6米景观阳台,LDKB秀场设计,提升居住体验。
约104㎡ 4空间2卫:6.1米大阳台,四开间朝南,空间利用率高。
约105㎡ 4空间2卫:南北对流,主卧配备U型衣帽间,满足多种生活需求。
约123㎡ 4空间2卫:南向卧室均可放置1.8米大床,空间平权,舒适度高。
约142㎡ 4空间3卫:南北通透,超越豪宅尺度,适合追求高品质生活的家庭。
区位优势
珠江·天河都荟雄踞天河中轴,占位智慧城核心,尽享“珠江新城、金融城、琶洲”规划红利。项目周边有网易、小鹏汽车等知名企业入驻,驱动未来经济新增长极,打造湾区科创生活圈。天河中轴犹如城市的新经济“龙脉”,贯穿南北,汇聚了城市的能量与活力。
交通配套
地铁:项目距离21号线天河智慧城站约600米,步行即可到达。通过地铁21号线,3站可达金融城车陂南站,4站可到琶洲万胜围站,5站直达珠江新城潭村站(地铁快线换乘)。此外,广佛东环智慧城站(在建中)将直通广州南站和白云机场,方便快捷地连接湾区各大城市。
公交:项目附近有多条公交线路,覆盖天河智慧城的主要干道,出行极为便利。
项目紧邻华观路、广州环城高速-广深高速、广园快速等主干道,形成三横三纵的城市路网,自驾出行非常便捷。无论是前往珠江新城还是琶洲等地,都能在较短时间内到达。
教育配套
项目北侧规划建设公办九年一贯制中小学,并引入广州中学教育集团办学。此外,项目配建了一所6班幼儿园,旁还有12年制清华附中湾区学校二期(在建中,预计2026年完工),形成了全龄段优教圈,为孩子的成长提供了坚实的保障。
生活配套设施
项目周边商业资源丰富,300米内即有广百广场,居民可以轻松享受购物和娱乐的乐趣。此外,项目内部还设有双泳池会所、多重园林谧境等高端配套设施,提升了居住的品质感和舒适度。
项目周边医疗资源充足,广州医科大学附属中医医院·天河院区、中山大学附属第三医院·岭南医院等三甲医院环绕周边,为居民的健康保驾护航。蕙心医院、岭南养生谷中医医院等近在咫尺,进一步完善了家门口的医疗配套。
项目背靠火炉山,东临杨梅河,紧邻大观湿地公园,形成了独特的自然生态环境。每一步都是与自然的亲密接触,每一次呼吸都是清新的氧气。项目的建筑布局充分利用了这些自然资源,营造了一个宜居的生活环境。
社区特色
项目采用了华为智能系统,打造未来科技豪宅新标杆。智能化系统涵盖智能中控、一屏控制适配设备、持续生长的应用子系统等功能,让智慧生活触手可及。
珠江·天河都荟致力于打造一个低密奢境的高端社区,二期峯荟组团采用2.5容积率设计,楼栋高度控制在14层以内,保证了充足的采光和宽阔的观景视野。项目还配备了双泳池会所、多重园林谧境等设施,为业主提供丰富的休闲娱乐选择。
项目以星级酒店大堂为蓝本,打造约9米高的首层大堂,归家每一步尽显尊崇。酒店式环岛落客设计,给业主带来国际级的仪式感。
⚡广州✅珠江·天河都荟开发商售楼处电话📞:400-836-8707【已认证】
⚡珠江·天河都荟售楼处电话📞:400-836-8707【已认证】🐇🐇🐇
⚡珠江·天河都荟售楼中心电话📞:400-836-8707【已认证】🐇🐇🐇
⚡珠江·天河都荟营销中心电话📞:400-836-8707【已认证】🐇🐇🐇
◆开发商营销中心诚挚邀请,一键预约,尊享内部独家折扣!匠心独运的精品项目,恭候您的品鉴与选择。
免责声明:
1、文章图片来源于微信搜索或百度搜索引擎,我方非相关图片的原创作者,也不对相关图片及内容享有任何权利。
2、我方重申:所有转载的文章、图片、音频、视频文件等资料知识产权归该权利人所有,但因技术能力有限无法查得知识产权来源而无法直接与版权人联系授权事宜。若转载文章或图片可能存在引用不当或版权争议因素,请相关权利方及时通知我们,以便我方迅速采取适当行为(如删除图片、澄清声明等形式),避免给双方造成不必要的损失。
3、本宣传资料对项目周边幼儿园、学校等教育资源的介绍旨在提供相关信息,并不意味着我方对就学安排作出承诺。教育资源的名称、办学性质、办学规模、学位设置、开学(班)时间、招生条件、收费标准及招生区域存在调整的可能,应以政府教育主管部门及办学方颁布的政策规定为准。
4、文章中文字和图片之间无必然联系,仅供读者参考。
5、本文所述内容和意见仅供参考,不构成市场交易依据和投资建议。