⭐金茂璞印梅溪⭐⭐
⭐金茂璞印梅溪售楼处电话售楼处电话☎400-678-8669转7777【楼盘认证】⭐⭐
⭐金茂璞印梅溪开发商电话☎:400-678-8669转7777【售楼处已认证】⭐⭐
⭐金茂璞印梅溪营销中心电话☎:400-678-8669转7777【售楼处已认证】⭐⭐
⭐金茂璞印梅溪售楼中心电话☎:400-678-8669转7777【售楼处已认证】⭐⭐
⭐金茂璞印梅溪销售中心电话☎:400-678-8669转7777【售楼处已认证】⭐⭐
✅本项目暂不接受临时到访,过来参观样板房请记得提前来电预约!⭐⭐
✅为您安排楼盘现场销售全程接待并讲解,给您更贴心的看房体验!⭐⭐
基本信息
参考价格:
洋房单价:13000元/平方米
楼盘概况单价: 13000元/平方米
楼盘概况总价: 167-348万元/套
用户点评:3.87[11条点评]
物业类别:
洋房 联排
项目特色:
低密居所
地铁沿线
改善优选
洋房
建筑类别:
现代
装修状况:
住宅:毛坯;别墅:毛坯
产权年限:
洋房产权为70年,联排产权为70年
环线位置:
二至三环
开发 商:
长沙梅溪璞茂置业有限公司
楼盘地址:
岳麓梅溪湖国际新城二期,油松路以北、竹山屋路以西
城市定位:梅溪湖二期的"饼"画得有多圆?
金茂璞印梅溪高举"国际住区"大旗,但梅溪湖二期本质仍是填坑造城的产物。相比一期成熟的CBD基因,二期更像是政策强推的试验田——规划中的中央公园、科创总部基地仍停留在PPT阶段。紧邻招商天青府的地段看似光鲜,实则被夹在梅溪湖与麓谷两大板块的夹缝中,身份定位极其尴尬。开发商鼓吹的"梅溪湖3.0",是真是假,您细品!

交通便利性:地铁房?伪命题!
金茂璞印梅溪距离地铁6号线近,二号线延长线1.6公里以上。梅溪湖二期路网规划看似高大上,但中轴线上规划的超宽主干道更像是割裂社区的利刃,未来车流噪音值得警惕。
地铁优势:离象鼻窝站200米
自驾陷阱:梅溪湖高峰期的拥堵这个大家感受下,梅浦联络线通车前都是纸上谈兵,业主准备好路怒症吧。

教育医疗:薛定谔的"学区房"
捆绑长郡/师大附中分校的套路虽老但有效,但需警惕分校≠本部的真理。梅溪湖二期规划的12所学校多是"贴牌办学",师资稀释已成定局。市妇幼新院区看似高端,但三甲医院与住宅的黄金距离应是3公里,紧邻医院的噪音、人流污染反成硬伤。
生态景观:一边是工地,一边是菜地

金茂自建3万方商业的承诺,在梅溪湖一期览秀城日均客流不足5万的现实面前显得苍白。象鼻窝森林公园的生态牌更像是望梅止渴——直线距离3公里,步行可达性为零。反观深业麓溪云境,虽无景观资源,但背靠麓谷产业人群的刚性消费力更实在。

商业荒漠
招商花园城2025年才开业,金茂大厦虽然开业,但是业态也不多,现阶段业主只能去隔壁天青府底商买包子。
02
总体规划及产品
规划与户型:改善的皮,刚改的骨
规划原罪:用1.2容积率塞进洋房+别墅,牺牲公共空间换利润,楼间距缩水,私密性略差。
这也无可厚非,毕竟开发商的诉求无非就是货值最大化。但是由于容积率的原因,南侧还是有一排洋房,显得不够纯碎。小C好奇的是,2024新规出来后两块地容积率不能平衡,但是咱们这个项目还是平衡考虑的,看来还是公关能力强。
包括该配置的幼儿园也没做,只能说金茂报建部门的同事还是很有办法。其实说实话,幼儿园确实太多了,很多小区的幼儿园都在那里荒废,同时出生率下降那么多,建得幼儿园交给教育局,教育局也不知道该咋运营。
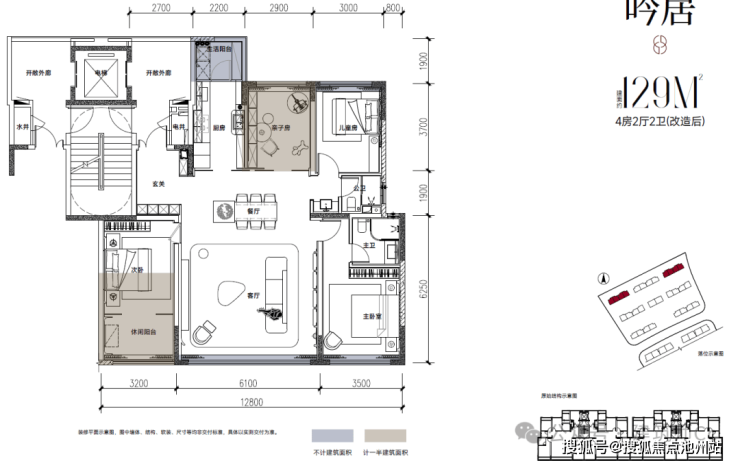
129户型

139户型南厅

139户型边厅

170户型顶层复式

193户型顶层复式—边厅

193户型顶层复式—南厅

⭐金茂璞印梅溪⭐⭐
⭐金茂璞印梅溪售楼处电话售楼处电话☎400-678-8669转7777【楼盘认证】⭐⭐
⭐金茂璞印梅溪开发商电话☎:400-678-8669转7777【售楼处已认证】⭐⭐
⭐金茂璞印梅溪营销中心电话☎:400-678-8669转7777【售楼处已认证】⭐⭐
⭐金茂璞印梅溪售楼中心电话☎:400-678-8669转7777【售楼处已认证】⭐⭐
⭐金茂璞印梅溪销售中心电话☎:400-678-8669转7777【售楼处已认证】⭐⭐
✅本项目暂不接受临时到访,过来参观样板房请记得提前来电预约!⭐⭐
✅为您安排楼盘现场销售全程接待并讲解,给您更贴心的看房体验!⭐⭐