⚛️鸿荣源尚云花园售楼处电话☎:400-8092-787【售楼处已认证】
⚛️鸿荣源尚云花园开发商电话☎:400-8092-787【售楼处已认证】
⚛️鸿荣源尚云花园营销中心电话☎:400-8092-787【售楼处已认证】
⚛️鸿荣源尚云花园售楼中心电话☎:400-8092-787【售楼处已认证】
⚛️鸿荣源尚云花园销售中心电话☎:400-8092-787【售楼处已认证】
✅本项目暂不接受临时到访,过来参观样板房请记得提前来电预约!
✅为您安排楼盘现场销售全程接待并讲解,给您更贴心的看房体验!
若有中介报价过低,请及时与售楼中心核对真假,避免上当!开发商热线400-8092-787【☎☎首页已认证】

在售户型图丨项目介绍丨最新房源丨周边配套丨详细解答〢
鸿荣源尚云,刚需三宝盘,地铁旁+商业+学校、户型好+大园林的大型综合体之上的。
户型图鉴赏:
市面上目前同类型物业基本上窗户都是飘台,名义是赠送面积,但想让它变的实用,需要定做家具或做特殊用途,目前就只有鸿荣源能做到飘窗即算赠送面积,又完全落地,实用性、得房率都更为实际!
建面约82㎡,三房两卫,竖厅,动静分区结构,独立的一条腿,短进深大开间,静区部分尺度适中,客厅餐厅处有开窗,虽然对着通风井进光一般,但通风非常好,主卧两侧完全通透,一侧做衣柜预留开窗依然通透,如果不打柜子更是无敌,82㎡做三房两卫产品力是非常强!


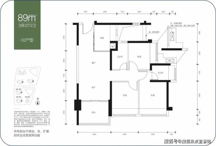
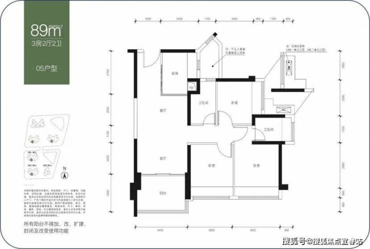
建面约89-90㎡,三房两卫,两者户型结构基本一致,都是动静分区结构,相比之下,89㎡户型动区面积小一点,90㎡是静区面积小一点,总的得房率差距很小,整体尺度比较舒适,经典实用型产品。
建面约109㎡,四房两卫,分布在3栋3单元,01户型是传统横厅结构,突出亮点是客厅大面宽采光,餐客厅一体化,隐性过道与餐客厅完美融合,显得客厅比较宽敞,整体结构三面采光,通风采光性能俱佳;缺陷也比较明显,那就是居家静溢性欠缺。

03户型是双龙抱珠式的竖厅结构,实用性、空间尺度各方面挺好。亮点是长辈房与主卧、次卧处在相对独立的位置,私密性会比较好。缺点也比较明显,存在整体居家静溢性不足缺的缺陷。
建面约120㎡,四房两卫,传统的竖厅,动静分区结构,没有突出亮点,也找不出啥明显缺陷,优点就是空间尺度大,居住舒适性好,比较适合改善置业群体,有预算选大的不会错的。
朝向方面:82㎡户型有西北、和东北两种朝向,有点朝向和性价比不可兼得的意思;89和120㎡有东南和西南两种朝向,都是比较受欢迎的朝向;3栋3单元90㎡户型为东南朝向,109㎡唯一的横厅是西北朝向,有点美中不足,109㎡双龙抱珠户型是西南朝向。
项目是去年9月,龙华区2022年六大重点片区新开工项目启动仪式上,有多个地产项目宣布开工,其中位于龙华国际商圈的“龙华商业中心城市更新单元”在列。
示意图

龙华商业中心城市更新单元和壹成中心花园隔路相对,是龙华老城核心地带的备受瞩目项目。由于种种原因,龙华商业中心项目进展一直缓慢,直到去年下半年,各小片区终于迎来了重大进展。

龙华商业中心城市更新单元示意图

鸿荣源主导的壹成中心花园即将完整落成之际,“龙华中洲旧改项目”才算姗姗来迟,但实施主体已不完全掌握于中洲一家,根据已陆续公布的开发主体来看,已被“一分为五”。
包含北、中、东、南一、南二共五个片区,各个片区均整体实施。
项目位于位于龙华旧城核心区,东临人民路,北靠龙华建设路,中环路及工业路,目前建设已出地面20来层,已经开始在做外立面了,预计下个月初开放营销中心
项目配套方面,由于背靠壹城中心,所以配套基本上是共享的。
交通方面,目前距离最近的4号地铁线“龙华站”约1.2公里,深大城际“民治北站”距离约2公里,25号地铁线“景龙站”(在建)距离约500米。周边布局4号线,规划27/25/22号线4条地铁线
教育方面,小学学区划分在龙华区第二实验学校小学部,人民路学校小学部,华育小学,作为小学共享学区;中学学区划分在人民路学校初中部,龙华区第二实验学校初中部,作为初中共享学区;
家门口的龙华实验高级中学集团民治学校(在建),该校是一所54班学校,小学36班,初中18班,将提供2520个学位,小学1620个,初中900个,未来也将划入尚云花园学区范围内。
商业方面,项目自带约1.25万㎡商业,对面就是深圳最大商业综合体60万㎡的鸿荣源壹方天地购物中心,内含1000米华南最长商业步行街,ABCDE五大主题商业区,超1000家品牌商家。
文娱方面,约10分钟车程内,深圳书城龙华城、龙华文体中心、简上体育综合体、演艺馆、展览馆已经开业,深圳美术馆新馆、深圳第二图书馆在建设中,外立面已经基本建成了。
再说到开发商!这家房企,可以说是深圳本土房企典范,以品质著称、在深圳扎根32载,而且在深圳多个区域做到了片区标杆!已经成为了深圳的一张城市名片!
它就是鸿荣源。

作为城市中心的缔造者,深耕深圳32载的鸿荣源无疑是时代的未来造梦者,凡所至必树标杆,凡所筑必定中心,香蜜湖熙园、龙华壹成中心、宝安壹方中心、前海鸿荣源中心等标杆项目,都定义了一个区域的居住高度,同时也让鸿荣源成为了城市中心生活的旗帜与标准。
每一次所筑皆标杆之作,每一座标杆皆造就生活中心,成为鸿荣源不变的造城观,多年来鸿荣源布局深圳,步履生花,其标杆著品,也成为了深圳逐浪而行、破茧成蝶的生动注脚。
2003年,落子福田,筑就香蜜湖熙园
定位深圳别墅地标式物业,成就香蜜湖区域的高端生活中心,缔造了片区豪宅生活的新高度。
2007年,献筑宝安,打造传世大宅标杆熙龙湾
以标杆豪宅品质,承载整个宝安的生活向往,引领区域进阶都市海景圈层的人居生活。
2008年,献筑宝安,高端物业禧园开盘
沙井高品质物业,荣获中国建筑文化典范楼盘,引领沙井居住革命。
2015年,鼎立前海,壹方中心亮相
前海核心的国际都会综合体,倾力打造前沿城市建筑群,实践了大前海时代的国际都会梦想。
2015年,造城龙华,壹成中心花园
精工巨著1/2平方公里城市超体,以“造城·造商圈”为理念,打造了深圳新时代的人居范本。
2020年,前海首排,前海鸿荣源中心
鸿荣源斥巨资打造,前海首排标杆城市综合体,一线海景筑品“胤璞”,傲居城市新中心迈向全球标杆。
鸿 荣 源 · 尚 云 花 园
《鸿荣源·尚云花园》项目由『深圳市鸿龙达投资有限公司』,工商信息显示该为『 深圳市鸿荣源控股(集团)有限公司』全资子公司,隶属鸿荣源企业集团。

鸿荣源是深圳本土头部房企,深耕湾区已有32年个年头,已累计综合开发房地产建面超千万平,曾打造了鸿荣源中心、壹方中心、壹成中心、香蜜湖熙园、公园大地、熙龙湾、禧园等多个极具影响力的项目。
鸿荣源对城市的发展把握非常精准,对土地的价值体会和挖掘深刻,总能率先布局有前景的地方,经手项目不论是体量还是品质、业态都是区域标杆标,一次又一次地验证了它造城和造中心能力。
◆开发商营销中心诚挚邀请,一键预约,尊享内部独家折扣!匠心独运的精品项目,恭候您的品鉴与选择。

⚛️鸿荣源尚云花园售楼处电话☎:400-8092-787【售楼处已认证】
⚛️鸿荣源尚云花园开发商电话☎:400-8092-787【售楼处已认证】
⚛️鸿荣源尚云花园营销中心电话☎:400-8092-787【售楼处已认证】
⚛️鸿荣源尚云花园售楼中心电话☎:400-8092-787【售楼处已认证】
⚛️鸿荣源尚云花园销售中心电话☎:400-8092-787【售楼处已认证】
✅免责声明:
一、文章图片均为效果图和示意图,最终效果以实际交付为准。
二、文章部分文字与图片来源于网络等。如涉及侵权,请第一时间联系我方,我们将第一时间予以删除。
三、本资料相关内容、图片是对项目所做的示意表现,仅供参考。最终以政府有关部门批准的文件、图则为准。经政府批准的详细规划后续将在销售现场公示。后续因规划及设计方案调整导致信息变化的内容,我司将按照政府要求进行公示。